COMMEEGG皮肤管理中心


作品说明
- 项目类型:休闲娱乐
- 项目地点:重庆市
- 建筑面积:420.0000㎡
- 项目造价:60.0000万元
- 主案设计师: 王洪涛
- 参与设计师:李梅
- 竣工时间:2022-11-08
- 设计机构:术一建筑空间设计
-
项目定位:在疫情的一定影响下,很多甲方都希望在一定层高基础上搭建二层空间,所以在怎么搭建二层空间成了双方都要面对的问题,作为设计方我们既要满足甲方对功能空间的需求也要满足对整体空间美感及尺度的期待。往往我们会建议甲方采用局部搭建的方式,使得空间有更多的塑造性。
-
空间意境:一层以上的空间格局对楼梯的处理尤为重要,既要具备功能属性也要具备美感,让人处于环境中的感受是被重视的,需要一定的仪式感。
-
空间布局:动静分离,营造更好的私密感。
-
设计选材:让结构赋予空间美感,尽量避免过多使用没必要的装饰材料,精益求精。
-
用户体验:已经预定我们提供了第二家店铺的设计。
术一设计+COMMEEGG 旦研,塑造趣味美肤空间。
术一设计+COMMEEGG 旦研,塑造趣味美肤空间。
术一设计+COMMEEGG 旦研,塑造趣味美肤空间。
术一设计+COMMEEGG 旦研,塑造趣味美肤空间。
术一设计+COMMEEGG 旦研,塑造趣味美肤空间。
术一设计+COMMEEGG 旦研,塑造趣味美肤空间。
术一设计+COMMEEGG 旦研,塑造趣味美肤空间。
术一设计+COMMEEGG 旦研,塑造趣味美肤空间。
术一设计+COMMEEGG 旦研,塑造趣味美肤空间。
术一设计+COMMEEGG 旦研,塑造趣味美肤空间。
术一设计+COMMEEGG 旦研,塑造趣味美肤空间。
术一设计+COMMEEGG 旦研,塑造趣味美肤空间。
术一设计+COMMEEGG 旦研,塑造趣味美肤空间。
原始户型图
F1平面方案
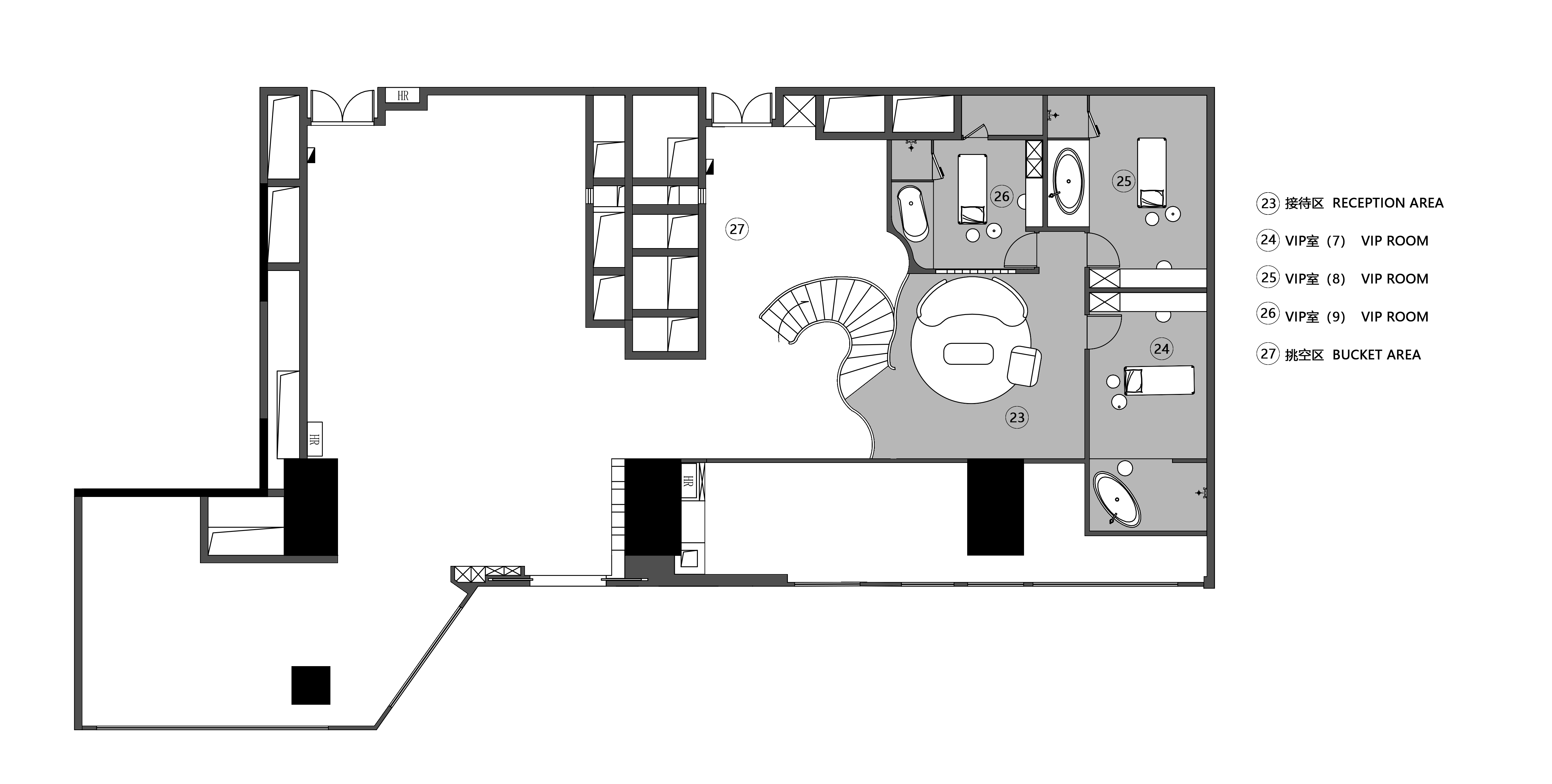
F2平面方案

