静而有声;韵律有间



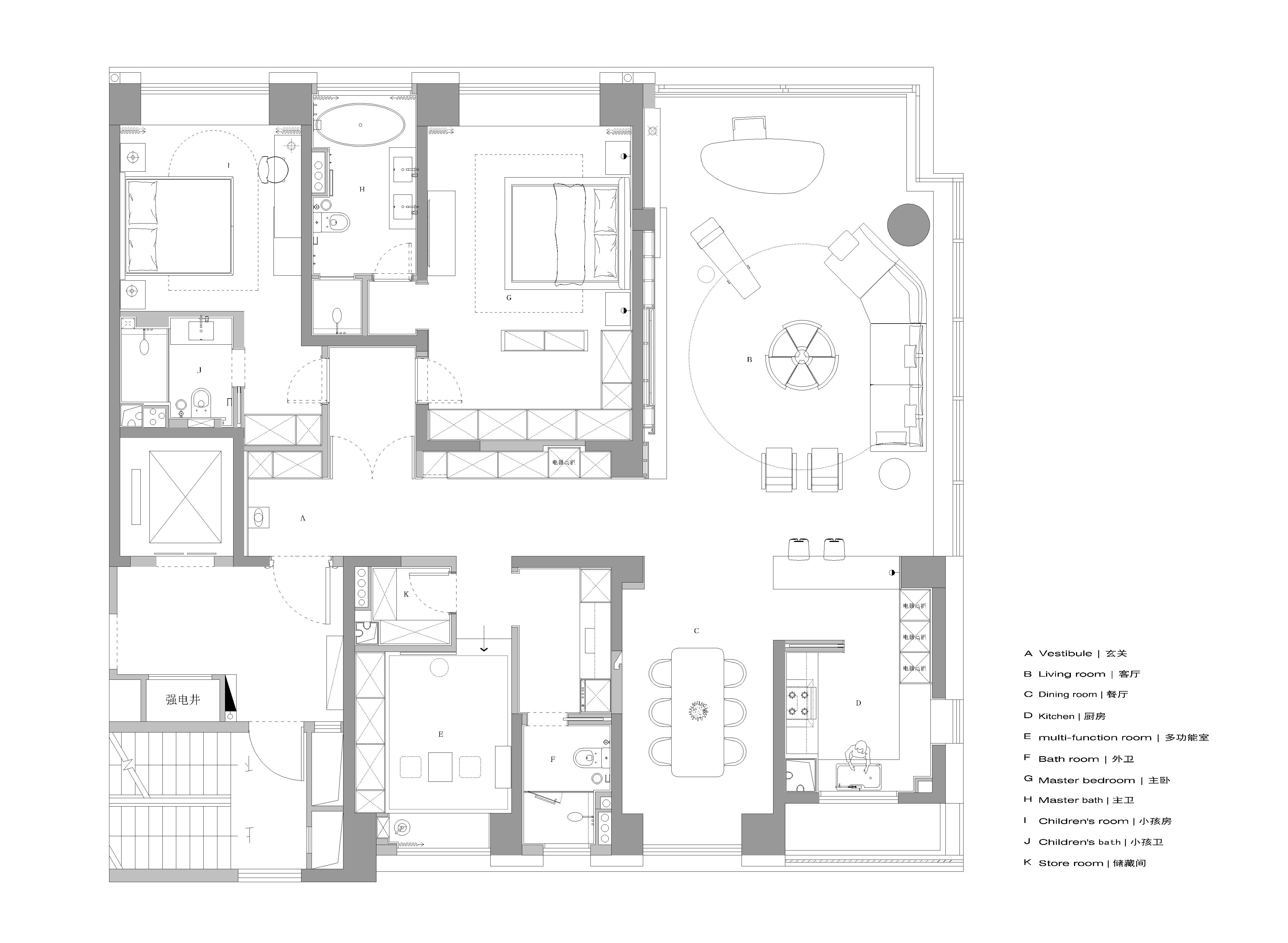
- 项目类型:住宅公寓
- 项目地点:温州市
- 建筑面积:225.0000㎡
- 项目造价:290.0000万元
- 主案设计师: 廖丽雪
- 参与设计师:廖丽雪
- 竣工时间:2022-09-01
- 设计机构:丽雪室内设计
-
项目定位:设计的原点是回归到本质,设计应该是一种减法。就像日本的美学,他们在器物上强调的是功能,不会有张扬的外观,但是非常好用,又兼具一种安静的美感。这是属于东方人特有的审美基因,所以很容易从这些简单的器物中被感动。
-
空间意境:卧室是最私密的空间,且功能纯粹。B&B的床用极简但精致的设计体现生活品质主义。一旁由Patricia Urquiola设计的Husk休闲椅给人放松,柔软的包覆感。
低饱和基调自带高级感,在空间中晕染开来简约和舒适。
-
空间布局:建筑是捕捉光的容器,当柔性的光与影融为空间场景的一部分。光线在墙壁、地面上自由地描画,光影变幻的各种可能性被攫取。
光在空间里舞蹈,空灵而轻盈,仿佛日落的一场仪式,在流动的时间里捕捉共鸣,唤醒内心深处对生活的热情。
-
设计选材:克制的平衡,不仅在简约的框架上,更体现在明与暗的细微对比之中。细腻的肌理处理,在满足视觉感受之外给人平和安静的共鸣。沉淀出一个使人内心安定的空间力量。
-
用户体验:最美好的日常,便是一切如常
而归家的仪式感
早已藏在你日常摩挲使用的器物里
藏在被风吹起的纱帘里
藏在家的宁静气息里
……
那落日余晖留下的片刻阴影
便是回家的理由
在喧嚣中寻觅内心安宁 在繁琐日常中探索本真 平衡简约与潮流 传统与时尚 家,是生活方式的外化表达
家的精神内核联系着主人的内心世界。 设计师秉持着极简的设计法则,以去繁从简的手法描绘简约且适于当下的布局。 抛去多余、过度的装饰材料,保持空间的质感与纯粹。通过将轻与重、冷与暖的元素进行合理地搭配,使得室内空间理性、宁静却不失生动和节奏。
「平衡的境」 客厅经使用场景的不同被划分为数个区域,不同区域间不做具象的分割,而是以融合的姿态强调空间的沟通属性。 由Jean-Marie Massaud设计的BRISTOL沙发是空间中体量最大的家具,弧形的设置带来温暖的包裹感,使落座变得趣味十足,同时亦是定下空间慵懒柔和的基调。来自Charlotte Perriand的Rio黑色大理石茶几居于其前,一冷一暖,一软一硬相映共生,而一旁的Le Corbusier的LC4皮质躺椅则表达着空间的自由与随意。
窗边的阅读区放置了由Charlotte Perriand设计的Table en forme libre,搭配了一张著名的Cab 413大师椅。 空间不做刻意多余的装饰,而是在遵循既有的使用规则前提下,配备兼具功能与美观的物件,勾勒出别具一格的层次感与格调感,中和了空间本身较为理性的氛围。
餐厅选择了Vincent Van Duysen设计的Oskar大餐桌。它的线条干脆利落,在视觉上表现为沉稳而内敛的艺术感。餐椅来自POLIFORM ,皮革包裹设计令其具备一定的体量感,配合餐桌形成轻重的平衡。
吊灯来自baxter的tunnele,用最简洁的线条展现光的可塑性,圆弧的形状将光线聚拢在餐桌之上,呈现静谧而舒缓的氛围。 如此组合让整个空间呈现如同音乐般的节奏感,桌椅的“重”较之灯饰的“轻”,横平竖直的理性,映衬曼妙的弧度带来的柔和感知,人于空间落座,得一刻放松之感。
「漂浮的光」 建筑是捕捉光的容器,当柔性的光与影融为空间场景的一部分。光线在墙壁、地面上自由地描画,光影变幻的各种可能性被攫取。 光在空间里舞蹈,空灵而轻盈,仿佛日落的一场仪式,在流动的时间里捕捉共鸣,唤醒内心深处对生活的热情。
设计的原点是回归到本质,设计应该是一种减法。就像日本的美学,他们在器物上强调的是功能,不会有张扬的外观,但是非常好用,又兼具一种安静的美感。这是属于东方人特有的审美基因,所以很容易从这些简单的器物中被感动。
卧室是最私密的空间,且功能纯粹。B&B的床用极简但精致的设计体现生活品质主义。一旁由Patricia Urquiola设计的Husk休闲椅给人放松,柔软的包覆感。 低饱和基调自带高级感,在空间中晕染开来简约和舒适。
最美好的日常,便是一切如常 而归家的仪式感 早已藏在你日常摩挲使用的器物里 藏在被风吹起的纱帘里 藏在家的宁静气息里 …… 那落日余晖留下的片刻阴影 便是回家的理由

