她 Her



- 项目类型:别墅
- 项目地点:南京市
- 建筑面积:600.0000㎡
- 项目造价:450.0000万元
- 主案设计师: 陈海
- 竣工时间:2022-06-16
- 设计机构:木桃盒子室内设计
-
项目定位:该项目是坐落在南京市郊的独立别墅,建筑面积约600m²,还有约300m²的前后庭院。女业主喜欢莫奈和席勒,常常花费几个月的时间来临摹一幅作品;她常常在午后客厅的角落听着Sarah McLachlan,读着罗曼罗兰;会为小猫的顽皮而生气,也会为院子里第一朵绽放的茉莉而惊喜......在这套别墅里,她想要的浪漫、文艺以及生活的仪式感都会一一体现。
-
空间意境:较高的艺术审美及居室要求,让品味与自由成为刚需,使生活更具艺术气息。
-
空间布局:调整主卧室空间动线,考虑到私密性,设计主卧过厅,避免开门见床的尴尬。过厅左右两侧空间均为衣帽间,满足业主日常储物需求。
-
设计选材:餐厅顶面造型做了一些模块化的阵列组合,丰富空间视觉效果。
-
用户体验:业主一家入住后对整个空间的效果和入住体验都很满意!
客厅保留了结构原有的尖顶形式,将中央空调设备分别隐藏于落地窗顶面和书柜内,三连拱形门洞的设计拉伸了整体空间,弱化了结构上重下轻的弊端,同时用绿色石材做类似图腾装饰与餐厅顶面模块化的阵列组合造型形成呼应。软装的选择偏当代风格,既出跳又统一。
客厅保留了结构原有的尖顶形式,将中央空调设备分别隐藏于落地窗顶面和书柜内,三连拱形门洞的设计拉伸了整体空间,弱化了结构上重下轻的弊端,同时用绿色石材做类似图腾装饰与餐厅顶面模块化的阵列组合造型形成呼应。软装的选择偏当代风格,既出跳又统一。
餐厅向厨房一方平移部分空间,使整体空间对称,将原先餐厅的三扇小窗户扩为落地窗,让餐厅有充足的光线,也可欣赏户外庭院的景色。餐厅顶面则做了一些模块化的阵列组合,丰富空间视觉效果。
开放式厨房,定制橱柜安装嵌入式冰箱及蒸箱、烤箱、咖啡机、洗碗机等厨房设备,超大操作台面可放置多种料理设备。为了追求复古的效果,在厨房岛台石材台面边口故意留出一块空间,安装实木装饰台板,因为它的加入,让厨房多一分温润的感觉。
将原先户外庭廊部分纳入餐厅空间,靠窗位置定制布艺软包卡座,可做下午茶休闲空间。选择经典Fornasetti风格的Cole&Son 石榴猴子墙纸,搭配姜黄色布艺软包与白色木制门窗套形成视觉反差。靠墙一侧定制实木装饰酒柜,可收纳女主人平时收藏的各式茶具。
将原先户外庭廊部分纳入餐厅空间,靠窗位置定制布艺软包卡座,可做下午茶休闲空间。选择经典Fornasetti风格的Cole&Son 石榴猴子墙纸,搭配姜黄色布艺软包与白色木制门窗套形成视觉反差。靠墙一侧定制实木装饰酒柜,可收纳女主人平时收藏的各式茶具。
主卧室的设计融合了古典浪漫与现代简约,营造出一种不拘一格的舒适宜人风格。过道的拱形顶面造型和两根定制的多立克立柱,给整个卧室空间带来十足的仪式感,通往阳台的木制百叶折叠门也保证了卧室的私密性。
酒红色丝绒床尾沙发使房间内亮丽的色彩更加突出。
如同古堡阁楼的化妆间是由原门厅挑空空间改造而成,也是整个卧室的亮点所在。
拆除主卧原有部分墙体,利用过道重新细化主卧室及主卫空间功能。
负一楼起居室空间为女主人的画室。宽大的楼梯下方摆放着一架复古钢琴,过道墙面挂满女主人平时的画作,画室角落可摆放画架、写生端景台等,落地窗前摆放休闲沙发,可作休憩使用。较高的艺术审美及居室要求,让品味与自由成为刚需,使生活更具艺术气息。
拆除原东南角房间与室外庭廊之间的墙体,扩大空间作为茶室。安装推拉移门,经此通往户外庭院。靠窗位置做水吧台,满足茶室功能需求,定制高柜并安装嵌入式冰箱存放饮料、茶叶等。
户外庭院也是业主最喜欢的地方,在这里他们可以得到充分放松。在设计庭院布局时,我们通常更注重空间和景观的效果,而往往忽略了室外照明的设计,合理的照明设计,可以给庭院带来温暖和浪漫的人文氛围,有些照明设备在白天也是一种景观装饰。
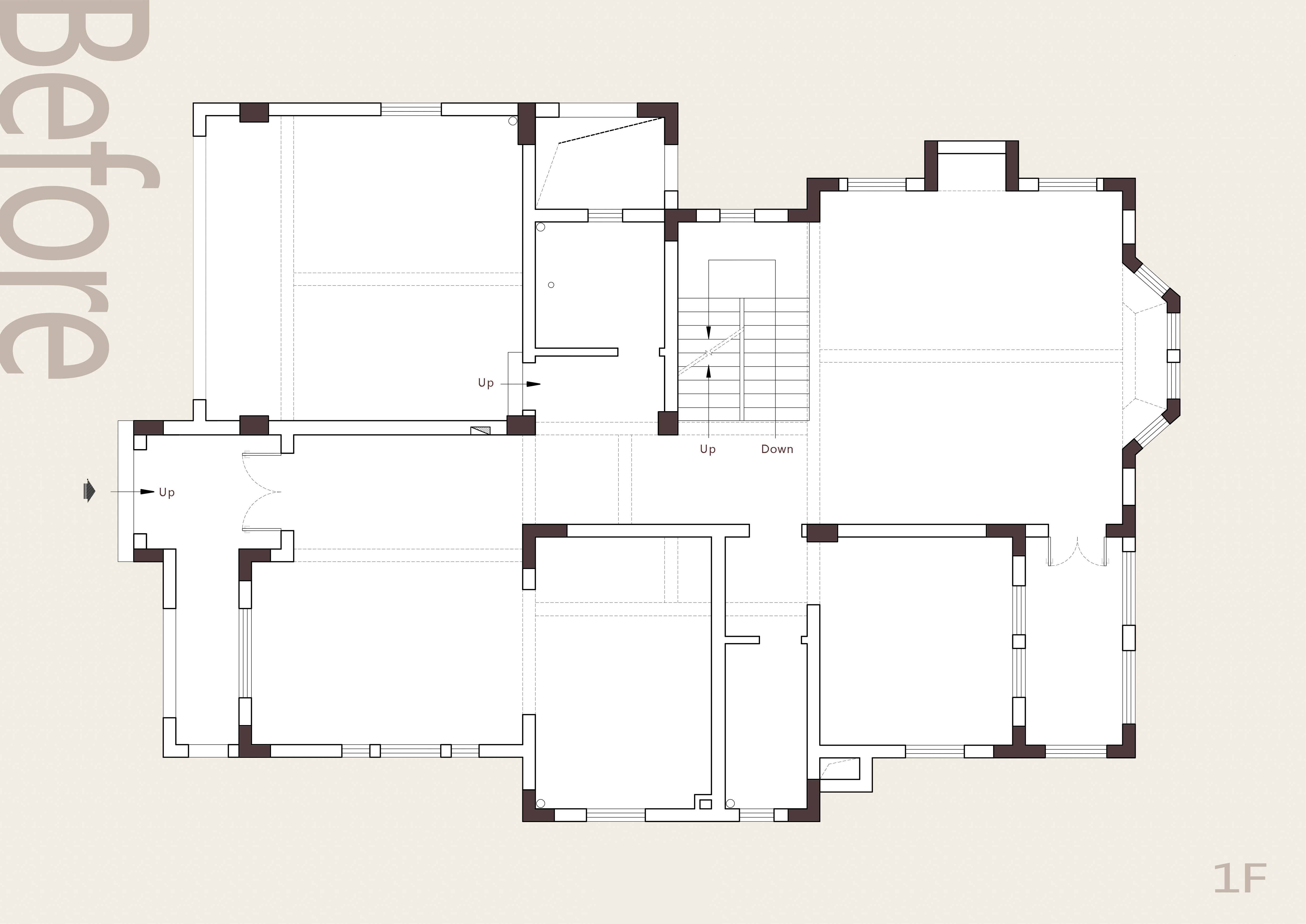
一层原始结构图
一层平面布置图
二层原始结构图
二层平面布置图
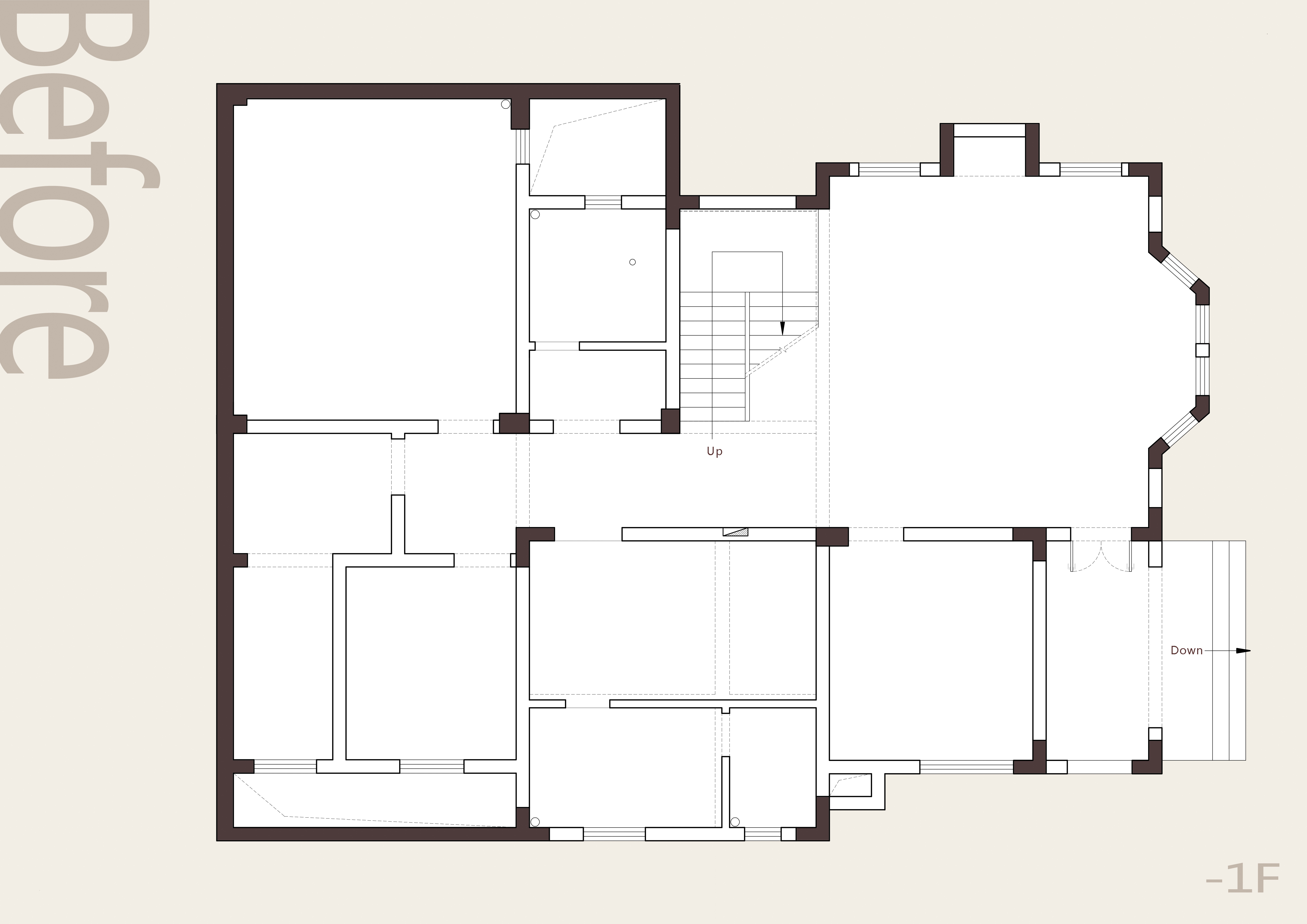
负一层原始结构图
负一层平面布置图

