《素·朴》
921
作品说明
- 项目类型:住宅公寓
- 项目地点:苏州市
- 建筑面积:100.0000㎡
- 项目造价:50.0000万元
- 主案设计师: 陈静
- 参与设计师:任欢民、李永歉
- 竣工时间:2021-10-07
- 设计机构:常熟禾景装饰-大陈设计
-
项目定位:“朴素而天下莫能与之争美”——庄子
设计师从庄子里受到启发,主张取材于自然用之于生活,去掉不必要的装饰,还原物品本真之美,在日常生活中,我们也常见到山光水色、花草树木等自然之物,往往独具天然的风韵更胜于刻意的雕饰。 -
空间意境:与众多有着百年历史的老建筑为邻,“七溪流香穿郭过,半山飞绿进城来”业主相中了这里灵秀清远的环境氛围,想要打造一个能够与好友欢聚的修心养性之所。
一个美好的小院子,
胜过诗和远方。松石山林,翠竹挺拔,足以盛放心情的喜乐,四季的光影从方洞中流转。抬头是万物生长的美好姿态,低头是一个人的宁静与安逸。 -
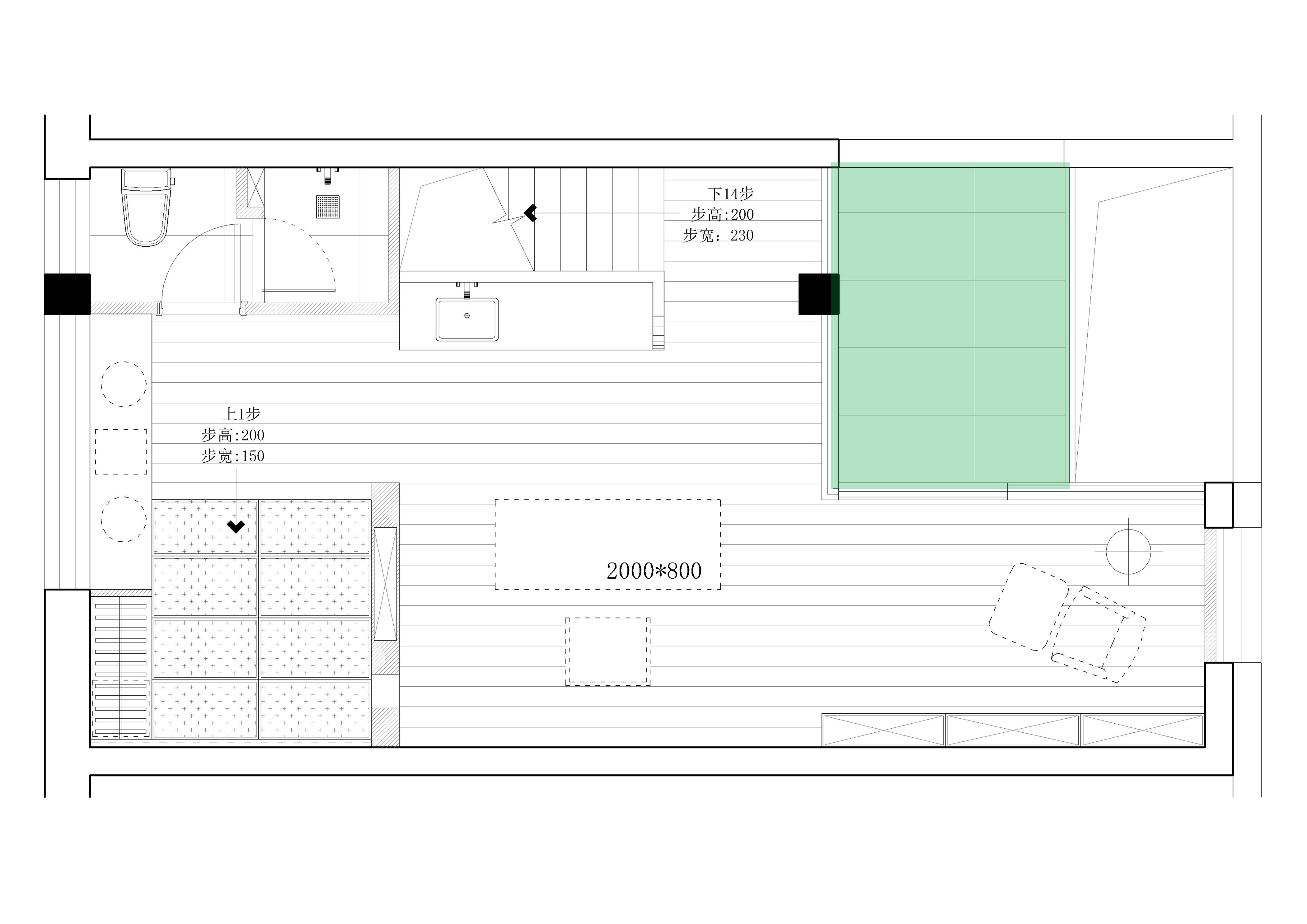
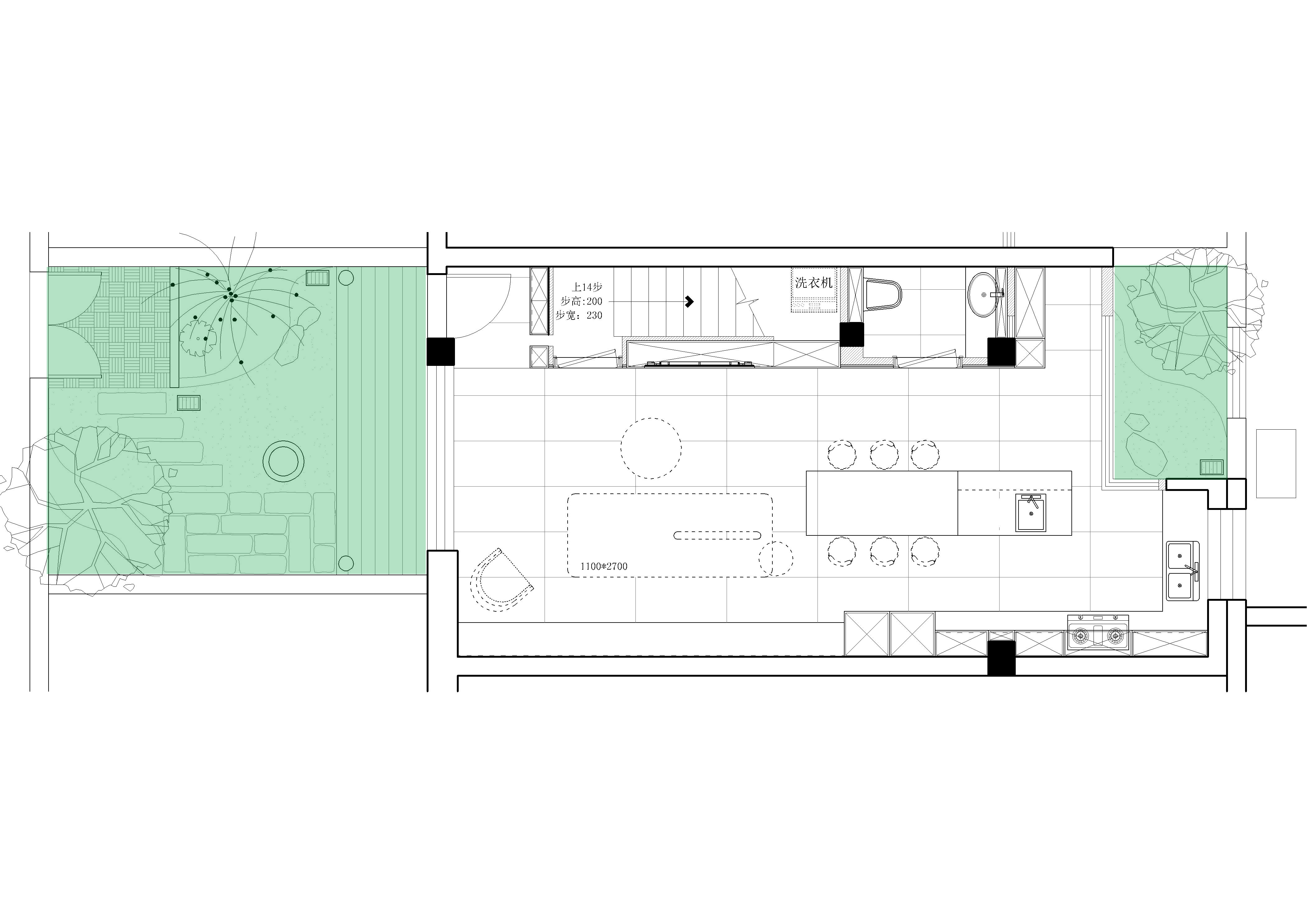
空间布局:一层空间采用了开放式设计,
从厨房到餐厅再到客厅,视觉上没有遮蔽,在空间上连成了一个整体。一扇不大的小窗,仿佛取景框,将室外的美景与阳光引入,也赋予了美食更多温度和感情。原木材质自带的色调和肌理,赋予空间质感以温柔。包容的白色为底, 绿植做点缀晴天透过阳光。 叶影婆娑为空间带来无限生机,业主在周末会邀请一些好友来聚会,开放式格局让沟通有了更多可能。
客厅形成了洄游动线,沙发位置可以随时变换,使用起来更加灵活多变。电视背景墙采用了隐藏式设计,利用隐蔽空间收纳,不用的时候可以“藏”起来,让整个空间更加干净通透,增加生活的舒适性。
二层为了满足业主对安静私密空间的向往,
设计师将楼上规划为看书、喝茶、修心养性之所。
书房作为文士的精神家园,更是人们寻找自我的归途。简洁的直角线条、考究的材质工艺,透过每一个细节,呈现出空间美学与实用主义的平衡感。 -
设计选材:天花板保留了有温度的老木头,为空间带来一丝岁月的厚重感。线条通过韵律感的排列与运用,赋予空间独特的美感。
-
用户体验:门外是明月清风、门里是人间灯火。
0
0

认证 · 让您身份增值