-
项目定位:整体定位简洁的视觉感受,更多突出房屋的质感与外部景观感受
-
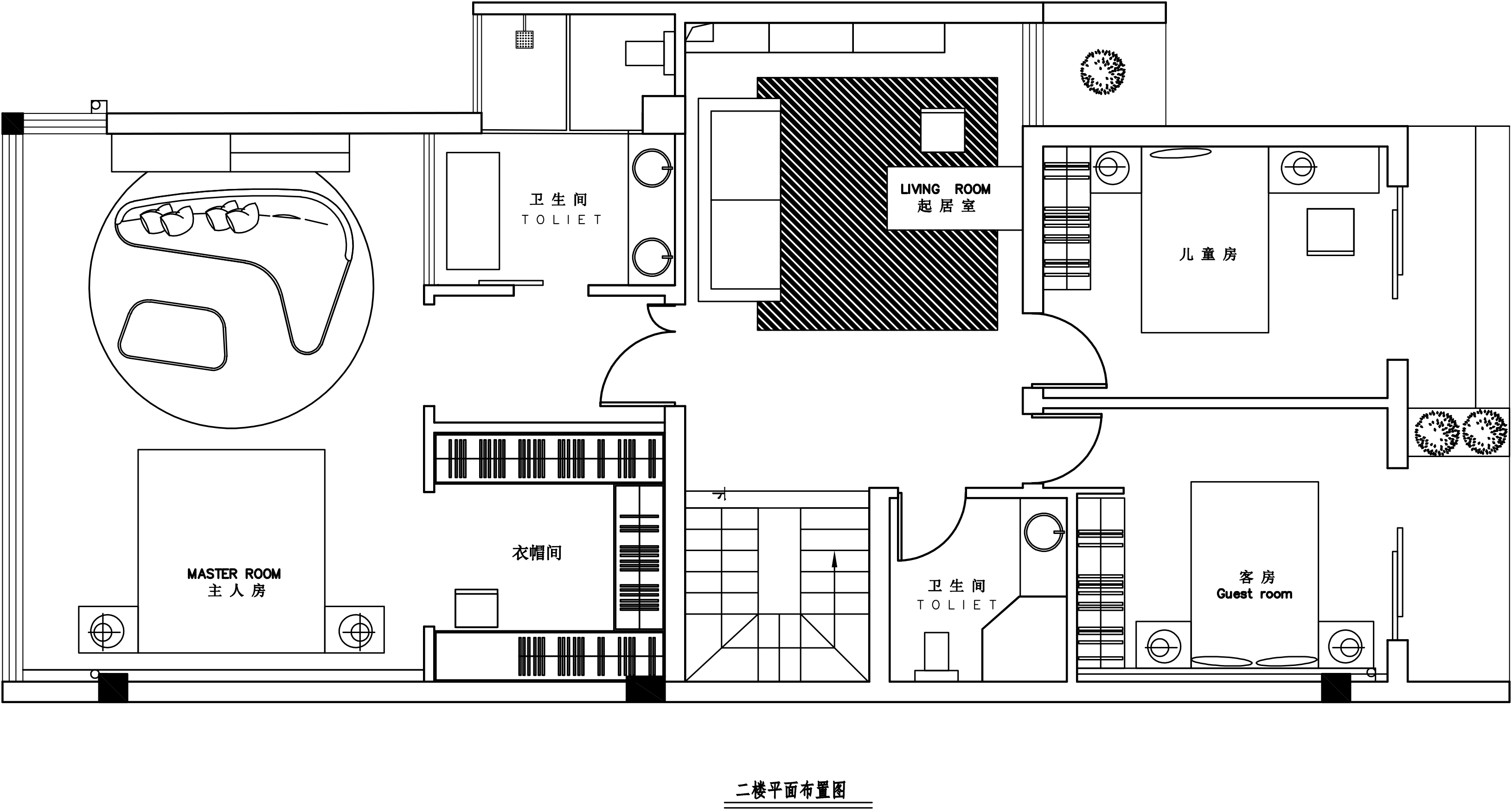
空间意境:本作品是位于山顶的别墅,靠山面湖,楼梯定位在中间,动线分明,两端光线和观景感受都特别好。客厅可以看前面的湖水和山脉风景,厨房靠后山。餐厅位置可以同时看前后景观。主卧视看湖,有6米多的窗户视线宽度。
-
空间布局:楼梯在中,动线分明。前后景观好。
-
设计选材:地面选用无限连纹石材纹理,密缝铺贴。沙发墙用铝板冲孔做了背景墙和隐形门,弱化了电梯入户门的视觉效果也有一种半通透的视觉层次。
-
用户体验:整体感受很简洁,更显材质质感,结构改造后空间尺度好,好用
0
2

认证 · 让您身份增值
329