-
项目定位:国外旅居归来的女业主对生活品质极为重视
喜欢深色简单的装饰
于此出发,设计师大胆运用黑色作为主色调
组合谨慎的极简主义
去凸显强烈的个人风格
随处可见的黑色
令人仿佛置身于静谧的宇宙之中
洒脱、纯粹
最少的颜色却有着极为丰富的层次感 -
空间意境:大面积的深色搭配小面积的色彩点缀,营造氛围的同时与周边宁静的环境做呼应。
-
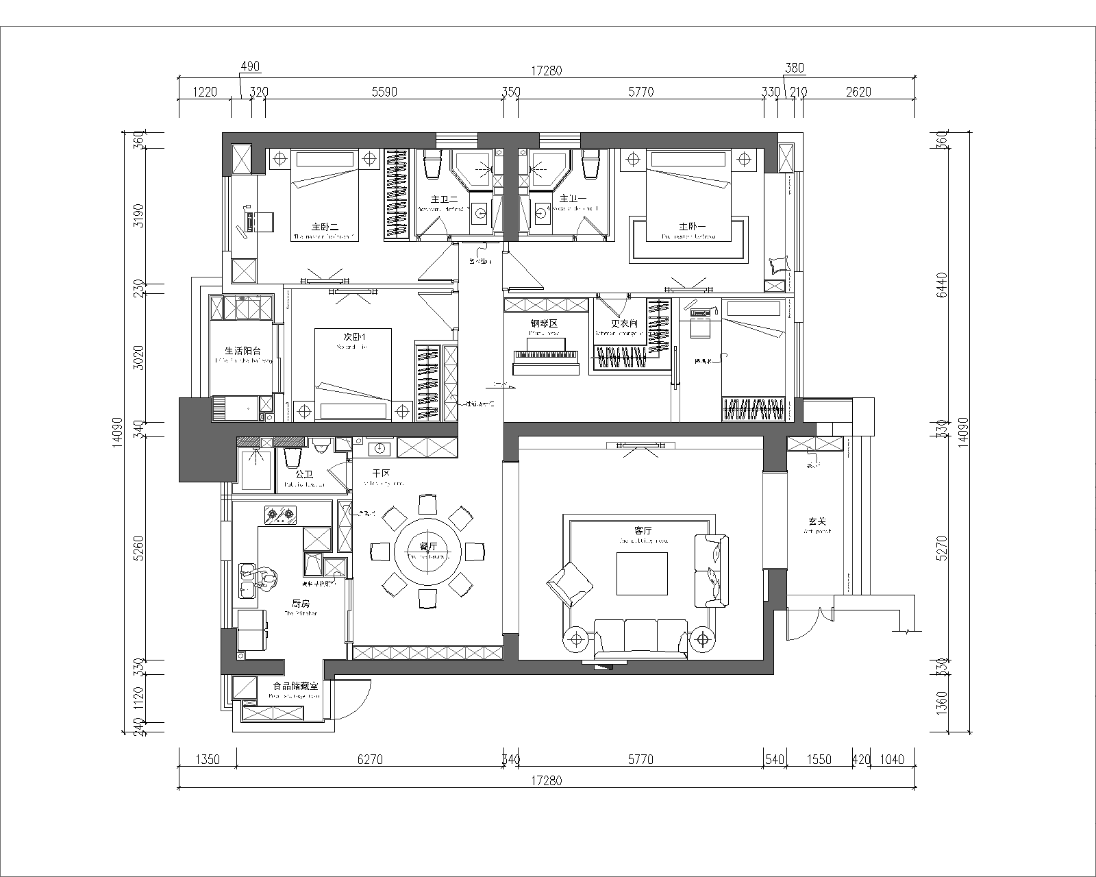
空间布局:分割一个卧室承载钢琴区,并适当抬高与过道做分区
-
设计选材:用了PU石材等一些可循环利用的材料代替了石材,更加的节能环保
-
用户体验:整体风格、布局舒适,居住舒服。
国外旅居归来的女业主对生活品质极为重视 喜欢深色简单的装饰 于此出发,设计师大胆运用黑色作为主色调 组合谨慎的极简主义 去凸显强烈的个人风格 随处可见的黑色 令人仿佛置身于静谧的宇宙之中 洒脱、纯粹 最少的颜色却有着极为丰富的层次感 为了消除黑色带给人的压抑感 设计采用大面积的落地窗保留优越的采光 用软性的沙发装饰 温和的木色中和明暗 再加入白色的顶面提亮空间 与此同时 柔和的温暖光线 不动声色勾勒出空间的视觉重点 又与深邃的色调完美融合 在照明功能和美学尺度上达成平衡
深沉凝练的黑,褪去缤纷色彩 洗尽生活的铅华 化身为一种低调的奢华 平静但不失深刻 电视背景墙 Pu石皮营造出天然石材的朴拙 也赋予黑色更美的灵魂 无主灯的设计让光源散落在空间的每一处 营造出一种神秘、干练的空间感
与客厅相比 餐厅融入了更为鲜明的色彩 去打造层次丰富的视觉感受 设计通过一抹欢快活泼的橙色 制造充满戏剧冲突的精彩感 再添一株绿植,化解黑的沉寂与古板 让空间更为轻盈,灵气斐然
钢琴区,水波纹不锈钢的墙面如星河般璀璨 抬眼望去 群星仿佛越过亿万光年在眼前闪耀
卧室作为居室主人的私属空间 所体现的氛围感将直接影响居住者的心情 主卧 浅色的床品、白色的顶面及木色地板 中和了黑色墙面带来的冷酷感 既保留了黑色的低调高雅 又将温馨与安宁植入空间 为居者打造美妙放松的感官之旅
理想的家不需要繁杂多样的华美风格 而是一处 能让人放松安心的纯净空间 设计师深入思考当下的居住方式及生活习惯 去除了生活中的繁杂 以奢阔空间基调 赋予居者独一无二的生活体验
0
0

认证 · 让您身份增值
1284