叙旧·山海事
798 - 项目类型:商业
- 项目地点:凉山彝族自治州
- 建筑面积:1700.0000㎡
- 项目造价:63.0000万元
- 主案设计师: 孟南辛
- 参与设计师:孟南辛
- 竣工时间:2022-01-15
-
项目定位:项目坐落于国家4A级自然风光泸沽湖景区内,地处山和海之间,是一个沙质色调、丰富纹理和郁郁葱葱的天堂。共1700平方米的住宅只设10个房间,定位为中高端度假型民宿,设计师意图将现代简约的休闲度假美学与本土文化相融合,打造独树一帜的度假品牌。
-
空间意境:建筑外观整体呈现一个大的木质框架,拾级而上的几何阶梯入口处结合绿植与整个传统外观结构形成对比,有摇曳生姿的白色芦苇,引领人们进入主要的户外空间。
房屋采用原始的高差与室外生活并置出入口,四周合出户外休憩、社交场所。在整个设计中,设计师与山川为挚友,草木为知己,尊重自然,尊重每一种天然材质的本质属性,拥抱材料的自然缺陷美,并决心呈现它们自然老化的过程,凸显自然之美,真实之美。
质朴的室内,安静的器物简朴宜人,室内陈列中的布艺与光影交叠,点点滴滴都透着一种自然、简朴、侘寂之美。 -
空间布局:在设计过程中,摒弃了传统落地窗的做法,更多的采用了水平长窗的设计手法,限制了窗户露出的尺度,遮挡住多余的视线,赋予窗外风景更多的力量,让每个房间都可以以最佳的视角眺望远处的格姆女神山,让人放松、冥想。
每间客房作为独立单元,以空间产品围绕休息区作为枢纽中心,进行围合式陈列,增加居住着者的交互性。 -
设计选材:运用了大量天然材料并将这些天然材料与设计美学及可持续设计融合在一起,追求手工打磨出来的极致质感与时间感,展现一种充满岁月感和现代之美,赋予建筑与物件更多的内在情感联系,为空间与建筑增添一份宁静,创造美好的和谐氛围。从风化的木材到天然的石材,从水洗石到夯土墙,甚至从羊毛到亚麻布,最大限度将这些天然材料与当地美学及可持续设计融合在一起,希望通过精致而简约的线条与素朴的色彩在设计与艺术之间找到一种源于内心的平衡。
-
用户体验:1.民宿设计领头设计师谢珂老师现场参观,给予高度评价。
2.云南旅游局某领导现场参观,交流民宿生态行业发展。
3.获得抖音及小红书等各大自媒体平台百万博主打卡自发宣传。
4.同行争相参观,落地效果排名泸沽湖前3。
5.上架后,在携程及其他民宿预订平台,一售而空,长期排队预定。
山海事的名字灵感源自于唐代大诗人李白“朝下过卢郎中叙旧游”,表达了旧友思忆过去在山林海边游玩,明湖赏月的情景,并相约某日重返山林,在美丽的田野大醉的和谐意境。 应当地政府要求,建筑外观整体呈现一个大的木质框架,拾级而上的几何阶梯入口处结合绿植与整个传统外观结构形成对比,有摇曳生姿的白色芦苇,引领人们进入主要的户外空间。项目坐落于国家4A级自然风光泸沽湖景区内,地处山和海之间,是一个沙质色调、丰富纹理和郁郁葱葱的天堂。 房屋采用原始的高差与室外生活并置出入口,四周合出户外休憩、社交场所。总共1700平方米的住宅只设10个房间。
在设计过程中,摒弃了传统落地窗的做法,更多的采用了水平长窗的设计手法,限制了窗户露出的尺度,遮挡住多余的视线,赋予窗外风景更多的力量,让每个房间都可以以最佳的视角眺望远处的格姆女神山,让人放松、冥想。 房屋对面有着天然的湖景展开来,清澈见底,描绘出建筑领地的延伸,蓝天白云倒映在水中,宛如一幅即时的水上油画,整体相得益彰。
底层有一个公共就餐区、一个大型水吧台、一个客厅和有一个比较私域的一间卧室。楼梯通向二三层的各个独立套房,可以俯瞰户外草坪和湖景。客人还可以在草坪享受一些设施,包括烧烤、户外电影和举办活动。
大厅作为空间的枢纽中心,家具的用心摆放和物件的自由排列,体现了使用者的审美情趣和与世界的相处之道。舒适、愉悦、和蔼,恰是这个空间的氛围。 手工砖构成的地面,会让人想起时间的堆积,可以更清晰、更强烈地表达这座房屋的风格和印象。在这里,旧物与新旧家具搭配,碰撞出强烈的时间印记感,开敞式的壁炉,体现出浓浓的乡野味。此时它们是一种艺术行为,更是心灵沟通的一种安静的生活方式。
路边拾到的干支,配上质朴的陶罐,都是自然赋予的艺术品,被放置得恰到好处。艺术不是刻意,是不经意间的流露。
沿着大厅我们经过开放式就餐区,穿过拱门进入内部,到达连接内部各个功能空间的走廊。
走廊尽头两侧分别是厨房和户外休闲区域,中间选择了一张比较有自然感觉的休息长凳。室内使用了一种舒缓的色调,与房屋外部的传统木墙形成对比。
楼梯转角处过道几何形窗洞形成光柱,巨大的光影在地面和墙壁上游走,使空间的线条具有立体感,此时室内自然成为“光的容器”。
一层独立客房有一个围合式下沉户外庭院,环绕着中央火盆展开。到了晚上,客人们观望星空,创造一种宁静的感觉,并将闪亮的景色定格。
设计师运用了大量天然材料并将这些天然材料与设计美学及可持续设计融合在一起,追求手工打磨出来的极致质感与时间感,展现一种充满岁月感和现代之美,赋予建筑与物件更多的内在情感联系,为空间与建筑增添一份宁静,创造美好的和谐氛围。
从风化的木材到天然的石材,从水洗石到夯土墙,甚至从羊毛到亚麻布,设计师最大限度将这些天然材料与当地美学及可持续设计融合在一起,希望通过精致而简约的线条与素朴的色彩在设计与艺术之间找到一种源于内心的平衡。
在软装的选择上,为了营造自然舒适的感觉,整体色系以暖色系为主,包括墙顶面的漆,房屋门窗,包括大部分的家具都是以暖色系和自然材质为主,给人温暖放松的氛围感。材料的色泽、质感和触感,最终在空间中穿出光晕。空间就像人一样,虽然情绪难以捉摸,但有一种看得见、摸得着的体验。
在整个设计中,设计师与山川为挚友,草木为知己,尊重自然,尊重每一种天然材质的本质属性,拥抱材料的自然缺陷美,并决心呈现它们自然老化的过程,凸显自然之美,真实之美。
无论日色东升,还是斜阳落山,这栋房屋都呈现最美的光影变幻。质朴的室内,安静的器物简朴宜人,室内陈列中的布艺与光影交叠,点点滴滴都透着一种自然、简朴、侘寂之美,设计师意图将现代简约的休闲度假美学与本土文化相融合,打造独树一帜的度假品牌。
一层平面布局
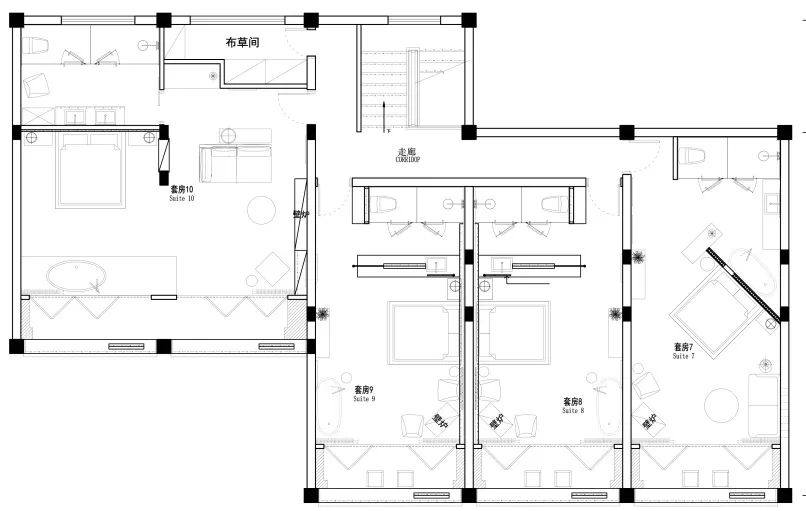
二层平面布局
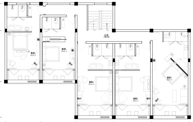
三层平面布局
0
0

认证 · 让您身份增值