龙湖·九里熙上样板间(下叠)
619
作品说明
- 项目类型:样板间/售楼处
- 项目地点:成都市
- 建筑面积:320.0000㎡
- 项目造价:96.0000万元
- 竣工时间:2022-07-09
- 设计机构:锐度设计
-
项目定位:设计深植对生活的追逐与热爱,集先锋多元视角,探索当代精英对于理想居所的精神追求,从人文、品质、艺术等维度,打造英伦时尚、摩登东方的成都新一代人居生活样本。
-
空间意境:美有很多种定义,它不仅是一种多维度的尝试,也是源自生活的一种思考。而今,复古英伦与现代摩登的相融早已不再拔新领异,但锐度设计在此次项目中,从艺术时尚的不同视角入手,给出了另一种表达。
-
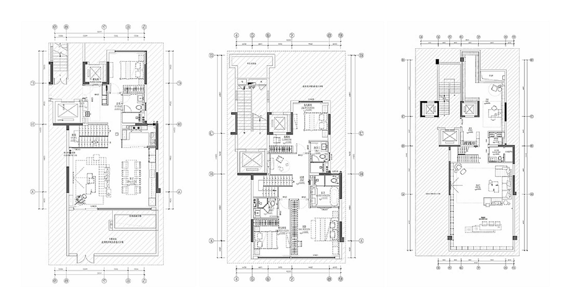
空间布局:
客餐厅以开放的空间形式,强化出互动关系,适配于多种场景的灵活切换。大面积的落地窗将户外景致与室内空间融合,渗透进居住的日常当中,形成了新的生活社交发生场。休息厅打破传统的固有印象,根据当下的生活需求,在家庭生活模式和社交模式中自由转换。健身区与阅读区共存于同一个空间,利用玻璃屏风与休息厅巧妙相隔,让空间有着不同韵律的过渡。 -
设计选材:运用了天然大理石和木纹饰面板,让空间温润且有质感,后期维护较少,能较好的保持初始状态。
-
用户体验:客户评价很高,样板间开放之后,多人进行参观。
整体空间色彩以深浅不一的灰色系打造独特气质。客厅空间方正,天然大理石结晶出时间的浪漫,糅杂着金属线条。在深色木纹饰面板的相互结合下,各种材质以各司其职,引发了感官及精神层面对美的通感。
客餐厅以开放的空间形式,强化出互动关系,适配于多种场景的灵活切换。大面积的落地窗将户外景致与室内空间融合,渗透进居住的日常当中,形成了新的生活社交发生场。
圆弧波浪元素吊顶与灰色木饰面融合,明暗互衬,对比鲜明,让艺术与感性在不经意间传达至各处。在一餐又一餐的人生旅程中,感悟烟火人生。
不被时空的边界裹挟,才是生活的最高级。休息厅打破传统的固有印象,根据当下的生活需求,在家庭生活模式和社交模式中自由转换。空间不再局限于外在之美,精神场域也在规划范围之内。
多元文化与艺术的盛行,让新一代社会精英的生活不再只是工作的忙碌和日常的琐碎,他们渴望表达自己的生活态度,追求自己的生活方式。健身区与阅读区共存于同一个空间,利用玻璃屏风与休息厅巧妙相隔,让空间有着不同韵律的过渡。
设计的本质,是在功能性与情感之间寻求一个平衡。主卧以灰色为基底,充分考量了日常生活场景的舒适感。极具造型感的艺术装饰,不造作,不张扬,如同写入随性的肌理中,透射出时光的光泽和生活的温度。
空间承载的是一种实实在在的生活。老人房延续摩登东方的设计理念,整体采用弧形细节收口,保证了功能独立的同时,又强化了整体延续性。床头背景提取东方元素,墙布硬包造型墙体搭配细腻的床品织物肌理,雅致而内蕴。
儿童房充分考虑孩子的性格特征,不为空间设限。女孩房温暖而纯净,清新淡雅的色调契合少女浪漫的情怀,纯真而美好。
平面图
0
0

认证 · 让您身份增值