911之家


作品说明
- 项目类型:住宅公寓
- 项目地点:扬州市
- 建筑面积:180.0000㎡
- 项目造价:100.0000万元
- 主案设计师: 王飞
- 参与设计师:张茜
- 竣工时间:2022-05-20
- 设计机构:华浔品味装饰
-
项目定位:本案设计师王飞,拿到本案就有了自己的独特的构思和理念,他觉得家可以被爱包裹,从爱设计
-
空间意境:风格上设计师做了自己独到的现代极简的设计手法
-
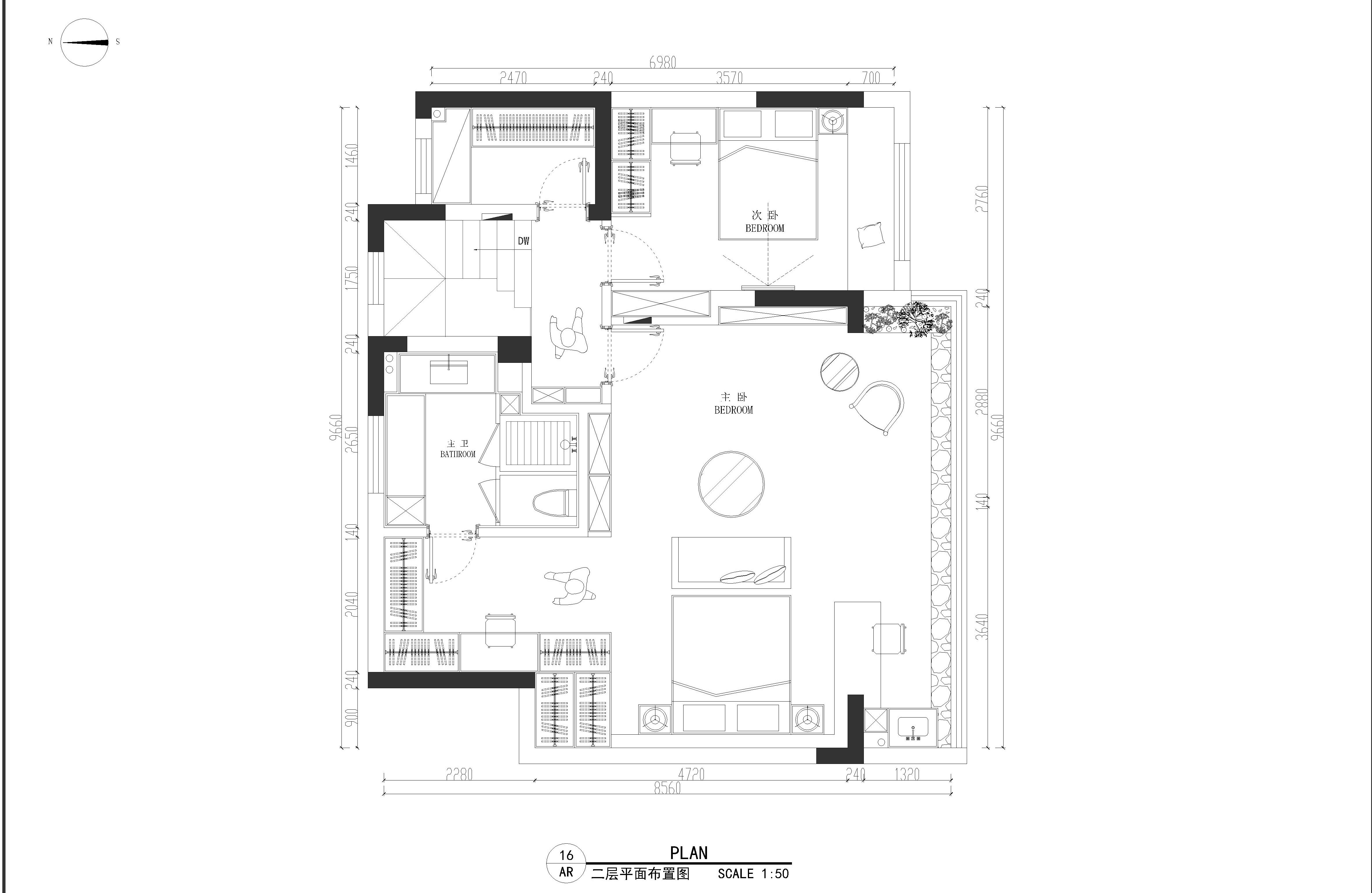
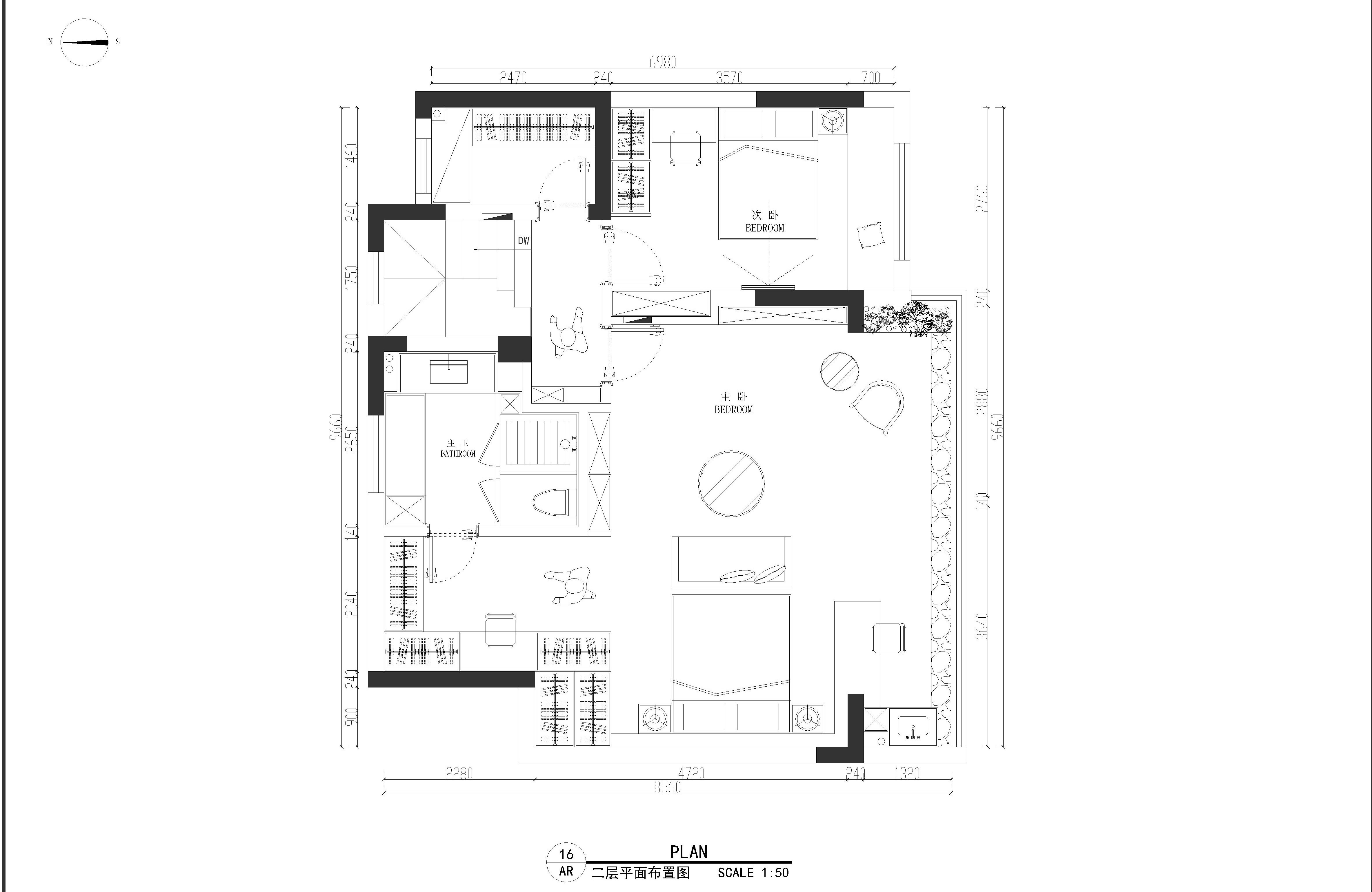
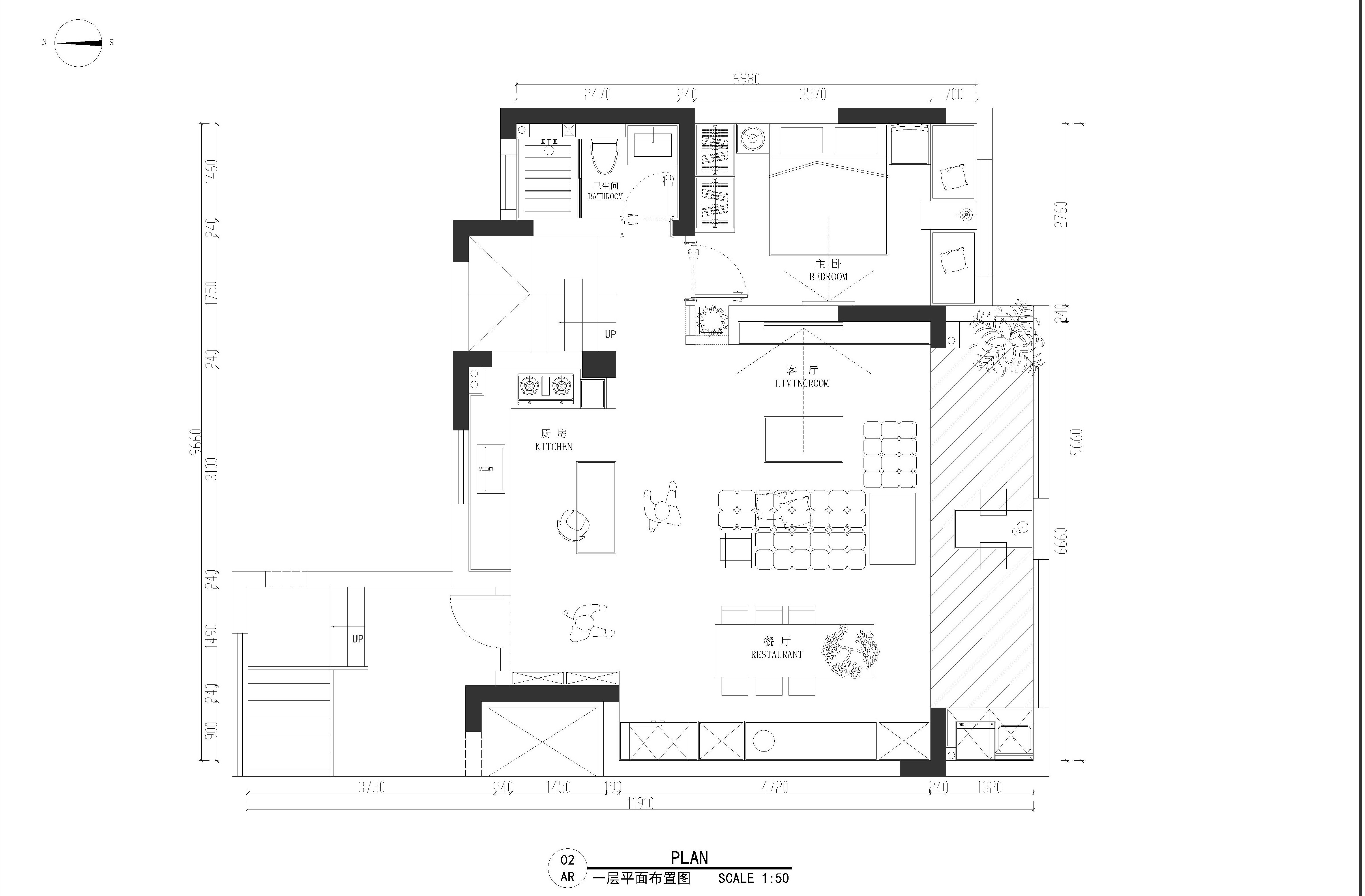
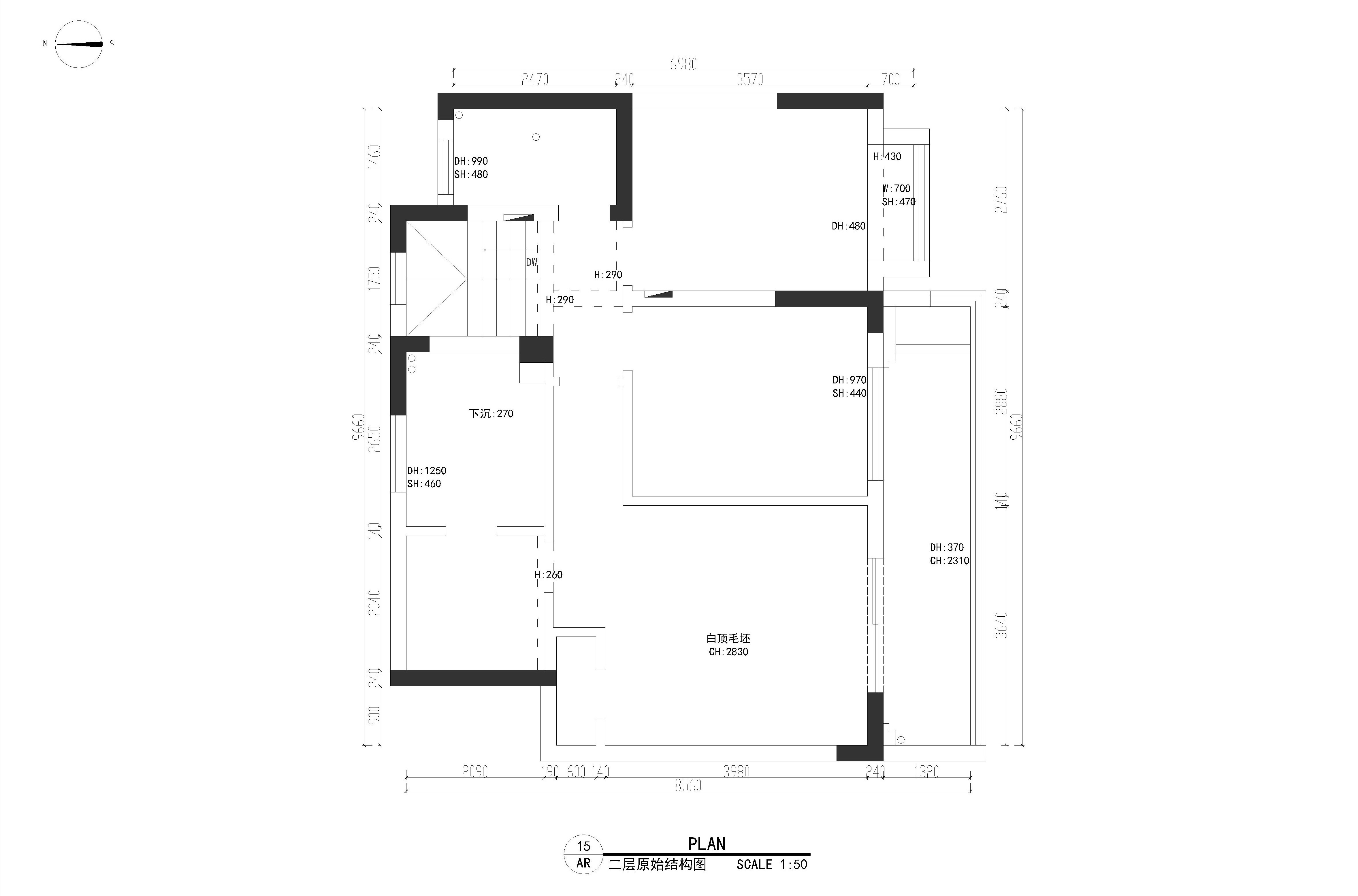
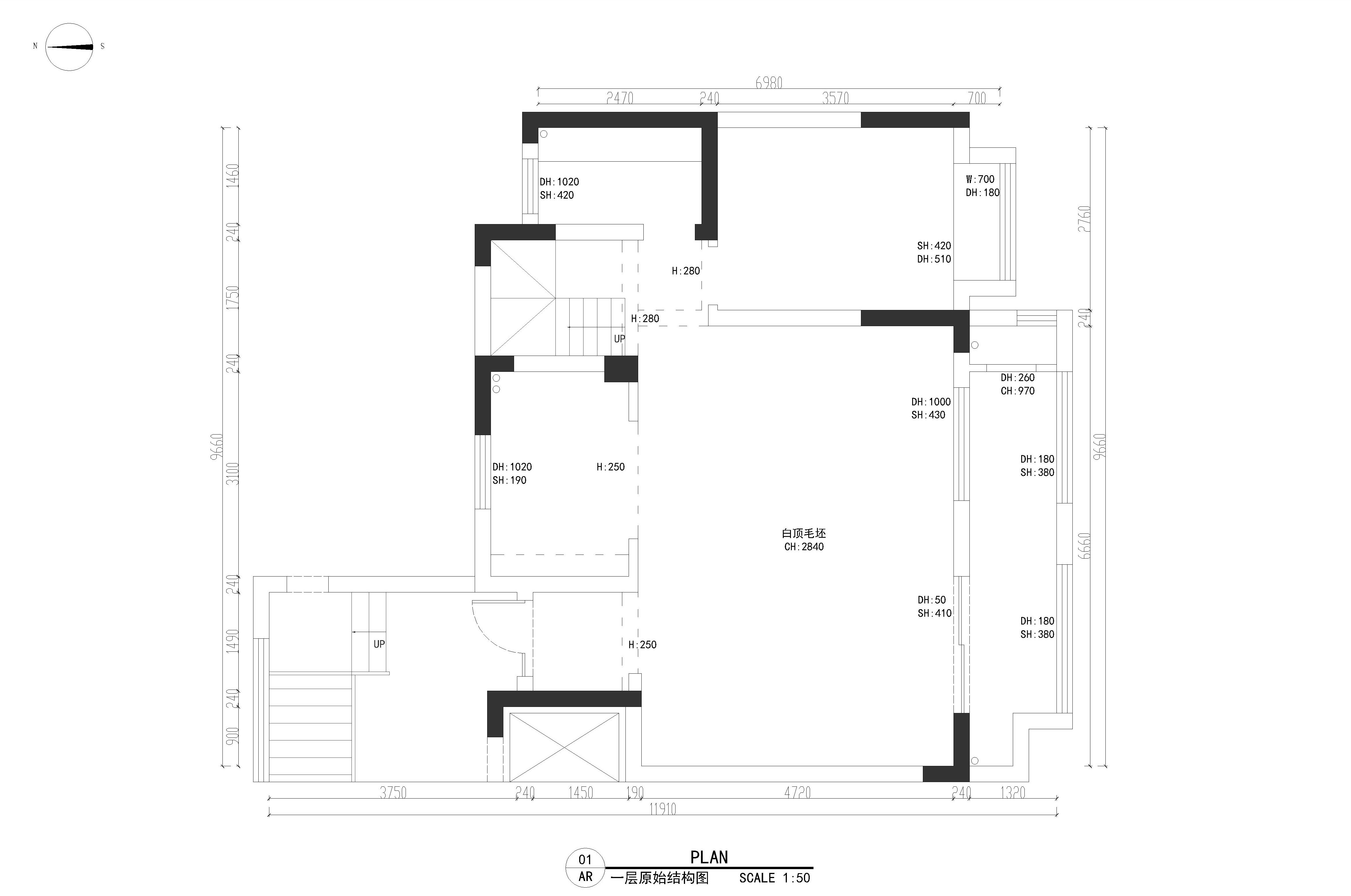
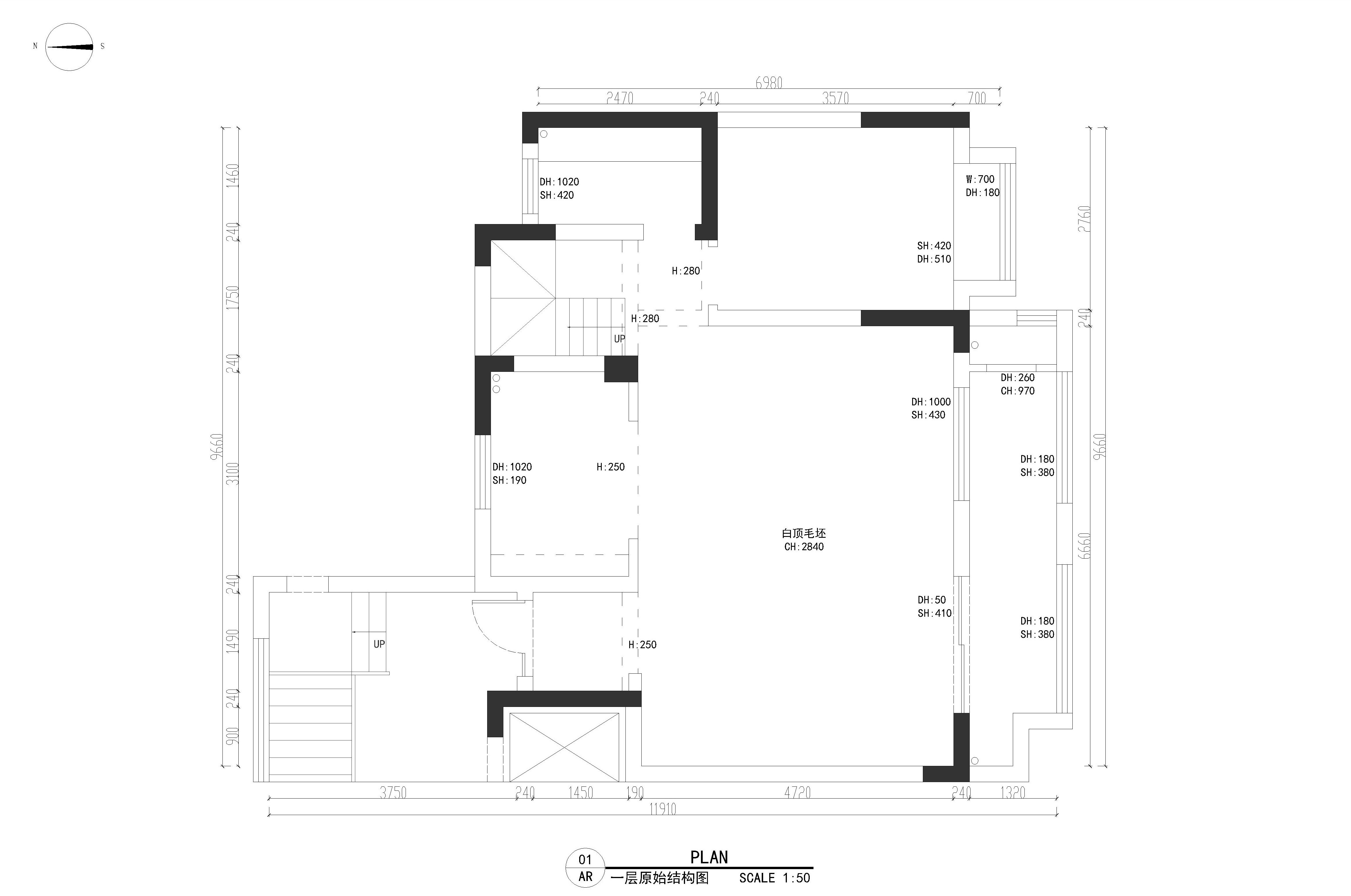
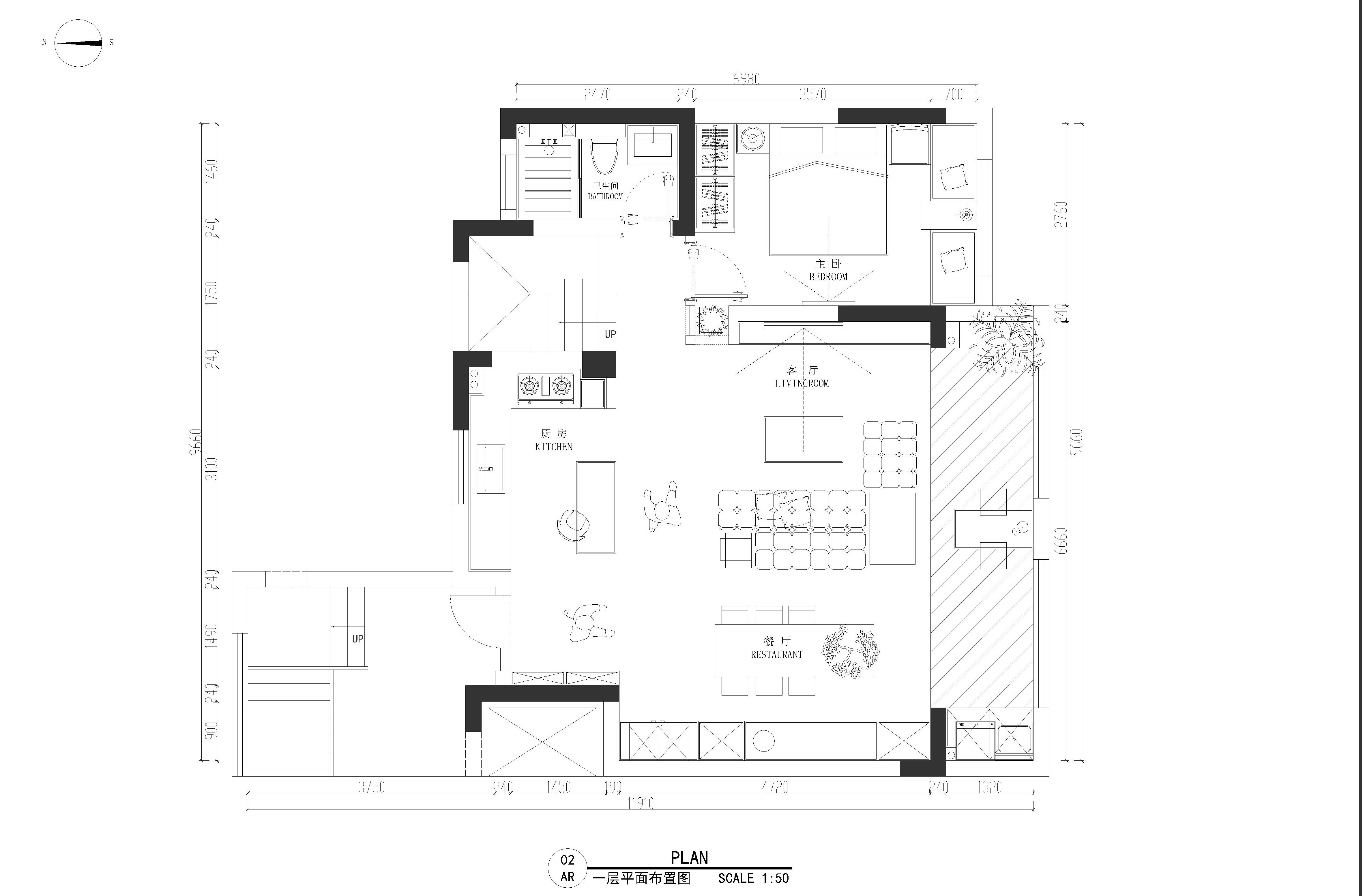
空间布局:本案打通了所有空间。让空间更加开阔 ,更加透气
-
设计选材:选材运用了新型材料石皮,不管从经济上还是效果上都达到了预期
-
用户体验:整体的设计风格特别独特,色彩运用忒美了

