燃泰·泰式火锅(YCC天宜店)
666
作品说明
- 项目类型:餐饮
- 项目地点:广州市
- 建筑面积:250.0000㎡
- 项目造价:80.0000万元
- 主案设计师: 曹劲麟
- 参与设计师:梁镇江、何嘉雯
- 竣工时间:2022-01-08
- 设计机构:正在设计事务所
-
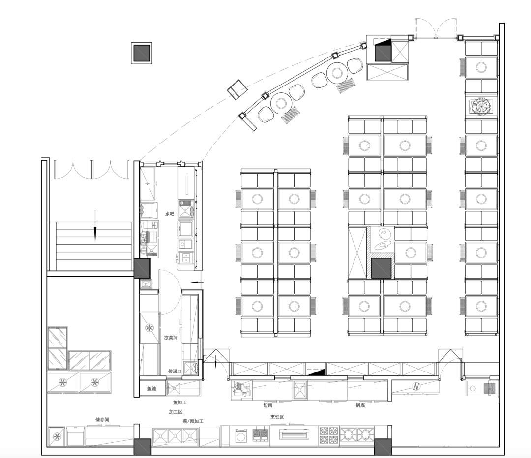
项目定位:本案项目位于广州市天河区YCC!天宜,由正在设计团队全新研发的燃泰·泰式火锅空间系统。设计规划上利用泰式火锅独特的人文厚度与美食吸附力,致力打造成体验及消费场景创新的高地。
设计过程中为满足有限空间里的在地性及对燃泰品牌全面升级的构思,故以提取泰国喧闹又静谧的精神特质,针对性地诠释泰式风情的当代注解。 -
空间意境:本次的设计灵感源于泰国著名的「泰国美功铁道市场」,该市场位于距离曼谷70公里的夜功府,是全世界唯一有火车穿越的市集,也被称为是最危险的市场!摊贩们全部摆在铁路旁边,绵延近500米,每当列车发出警告声经过,所有摊贩立刻将折迭伞收起来,来不及收拾的物品只好被辗过,完全考验“秒收摊”的功力,而游客也可以体验特别的刺激感。
正在设计的主要理解是「地域文化是地方美食的根植土壤」,我们提炼最具地方特色的文化元素,通过化繁为简,给消费者提供最精华的享受。 -
空间布局:正在设计植入泰国火车站台的场景,以具有体现泰国符号的火车车头、车厢及站台候车区营造产品属性的视觉系统,利用店里店外最佳视觉动线并最大化地体现商业展示的属性。同时,以东南亚树屋及曼谷美功铁道市场延伸出的就餐体验的空间规划。
-
设计选材:设计上借取了泰国市集的种种经典元素,让座位如市集摊贩座落四处,营造如市集般热闹,让泰食体验不只在味觉上,也同时在视觉与体感上感受泰国街食的乐趣。
-
用户体验:结合甲方的用心经营,实现10个月回笼本金。
0
0

认证 · 让您身份增值