居好雅室,青野入诗


- 项目类型:别墅
- 项目地点:杭州市
- 建筑面积:450.0000㎡
- 项目造价:250.0000万元
- 主案设计师: 赵艺哲
- 参与设计师:赵艺哲
- 竣工时间:2020-10-01
- 设计机构:浙江一则空间设计有限公司
-
项目定位:根据别墅原始户型图,以及业主的需求,将整体空间做了以下的划分:
负一层为入室玄关、储物间、活动室;
一层为玄关、客厅、餐厅、中西厨;
二层为起居活动区、女儿房及两间客房;
三层为主人空间,该空间包含卧室,大采光起居室,衣帽间,卫生间。
屋内色彩素锦、风格典雅,整体氛围舒适温馨。合理的空间位置安排,使得室内功能完善全面,满足生活要求。 -
空间意境:华韵内敛的柜体,谦退交融的空间体块、素白简静的灰白色调、素洁安然的灯光,在方寸之地予人无限想象,明亮舒适的视觉享受,优雅浪漫的美式氛围。
采用极简手法弱化空间体块、界面、色调和材质,去繁存简,留其空灵,让人于静简与清欢之间,品味纯粹。 -
空间布局:负一楼与主卧制作大型衣帽间。满足储物所需。
-
设计选材:选用环保板材制作柜体
-
用户体验:轻松预约。适宜人居
one design, the beauty of success 一则设计,成人之美 01 项目信息 项目地址/浙江·杭州 项目类型/别墅 设计团队/赵艺哲设计工作室 设计风格/轻奢美式 设计时间/2019年5月 设计面积/450㎡ 02 实景拍摄 | 客厅 THE LIVING ROOM |
“光与空间,用光做设计”
光与空间的结合, 使得空间变化多端 柔和而浪漫的光线穿过窗户,撒在由华丽大理石筑就的地面上。 | 餐厅 THE DINING ROOM|
窗户不仅带来了光,也借来了景。 面向户外的空间完全透光,以开放的姿态拥抱四季更迭,置身于自然之中。 | 厨房 THE KITCHEN |
硬朗折线驱动 构建室内秩序感 开放式西厨与封闭式中厨的空间秩序感成了首要考量的存在,光影变幻中承载了最朴实无华的柴米油盐酱醋茶。 | 活动室 THE ACTIVITY ROOM |
习习微风,仰望星空, 拾级而息,高谈阔论, 惬意道此处风景甚好。 活动室实现了自然与人文的和谐共存,空间挑空铺陈开来,形成一种互动感,而恰恰是这互动感映射出了别墅才有的气韵:三五闺蜜拾级而坐抚栏对饮,宛如悠扬恢弘的交响乐章。 | 女儿卧 THE DAUGHTER'S BEDROOM |
在这一基调之下,女儿房融入粉灰色调,温润的亲和感与自然气息在空间中糅合,彰显着现代主义的舒服、温馨、浪漫。 | 次卫及衣帽间 THE BATHROOM&CLOAKROOM|
卫生间与衣帽间两个功能区域与其房间相连,强调光与室内的关系,通透大气的整体氛围,使得空间节奏张弛有度。 | 主卧 THE MASTER BEDROOM |
美在于光与设计表现的结合 一半还之于光影,一半让位于空间 | 衣帽间及主卫THE CLOAKROOM&BATHROOM|
线条与韵律可以激发起人们的美感联想,在一体化的大基调中营造秩序感,涤荡出美的生活方式。
负一楼原始图
负一楼平面图
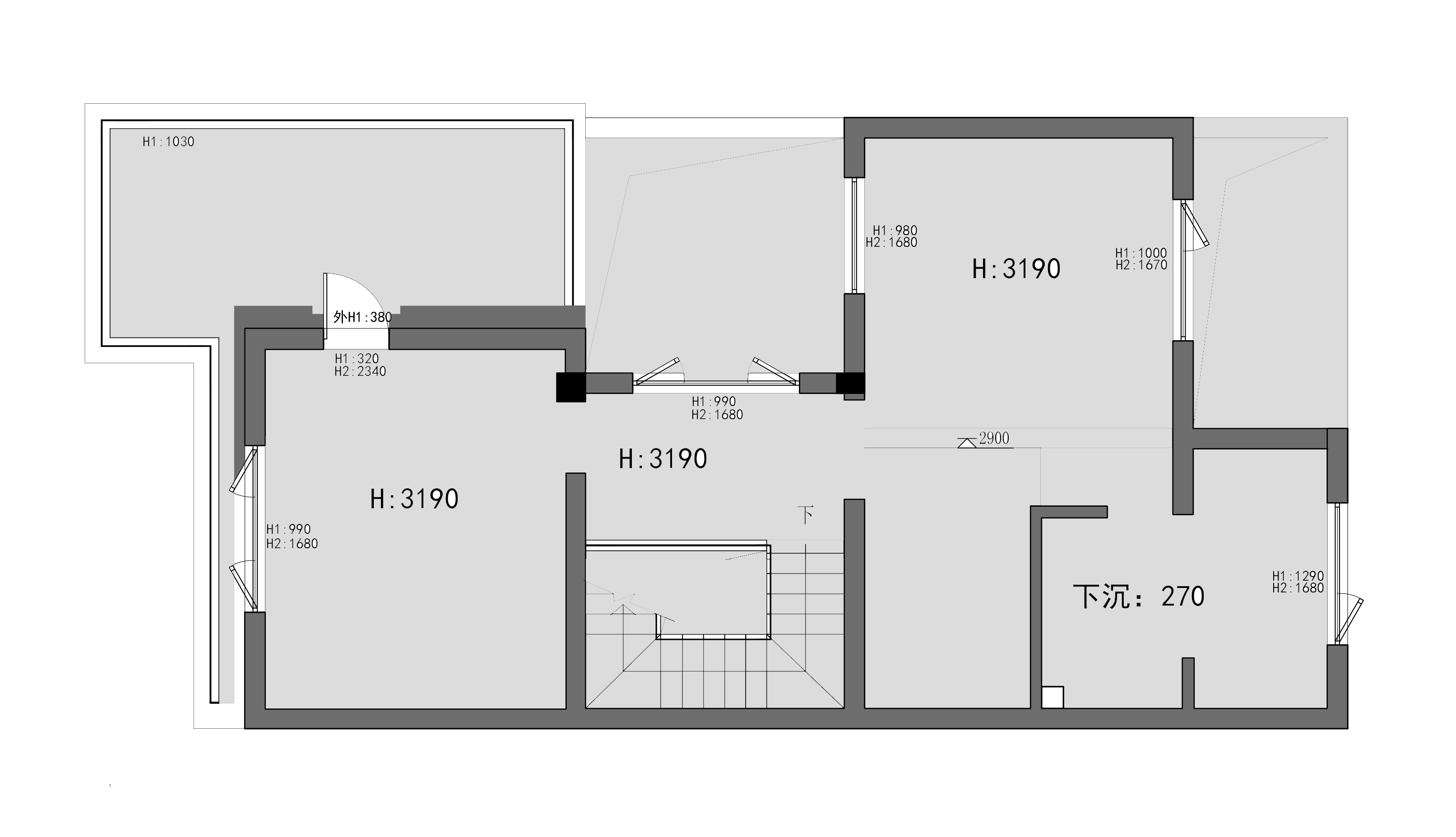
一楼原始图
一楼平面图
二楼原始图
二楼平面图
三楼原始图
三楼平面图

