空岛·半山民宿



- 项目类型:商业
- 项目地点:大理白族自治州
- 建筑面积:500.0000㎡
- 项目造价:400000.0000万元
- 主案设计师: 孟南辛
- 参与设计师:孟南辛
- 竣工时间:2021-12-01
-
项目定位:项目总共7间客房,整体坐落于云南大理洱海东侧的文笔村,与大理古城隔海相望。村落临海依山而建,房舍随着山势铺开,错落有致,相较于烟火热腾的古城,这里静谧悠然,有着绝佳的海岸线。驱车在沿海公路旁半山的一处转角,远远地就可以看到远离喧嚣、四周亦无任何建筑遮挡的一处白色建筑,正如一座遗世独立的小岛,静谧自得地独享着大自然的美好馈赠。在绿植草木、蓝天白云的映衬下,更显空间情绪的通透干净与安然素雅,唤醒对自然与生活的更多感知和触动。
我们尝试通过对后疫情时代日益变化的人居生活的深度洞察与解析,以治愈系的“为当代城市旅人注入心灵度假生活"为核心理念,打造一个中高端度假消费民宿,展示美好生活的不同打开方式,营造有温度的“生活之美”的度假空间,一个回归本我的空间。 -
空间意境:为了尽可能地凸显自然之美,采用了质朴的设计手法。建筑外部从大理白族民居的建筑风格中汲取灵感,将白色立面和灰色屋面巧妙糅合,保持建筑整体利落简洁的几何感,佐以柔和的曲线元素,却又不失饶有趣味的韵律感。在这座建筑里,利用自然光照亮房子的整个内部空间,光线在空间中发挥,让它变得生动有趣,模糊了室内外时间的关系,大理独特的自然风光与天然植被作为房子的独特背景。
-
空间布局:在酒店的公区,大厅作为实现多元化的社交场景的超级客厅,全开放式的餐厅这种复合型空间,看似随意,实则精心设计,和户外阳台一体化,布局灵动,自然鲜活入室,轻松容纳度假客户的多层次需求,将温情的生活小景描摹为诗意的画面。每间客房独享室内超大面积的落地窗,倾斜如瀑的日光无限渗透,将大理绝美的自然风光与妥帖的美学结合,利用得天独厚的自然优势,实现舒适慵懒的惬意生活,美景是治愈一切的良药,即便是不出门,也可以一览无遗大理得天独厚的自然风光。
-
设计选材:空间采用玉脂白为空间主调,搭配不同层次的绿色与暖木色,入目柔和的色调,以少量低饱和度红色,枯叶棕点缀,配色分明,以原木、金属、丝绒、亚麻、涂料等丰富材质以恰到好处的比例组合,构造出建筑空间独有的自然气息。材质强调纯粹性,自然材质与单纯质朴的手工家具巧妙融合与对话,无需过多的繁杂装饰,简洁中透出生活的温度,自然而然,释放出更多外在空间场域和本真氛围,沉淀轻松自在。空间与人,才是这里的主角。
-
用户体验:已打造成为大理海东镇排名前5中高端名宿,获得小红书,抖音及各大自媒体平台博主争相打卡入住好评,争相晒图,入住率高达80%。
室内陈设独特美学及天然材质,配以民宿业主精致服务,收获一致好评,口碑暴涨。
海中有山可依止,千山万水之外,诗意栖居。
项目设有7间客房,坐落于云南大理洱海东侧的文笔村,与大理古城隔海相望。村落临海依山而建,房舍随着山势铺开,错落有致,相较于烟火热腾的古城,这里静谧悠然,有着绝佳的海岸线。驱车在沿海公路旁半山的一处转角,远远地就可以看到远离喧嚣、四周亦无任何建筑遮挡的一处白色建筑,正如一座遗世独立的小岛,静谧自得地独享着大自然的美好馈赠。在绿植草木、蓝天白云的映衬下,更显空间情绪的通透干净与安然素雅,唤醒对自然与生活的更多感知和触动。
大厅作为实现多元化的社交场景的超级客厅,全开放式的餐厅这种复合型空间,看似随意,实则精心设计,和户外阳台一体化,布局灵动,自然鲜活入室,轻松容纳度假客户的多层次需求,将温情的生活小景描摹为诗意的画面。
在酒店的公区,设计师采用玉脂白为空间主调,搭配不同层次的绿色与暖木色,配色分明,以原木、金属、丝绒、亚麻、涂料等丰富材质以恰到好处的比例组合,构造出建筑空间独有的自然气息。
在这座建筑里,自然光影不曾远离,情感交流不经意间的拓展,实现了舒适慵懒的惬意生活。
二楼转角处回廊,白日将大理苍山洱海尽收眼底,夜晚遥望古城灯火辉煌。
我们只是换个地方生活,而不是过客,自然而然,释放出更多外在空间场域和本真氛围,沉淀出家的独有气息,轻松自在,温暖人心。入目柔和的色调,单纯质朴的家具,无需过多的繁杂装饰,空间与人,才是这里的主角。
你不说话,就静静地享受独处时光。
温柔舒适的包裹感如烟弥散,恰似秋日的温存唤醒度假的愉悦与归属感。材质强调纯粹性,自然材质与手工家具巧妙融合与对话,简洁中透出生活的温度,沐浴着大理的日光,自然里的优雅与诗意慢慢舒展开来。
夜晚篝火阑珊,看着火苗也容易忘记时光。这里作为承载美好理想生活时光的超级空间。
设计师如导演一般,以构建生活行为方式为基础剧本,模拟推演预住客人的使用场景和体验感受,平衡理性与感性,以设计的力量诠释对未来人居空间的深度理解,梳理出关于度假生活的美好畅想,呈现一个个充满归属感、慵懒惬意、幸福感的度假生活场景。
空间利用低饱和度棕色和复古红,恰似秋日的温存唤醒度假的愉悦与归属感。
大套房,与其他房型的精致紧凑形成对比,自成一个多功能复合私属居所。房间内独立的衣帽柜,卸下匆匆行程的一切风尘,开始美的追求与仪式感。倚靠在房间配套的户外桌椅上,阳光照耀下,看云卷云舒,一壶清茶一本书,享受静谧独处的微度假时光,苍山洱海尽收眼底。傍晚时分,看远处大理古城沉浸在温和氤氲的灯光下,温情的记忆永远留存于这人间烟火,越久越浓。
客房独享室内超大面积的落地窗,倾斜如瀑的自然光无限渗透,美景是治愈一切的良药,而大理得天独厚的自然风光便是承载日常美好理想最浓烈的画卷。即便是不出门,美景一览无遗。夜幕降临,舒服窝在沙发里,打开投影仪,看上一两场喜欢的电影,小酌怡情,伴随轻松的欢笑声,结束这美妙不可复制的一天。
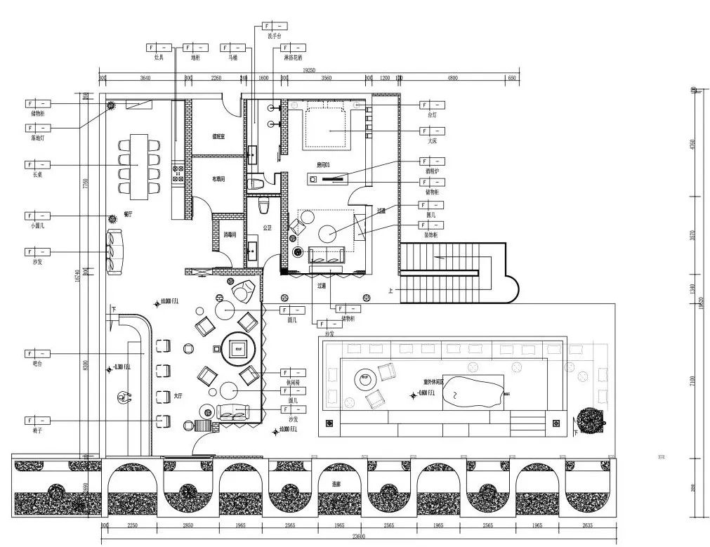
一层平面将餐厅,大厅与室外公共区域用玻璃门进行联动结合,可打造成私域与开放式空间
二层布局以大套房与紧凑型房型结合,提供多样性选择

