GENTLE OAK·橡
1160
作品说明
- 项目类型:餐饮
- 项目地点:广州市
- 建筑面积:420.0000㎡
- 项目造价:120.0000万元
- 主案设计师: 曹劲麟
- 参与设计师:梁镇江、何嘉雯
- 竣工时间:2022-09-26
- 设计机构:正在设计事务所
-
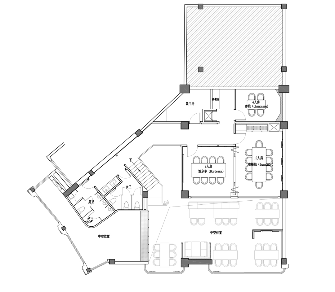
项目定位:项目地点位于番禺喜盈汇,是未来地铁上盖的热闹商区,我们试图在复杂且活跃的餐饮集中地定义一个新的西餐形式。我们希望通过材料、色彩和光线,营造舒适轻松且优雅有格调的场所氛围。利用空间布局和设计元素,提升消费者对于「干式熟成牛排」整体感受。
-
空间意境:设计师在空间中融入了简化了的英伦风格风格,几何化的元素,在跃动中相互融合,产生“新”的“复古”空间,述说玩味空间的幽默感。墙体上跳脱的挂画仿佛要打破周围安静,但是这样的动与静又刚好构建出一种新的平衡。
-
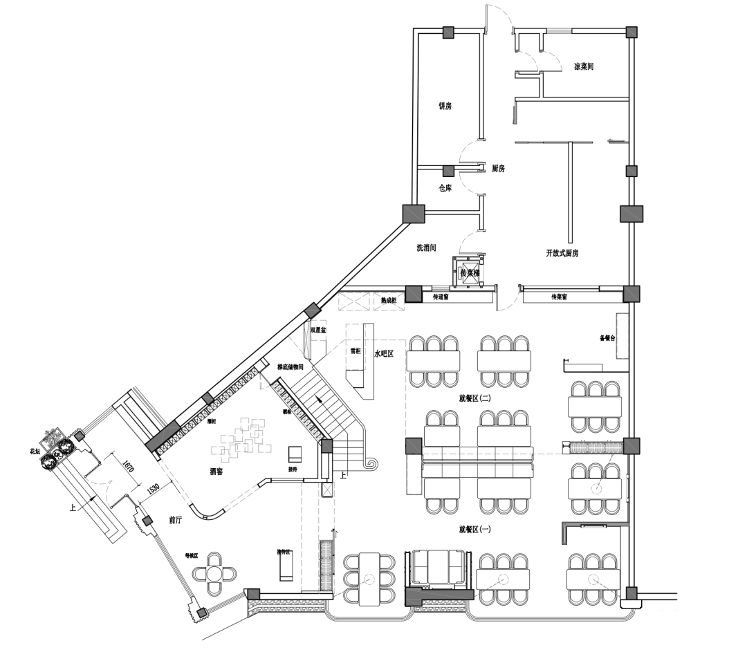
空间布局:一个藏酒丰富的酒窖,像是进入浪漫世界前的引子,富有仪式感。「Gentle oak 橡」的老板对红酒非常有研究,并且从事红酒相关的行业多年,所以,我们根据老板的产业结构,特别制作了「前置的酒窖」引导客人在晚餐开始之前选择一瓶适合的红酒,同时也方便老板和朋友分享他对于每种红酒的心得。随后客人便继续带着收获的喜悦、适时的惊喜继续前进的步伐。
-
设计选材:灰的天花,橡木色的柜子,灰的地面。材质的不同,以及颜色的深浅调配出的基调,流畅时尚,大气又略有变化不沉闷。几种绿,由墨绿到浅一些的绿植,再到挂画的跳脱点缀,诠释出低调优雅的格调,有如静谧的一洼流水,安宁中有飘渺的心思游动。
-
用户体验:大众点评中的区域就餐环境排行榜常年占据前三位
0
1

认证 · 让您身份增值