前奏音乐中心
1111
作品说明
- 项目类型:休闲娱乐
- 项目地点:广州市
- 建筑面积:250.0000㎡
- 项目造价:40.0000万元
- 主案设计师: 曹劲麟
- 参与设计师:曹劲麟、陈俊彦、陈智恒
- 竣工时间:2022-04-25
- 设计机构:正在设计事务所
-
项目定位:我们的设计灵感来自于「前奏音乐的创始人」对音乐的理解:音乐、艺术、行动主义以及最重要的自由精神。我们期望音乐以一种不受拘束的方式,将‘快乐时光’与创新性结合起来,这也是我们希望在项目设计中能够塑造的一种独特氛围
-
空间意境:本案位于一条比较旧的商业街道当中。正在设计希望打造一个充满迷人诱惑力的空间里,通过色彩与光影的流动感,展现出所有材质在运用上的多元混合魅力,透过独特的装置结构,塑造出一个社区与音乐相融的独有之境。
-
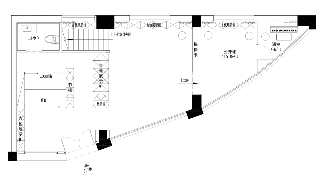
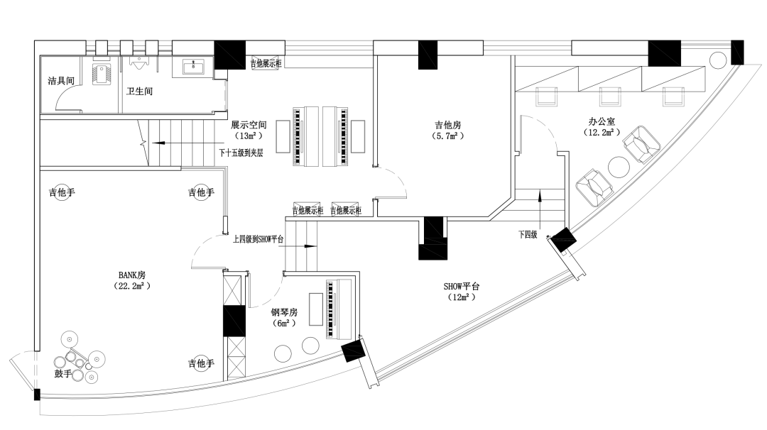
空间布局:设计以“盒中盒”为主要概念:彩色模块填充旧建筑外壳,所有模块都以功能和色彩作为划分。而在这些模块当中,最精彩的可谓这个开放式舞台。
通过打开建筑、在旧结构中增加新的盒子,我们让建筑重新焕发了生机。在老旧和沉闷的街区当中,加入了一个活跃的创意中心和社区。 -
设计选材:应用绸布及纤维喷漆
-
用户体验:开业头三个月,自然到店客户占总客户数的72%。
0
0

认证 · 让您身份增值