不期而遇
778
作品说明
- 项目类型:别墅
- 项目地点:宁波市
- 建筑面积:300.0000㎡
- 项目造价:300.0000万元
- 主案设计师: 胡蒙
- 竣工时间:2021-02-14
- 设计机构:宁波一蒙空间设计事务所
-
项目定位:当艺术融入家的空间,灵动而美妙。它有自己独特的语言,去讲述生活的斑斓色彩,描绘这个世界的本质与纯碎,创造出一幕幕趣味纯真与精致优雅的不期而遇,构建别样而温馨的居住体验。
-
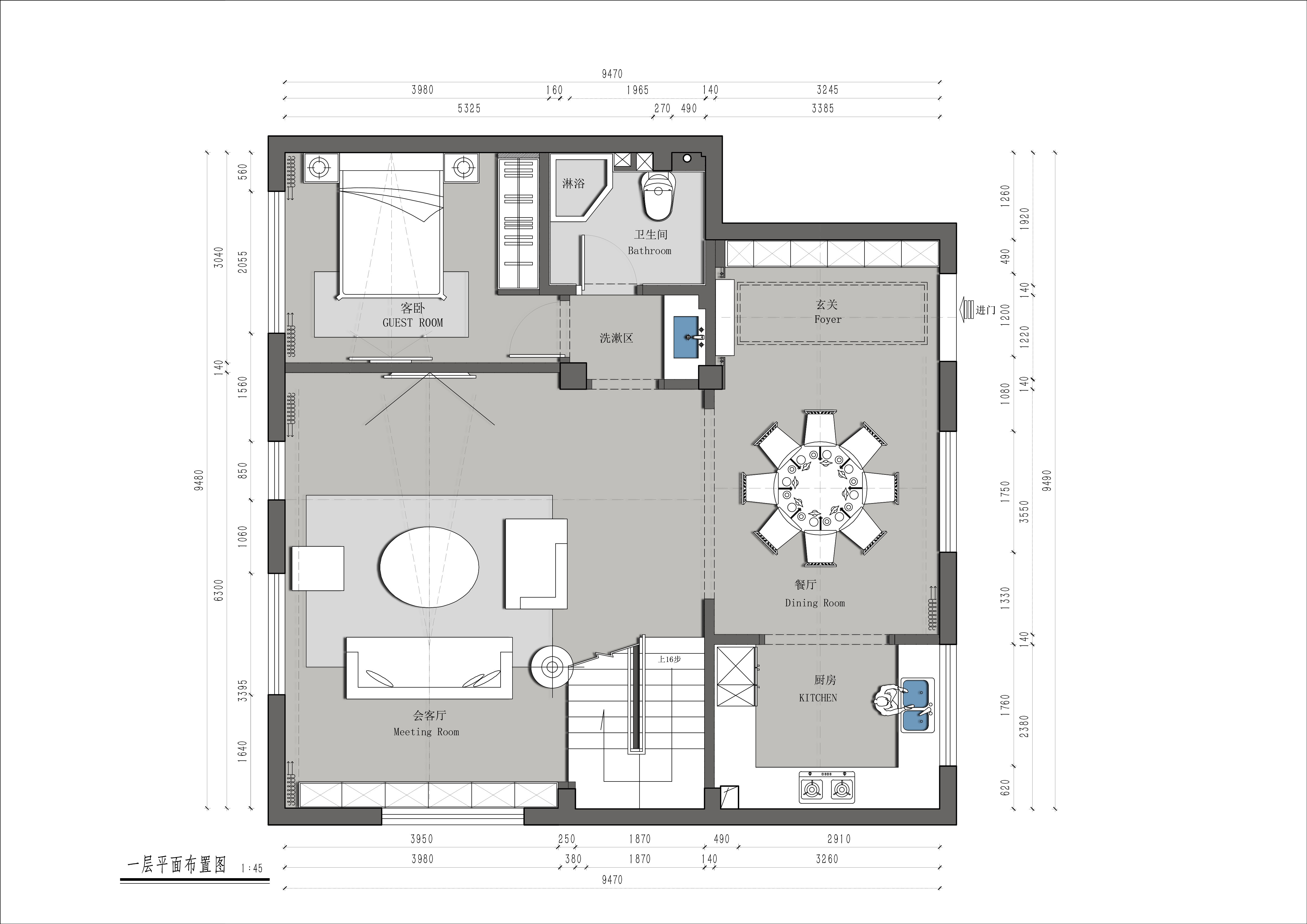
空间意境:入门处,一尊举着气球的小熊雕塑拨弄着呆萌可爱的姿态遐趣相迎,底座的雕塑架以渐变的琉璃温暖了金属的冷冽,侧边的几何艺术勾勒出色彩的形状,趣味时尚。公共区采用开放式布局,串联客餐厨于一体,在既定的秩序中打破框架与界限,以色彩的深浅营造出层次的错落,赋予整个场域通透明亮。
-
空间布局:餐厅居于入门左侧,视线以此铺展,可将整个公共空间纳入视野。设计师采用通透的玻璃和灵活的动线开阔布局,在充分营造生活品味与质感的同时,用艺术和色彩给生活带来更多的惊喜。
转入客厅,低调雅致的基底以白、棕为主色调,或浅或深,由明入暗,搭配皮质沙发的质感肌理构建出立体的层次感。薄似轻纱的吊灯飘逸垂落,在通透的灯光渲染中,似萤翼蝶骨,轻盈了客厅的厚重质感,回归轻松与遐意。 -
设计选材:电视机背景墙由白色大理石铺展,璞玉般温润的肌理细细描绘着山水墨纹,不需要人工加以修饰,还原纯粹本真。背景墙以格栅之形勾勒,疏而不透,其棕色纹理与对面的墙柜相衬,同皮质软装的碰撞中提升了精致的生活格调。
楼梯处,恍若误入爱丽丝的小天地。托腮思考的植绒兔子席地而坐,而三只金属小兔以独特的质感散发熠熠光彩,前卫冷冽的材质与圆润童趣的造型相碰撞,以刚化柔,趣味横生,并与大理石铺陈的楼梯形成色彩、肌理的强烈反差,仿佛在破次元的空间中自由徜徉,述说着天马行空的幽默。 -
用户体验:主卧延续了优雅质感的主体风格,米色木饰面铺陈整个墙面,床头以舒适的弧形构成过渡,为睡眠提供安心的包裹感。床品采用浓烈的图案色彩,摆脱素雅沉闷,唤醒一天的活力。
艺术的语言纯粹而富有力量,为空间注入永恒的生命力,自由绽放至每一个角落,与精彩时刻相遇。
0
0

认证 · 让您身份增值