籽



- 项目类型:住宅公寓
- 项目地点:成都市
- 建筑面积:164.0000㎡
- 项目造价:59.0000万元
- 参与设计师:荣烨/刘继伟
- 竣工时间:2021-08-16
- 设计机构:吾隅设计
-
项目定位:这是一个五口之家,屋主是一对非常热爱生活的夫妇,对家居设计抱有浓厚的兴趣,喜欢阅读,平时有看许多关于家居设计的书刊杂志,希望设计创造出属于他们的新居家体验;小主人六岁,是个爱思考,有探索欲的小伙子,喜欢玩乐高和动手“维修”家里机器,外婆是家里的大厨,擅长研发美食,外公则是电脑和摄影达人,他们共同的爱好就是疼孙子。他们期待新家是一个开放的,可以共度亲情时光、共同成长的空间,希望简单朴素又优美耐看,久待而不腻。
-
空间意境:1.我们设置了以沙发为“岛”的客厅活动空间,这样间接融合了餐厅用餐,客厅阅读,落地窗多功能区,让这里每个角落都能让家人驻足停留,坐下来看看书,或是聚在一起聊天,呈现随意的居家氛围。
2.通过加入弧形线条拓宽错层台阶搭配顶面叠级的处理弱化客餐厅错层带来的生硬感,阳光充足的的住宅特别合适在室内摆些大型的植物,为色调温润的居家空间增加绿意和生气。
3.利用儿童房的好采光,使用孩子喜好的色彩用乳胶漆做一面简单墙画,凸显个性同时,较高彩度的几何图案让空间充满趣味。
4.水蓝色结合樱桃木的床档,奠定了宁静温润的空间氛围,也让老人沉浸放松在安宁的怀抱中休息。
5.主卧采光上佳,室内延续了女主人偏爱的雾绿色,搭配灰木调的柜体,空间氛围自由放松,并未多做繁琐设计。
-
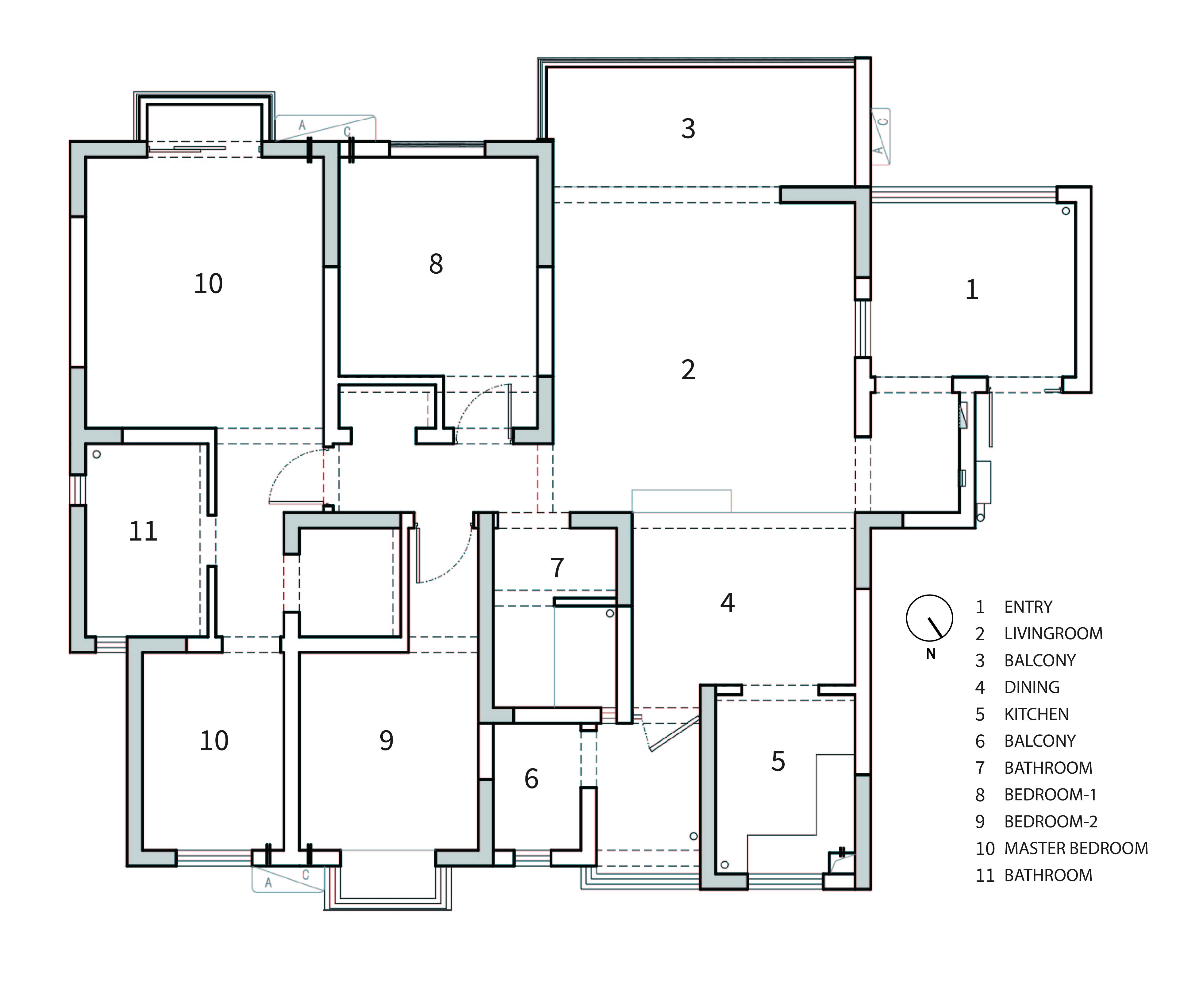
空间布局:1、 玄关是一个“L”形动线连接的空间,这样的空间动线既不好走同时也造成了空间的浪费,我们把动线改为从玄关中轴进入起居室后,可以节约出南向的一个小空间作为入户的收纳库使用,小朋友的玩具车,男主人的行李箱以及回家后挂放外套的空间都可以在此实现。
2、 通过地面台阶拓宽和顶面叠级的处理弱化错层带来的生硬感,在阳台一端我们设置了女主人想要的大书桌,我们把沙发布置到了公区空间的中间位置,制造出以沙发为中心的洄游动线,间接融合了餐厅客厅和阳台,增加空间感的流畅度,让整体视觉显得随意自在,希望家人愿意待在这里看书、谈心轻松和乐的相聚。
3、 考虑到老人偶有看电视的需求以及孩子网课的需要,我们保留了电视的功能,只是没有像传统电视固定挂放在墙上,而是和客厅与玄关间的移门做了个结合,需要的时候我们让它成为主角,而大部分时候,电视随移门靠在墙角,保持客厅和玄关开敞的状态,弱化本身的存在感。
4、把原来北向的主卧调整到南向,并打通了另外一个小卧室空间联通,形成横厅格局的主卧,整合后的主卧空间动线更加便捷,通过色彩和材质的搭配让空间变得温润安宁,利用空间的进深做了独立的衣帽间,解决衣物分区收纳挂放问题。衣帽间做了隐形门设计,男女主人都是同单位工作,作息时间都是同步,为了便于他们早起和晚睡更衣动线流程,衣帽间采用双向开门的设计,增加空间的使用性,这样即使他们同时在各自规划的衣柜区换穿衣服,进出都不打挤。
5、儿童房较宽敞,刻意保持了靠窗一侧的空间做为未完成的状态处理,用可替换的成品家具来布置当下孩子需要的生活场景,这样可以随着孩子成长而变化,增加将来对空间改造的可能性。 -
设计选材:1.换鞋+衣帽挂放后,玄关最后一个动作就是洗手消毒,洗手盆是定制的杜邦一体盆,把水槽+擦手纸巾+纸巾篓三个功能整合到一个台面,易于打理快捷方便。
2.在通往房间的走廊上,有大梁横亘,为了保证过道的高度没有采用压低天花板包梁的手法,而是通过餐厅与客厅间错层的叠级做了延伸,和横梁进行穿插,形成顶面造型的一部分从而弱化横梁的体量,加入暗藏光带的设置增强空间的引导性,考虑到老人有起夜的习惯,我们在过廊加入感应地灯,低位照明,光不会直射眼睛,对于夜起的人来说是友好的关怀。
-
用户体验:玄关更改后,有了大量的储物空间,回家后可以在玄关完成换鞋、更衣、洗手、消毒的一系列流程动作,小朋友的各种玩具车和男主人的行李箱有地可放,非常贴合他们的生活习惯。主卧室需要有大容量挂放衣物的空间,双开门的衣帽间大大的提升了仪式感和舒适性,儿童房的成品家具能伴随娃娃的成长而成长,真的做到了合理的收纳和展示空间。
我们设置了以沙发为“岛”的客厅活动空间,这样间接融合了餐厅用餐,客厅阅读,落地窗多功能区,让这里每个角落都能让家人驻足停留,坐下来看看书,或是聚在一起聊天,呈现随意的居家氛围。
玄关设计了屋主入户需求一体化解决方案,鞋柜到顶能收纳80双鞋左右,在落地窗一侧设计了换鞋卡座+植物槽,靠窗的柜体用镜面做了封板,遮蔽管体同时又延伸窗景,种植槽的植物是盆装,可以随季节或心情换上不同的植物,就能轻松制造出入门的好感觉,功能颜值两不误。
换鞋+衣帽挂放后,玄关最后一个动作就是洗手消毒,洗手盆是定制的杜邦一体盆,把水槽+擦手纸巾+纸巾篓三个功能整合到一个台面,易于打理快捷方便。
鞋柜上我们也做了细分,中间开架的台面可以做为包裹临时拿放收纳区域,同时也可以放置香氛或者花瓶进行点缀,轻松打造回家仪式感,鞋柜底部做了临时放鞋的区域,简单实用,临近入户门一侧设置了洞洞板便于弹性设置简易挂放功能。
我们把客厅设定为“阅读陪伴”为主题,屋主夫妇都爱好阅读, 我采用了层架式的书柜,除了满足书籍收纳也可以放置藏品和家人照片等小物件。柜子挑空的设计,能保持空间的透气感,在大木桌右侧的墙后是跑步机,一家人在同一空间,爸爸在健身、妈妈在看书、儿子在学习创作,互不打扰却又相互陪伴,今后这里充满怎样的欢乐,让人期待不已。
宜家与Tom Dixon携手打造的DELAKTIG 迪拉提系列模块沙发是屋主特别喜欢的一款产品,可以添加桌板或灯具,更换靠背位置,有了它,可以尽情发挥创意,让客厅可以变化更多场景。
刻意压低了吊灯的高度,让灯光和人更加亲近,独处有时能静心,欢聚有时能悦情。
考虑到老人偶有看电视的需求以及孩子网课的需要,我们保留了电视的功能,只是没有像传统电视固定挂放在墙上,而是和客厅与玄关间的移门做了个结合,需要的时候我们让它成为主角,而大部分时候,电视随移门靠在墙角,保持客厅和玄关开敞的状态,弱化本身的存在感。
通过加入弧形线条拓宽错层台阶搭配顶面叠级的处理弱化客餐厅错层带来的生硬感,阳光充足的的住宅特别合适在室内摆些大型的植物,为色调温润的居家空间增加绿意和生气。
客厅、餐厅、厨房相连,考虑到外婆每天都会为家人做饭,为避免油烟在室内四散,厨房特地做了口袋移门,平时收起移门即是开放厨房,必要时拉出移门就能阻隔油烟。
橱柜是宜家米多系统,橱柜高度是根据屋主身高来定制的,操作起来更加轻松应手,灰绿色门板搭配白色小方砖堆砌出视觉层次,空间敞亮整洁。
与厨房一墙之隔是家政间,有娃家庭增加一台挂壁洗衣机能节省不少的清洗衣物时间,同时搭配洗烘工作站家政工作也变得轻松便捷。
客卫空间采用了浅米色的水磨石砖墙地通铺,模糊墙地交界,倍化空间视觉。洗漱台单独隔离出来,便于有娃家庭早晚高峰的使用,淋浴房+马桶间区域和洗漱台区域用单面磨砂的长虹玻璃口袋门弹性隔断,保证空间感同时又保证了隐私。
淋浴房为老人增设了卡座,可以放松坐浴,减轻老人沐浴过程中弯腰带来的负担和隐患。
儿童房较宽敞,刻意保持了些未完成的状态,三分之二的空间都是用成品活动家具搭配,这样可以随着孩子成长而变化,增加将来对空间改造的可能性。
利用儿童房的好采光,使用孩子喜好的色彩用乳胶漆做一面简单墙画,凸显个性同时,较高彩度的几何图案让空间充满趣味。
在孩子的世界里,他们自己有很多“宝贝”,我们给到他这样一个角落他自己可以进行展示和收藏,伴随他成长,希望能成为他童年记忆中美好的一隅。
屋主夫妇把原来带有小阳台的主卧给到了为他们操劳辛苦的父母居住,外公是电脑和摄影爱好者,我们在老人房靠阳台的一隅设置了多媒体角落便于他们丰富老年业余生活。
主卧采光上佳,室内延续了女主人偏爱的雾绿色,搭配灰木调的柜体,空间氛围自由放松,并未多做繁琐设计。
衣帽间做了隐形门设计,男女主人都是同单位工作,作息时间都是同步,为了便于他们早起和晚睡更衣动线流程,衣帽间采用双向开门的设计,增加空间的使用性,这样即使他们同时在各自规划的衣柜区换穿衣服,进出都不打挤。
主卫采用了大面长镜柜拉宽视觉,半墙竖向铺贴白色条砖增加空间序列感拉高空间层次,搭配雾绿色墙顶一体乳胶漆,卫浴空间也可以轻松活泼起来。
原始平面图
平面布置图
轴视图

