奶&咖
729
作品说明
- 项目类型:住宅公寓
- 项目地点:西安市
- 建筑面积:200.0000㎡
- 项目造价:800000.0000万元
- 主案设计师: 张佩红
- 竣工时间:2022-06-28
- 设计机构:半城空间设计事务所
-
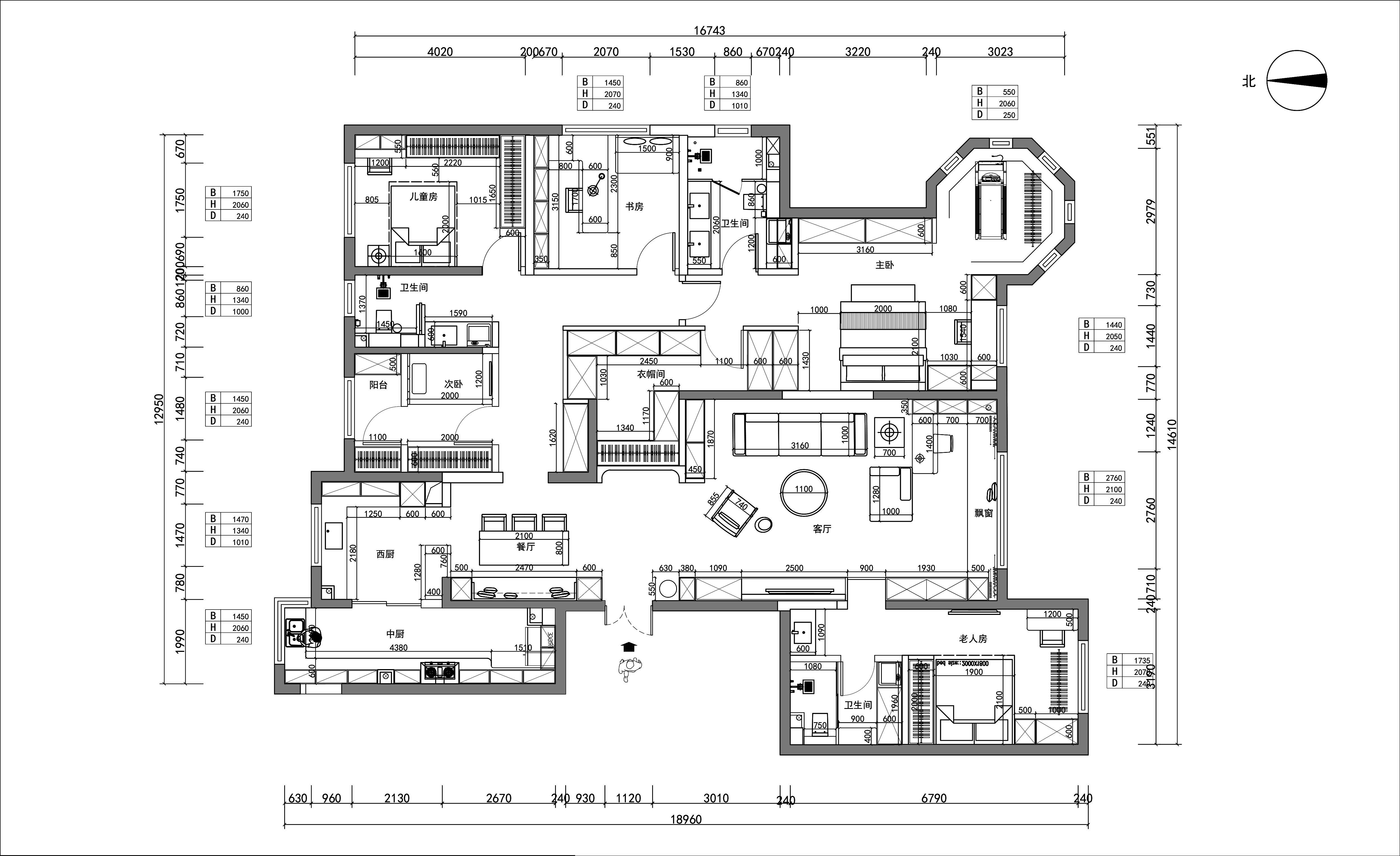
项目定位:本案常住的有两个老人,两个孩子,还有业主夫妇,人口较多,所以需要设计很多的储物空间,每个人需要自己的独处空间的同时,又要有可以让全家人在一起互动的空间,所以打破了原来的空间格局,重更针对客户生活习惯重新规划了空间布局,同时在简洁温馨的整体氛围中,又增加了空间的趣味性,简单却不乏味。
-
空间意境:运用咖色与白色为主色调,就如咖啡撞奶一样浓郁香醇,符合业主的文艺气息。
-
空间布局:空间布局与原结构相比,做了较大变动,增加了更多储物空间,并将空间连贯互动起来,不同空间相对独立又相关联,站在不同空间,都可以看到另一空间的不同景致。
-
设计选材:墙顶面材料主要以乳胶漆为主,由于储物柜需求较多,所以除了柜体,没有多余的木饰面和装饰材料。利用废旧布料制作了装饰挂画。
-
用户体验:客户入住后觉得很惊喜,很多细节的设计都很喜欢,感觉在家里的时间变的更有趣了,一家人坐在一起游戏的时间也变多了。
墙顶细节
顶墙一体的咖色乳胶漆与白色柜门,就如咖啡撞奶一样丝滑浓郁,顶上的圆环灯像是一杯奶咖的拉花简单美好。
客户有两个小孩,并且与两位老人一起居住,所以设计了很多储物柜。在客厅里一家人可以一起读书、游戏,提高对孩子的陪伴质量。
老人房的房门就隐藏在这面墙里
餐厅同样尽可能地增加了更多的储物空间,小朋友坐在卡座上吃饭,总能给妈妈更多安全感,当然大家也可在这里一起做手工。
坐在卡座上就可以通过半弧门洞看到过道的大镜子。
而站在过道的地方,也可以通过墙上的镜子看到形成反射的门洞,以及弧形门洞框出来的小景,有种奇妙的感觉,不同角度都会有不同的感受。
西厨与餐厅相连,女主人在烹饪时,也可以看到孩子们玩耍的情况。
老人房简洁温馨,同样也有跟多储物的柜子。
客卫生间的开敞洗手台,增加了很多童趣的元素,让孩子们爱上洗手。
主卧室设置了工作区,让居家办公的日子也变的舒适安逸。
忙碌一天后,孩子们入睡了才是属于业主自己时间,他们选择在床上看看电影,读读书。
现在的布局相比原结构做了较大改动,改变后的格局更适合业主的生活方式和习惯,同时也增加了很多不同空间的互动,站在房子中的每个空间,都可以有不同的空间对话感受。这是站在门厅看玄关及客厅的视角。
平面图
原始图
0
1

认证 · 让您身份增值