初秋的风



- 项目类型:住宅公寓
- 项目地点:南京市
- 建筑面积:240.0000㎡
- 项目造价:90.0000万元
- 主案设计师: 王少彬
- 参与设计师:王少彬
- 竣工时间:2019-04-06
- 设计机构:锦华装饰
-
项目定位:我们去掉了移门,在使用和视觉上更为宽阔,室内也可以更好的融入户外的环境,这也是我在设计元素上着重想要实现的。我们计划去创造一种轻松的,更具有包容性的空间。
-
空间意境:麦色是最为亲和有温度的,在木饰面的选择上我们同样选择亲肤的麦色,整个客厅的空间相对柔和许多,对于已经是宝爸的客户来说,客厅是孩子最好的活动空间,在用色上活跃又不张扬,客厅推出去是一个活动空间一整面的书架,在这个空间里欢度童年,秋是稻谷的颜色,他深邃、童真也是丰收,充斥在这个空间里的是儿时比较深刻的记忆,是躺在金灿灿的稻谷里嬉戏玩耍
-
空间布局:原结构上餐厅和厨房只有现在的一个餐厅大,在结构上我们有做调整,使用频率上厨房餐厅往往比客厅多,客户工作性质早出晚归,早餐、晚饭就显得格外重要,在餐厅空间上不能那么局促,吃饭不仅仅为了填饱肚子,他应该是物质生活的提升,餐厅会是当下人与人最好的沟通场所,餐桌的两边是展示空间,尽头是黑板墙,主要是在餐厅营造一种阅读氛围,这样孩子放学回来可以把餐厅作为一个学习空间同时方便爷爷奶奶照顾(孩子房间在二楼),厨房我做了双门的处理,在展示柜的中间我们做了一个隐形门,视觉效果上统一,同时方便进入餐厅
-
设计选材:低碳和经济一直都是我们当今的话题,在设计之初客户也是对这块有要求,所以在土建的时候对明装筒灯进行预埋,墙面也是相对统一的木饰面
-
用户体验:活泼可爱的宝宝, 年轻夫妻俩,父母,三代同堂一家五口幸福的居住在一起。客户的母亲为人热情亲切,每次去都会给我做好吃的。阿姨的拿手菜是鸡汤,滋补温润。平日里他们喜欢在家自己做饭,所以厨房和餐厅是他们的家庭生活中心。
项目名称:初秋的风 项目地址:南 京 建筑面积:240m² 主案设计:王少彬 设计公司:锦华装饰 摄影机构:ingallery
童 年 / 爱 情 / 亲 情
设计背景 活泼可爱的宝宝, 年轻夫妻俩,父母,三代同堂一家五口幸福的居住在一起。客户的母亲为人热情亲切,每次去都会给我做好吃的。阿姨的拿手菜是鸡汤,滋补温润。平日里他们喜欢在家自己做饭,所以厨房和餐厅是他们的家庭生活中心。在客厅的设计上,我们去掉了移门,在使用和视觉上更为宽阔,室内也可以更好的融入户外的环境,这也是我在设计元素上着重想要实现的。我们计划去创造一种轻松的,更具有包容性的空间。
麦色是最为亲和有温度的,在木饰面的选择上我们同样选择亲肤的麦色,整个客厅的空间相对柔和许多,对于已经是宝爸的客户来说,客厅是孩子最好的活动空间,在用色上活跃又不张扬,客厅推出去是一个活动空间一整面的书架,在这个空间里欢度童年,秋是稻谷的颜色,他深邃、童真也是丰收,充斥在这个空间里的是儿时比较深刻的记忆,是躺在金灿灿的稻谷里嬉戏玩耍
原结构上餐厅和厨房只有现在的一个餐厅大,在结构上我们有做调整,使用频率上厨房餐厅往往比客厅多,客户工作性质早出晚归,早餐、晚饭就显得格外重要,在餐厅空间上不能那么局促,吃饭不仅仅为了填饱肚子,他应该是物质生活的提升,餐厅会是当下人与人最好的沟通场所,餐桌的两边是展示空间,尽头是黑板墙,主要是在餐厅营造一种阅读氛围,这样孩子放学回来可以把餐厅作为一个学习空间同时方便爷爷奶奶照顾(孩子房间在二楼),厨房我做了双门的处理,在展示柜的中间我们做了一个隐形门,视觉效果上统一,同时方便进入餐厅
行走在初秋的微风里,树影婆娑,淡淡的阳光,光影斑驳,从梧桐树中投下,此刻秋色是梧桐的颜色,它执着、热辣、守护,脚踏南京这片土地,心中却有梧桐树下的故事。傍晚坐在餐桌上一家人谈论着美食和生活,偶尔有说有笑,待到夕阳西下傍晚的月色慢慢升起,这也许这就是生活该有的样子
初秋的夜色微风拂过有些迷人,有种蓦然回首,那人却在,灯火阑珊处的诗意。秋的夜是最好的安眠,透过天窗繁星点点,作为顶楼这份美没有任何的遮挡,生活在高楼林立的城市,也只能是此景只因天上有了,此刻的秋色是那一份慵懒的时光。
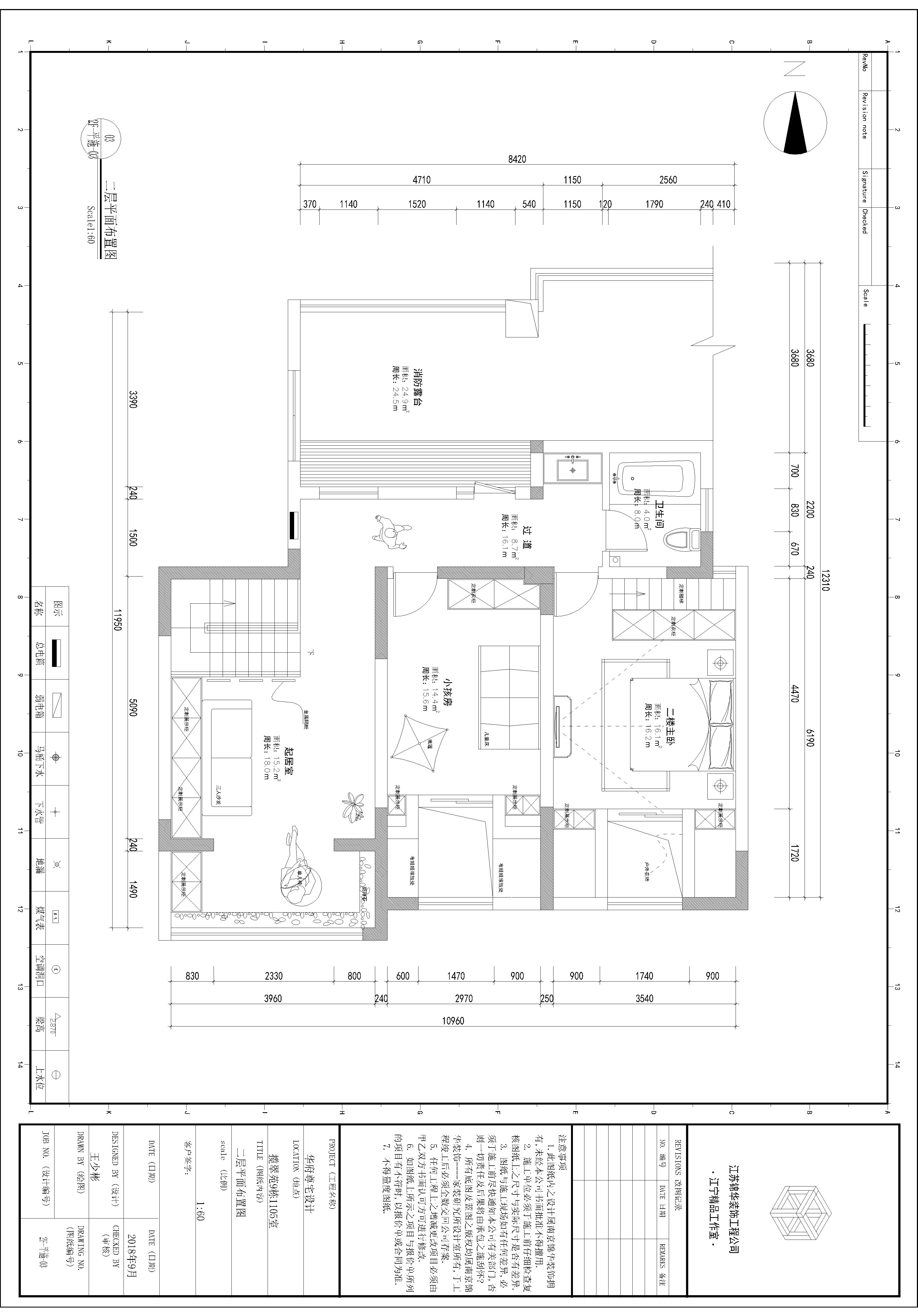
一层平面图
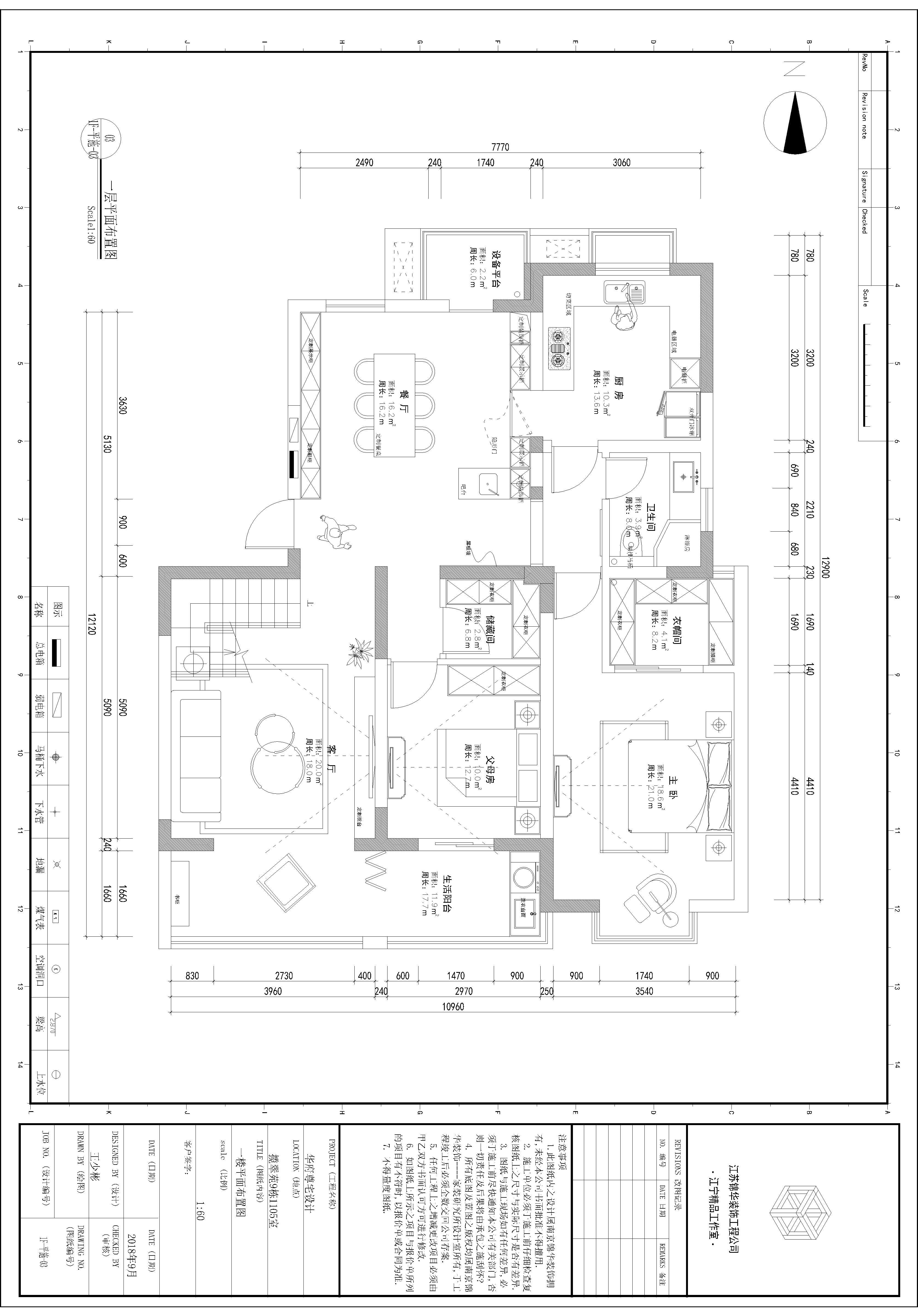
二层平面图

