山无界 境自远——红星地产【青华海PARK】营销中心


作品说明
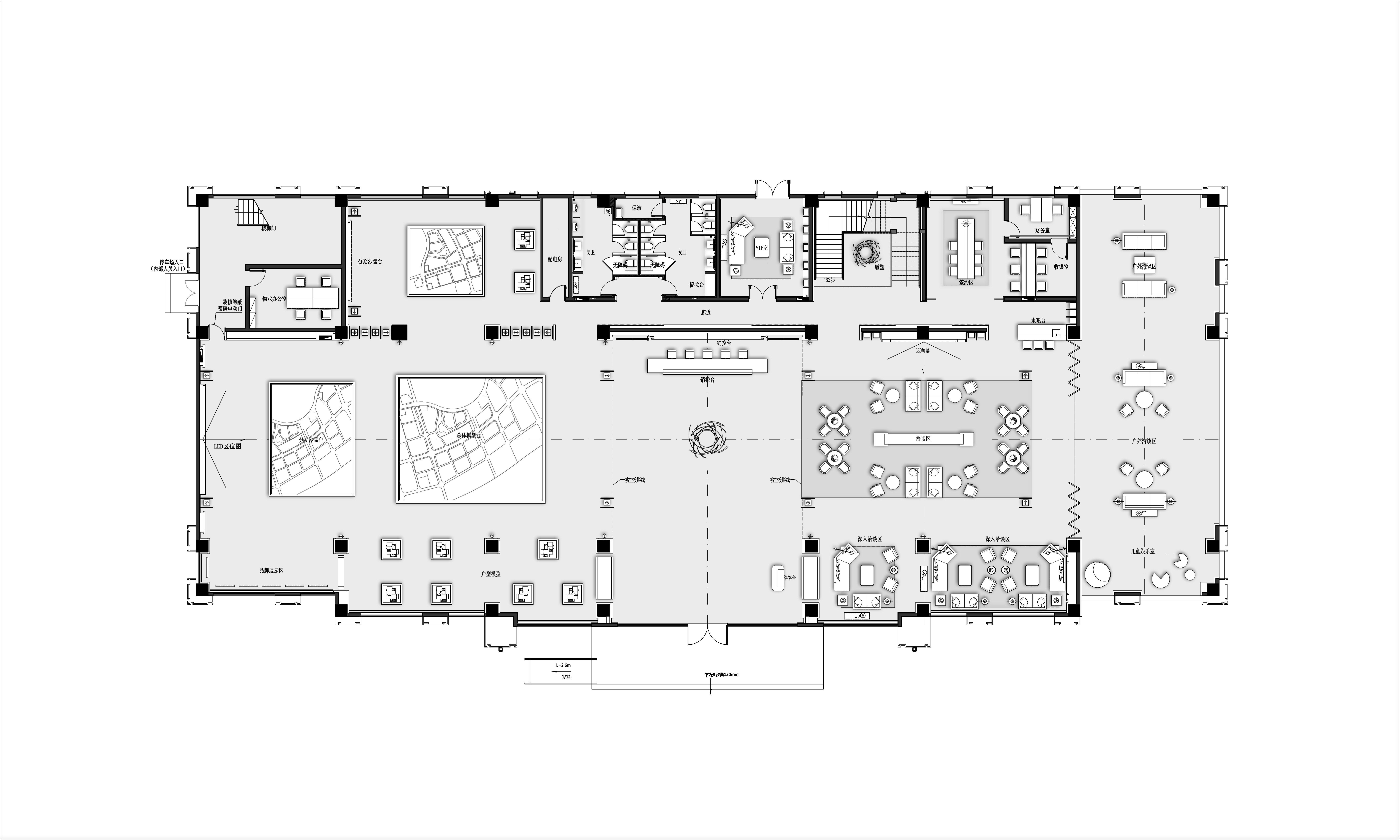
- 项目类型:样板间/售楼处
- 项目地点:保山市
- 建筑面积:3650.0000㎡
- 项目造价:1277.0000万元
- 主案设计师: 深圳市大森设计有限公司
- 参与设计师:罗辉
- 竣工时间:2018-12-15
- 设计机构:深圳市大森设计有限公司
-
项目定位:假如说,居室是温馨舒适的,那营销空间必定是略带烟火气的高亢明亮。空间中大面积施以中性色铺开,微暗的灯光、静谧的高级灰、沉稳的翡翠绿、质感十足的金属色泽。也正是呼应了东方气韵上的讲究。
-
空间意境:青砖是中华文明的象征之一,主墙以铜质铸其形,似乎从其繁复的工艺可窥探传统文化的精髓。空间的氛围热情而不喧嚣,亲切而不市井,既可阳春白雪也可下里巴人。人身处其中细细品味。
-
空间布局:沙盘区倾泻而下的水晶艺术装置吊灯,仿佛一阵骤雨,以疏密勾勒出参差嵯峨的山之形影。顺着“雨水”而下,是散发的光影。素雅颜色统合的空间,在光影下,似有古雅澹泊的境界。简单直叙的设计于简约中尽处悠悠情味。过渡区域的材质碰撞,将仪式感做到极致,实与虚的对弈在木头与屏风之间展开,界限模糊且被拉长,每一个空间点都似乎在传递一些书本里的章节。零星散布的洽谈区域,划分了各自的小空间,有出人意料的视觉障碍。满足使用者洽谈中保留私密性
-
设计选材:大理石、木饰面、夹丝玻璃、金属板。
-
用户体验:青华海PARK营销中心正式开放,也预示着国际湖居生活的正式开启,品质为先,为升级人居消费环境,带来国际繁华生活而不懈努力。打造满意的城市封面作品,让保山有湖边最美的城市天际线。

