東fashion hairstyle


作品说明
- 项目类型:休闲娱乐
- 项目地点:银川市
- 建筑面积:200.0000㎡
- 项目造价:190000.0000万元
- 主案设计师: 毛羽侬
- 竣工时间:2020-06-22
- 设计机构:宁夏熹择设计
-
项目定位:该项目是東·fashion hairstyle品牌兴庆府店的一次品牌升级,作为一个在银川市场上成立十年以上的美发品牌,東·fashion hairstyle一直保持这自己对于美的理解,同时也想把更加前沿的美学理念传达给自己的顾客们
-
空间意境:在空间方面,我们想让顾客步入店面就可以感受到美的本质的单纯性。化繁为简的设计才能的经受时间的磨练
“品质感”&“独立“&”时尚”就是我们想传达给所有生活理念 -
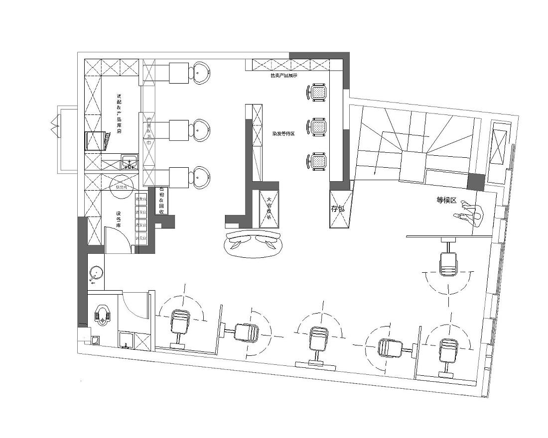
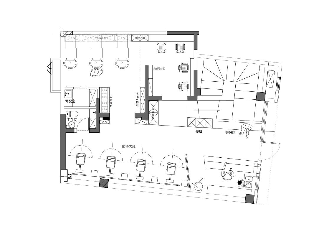
空间布局:在空间功能划分上,我们把剪发和烫染的位置区分开,做了两个独立的空间使用。这样每个工作位的操作距离就能更好的控制,从而在可以最大程度上增加剪烫工位。同时,相对封闭的烫染区域,也让后期顾客在里面可以有更加安静舒适的体验感受。
-
设计选材:主要材料:水磨石 不锈钢 艺术漆
-
用户体验:视觉感受和实用性结合的很好

