江纺历史文化街区 | 招商中心



作品说明
- 项目类型:地产
- 项目地点:南昌市
- 建筑面积:800.0000㎡
- 项目造价:1500.0000万元
- 竣工时间:2020-10-10
- 设计机构:亚兰设计
-
项目定位:城市更新已经从单纯的“拆旧建新”过渡到了以功能重塑、历史文化传承为重⼼的“有机更新”阶段。随着城市对工业遗存历史、文化、社会价值的再认识,是时候考虑“老厂房”改造的新选择,保护南昌纺织文化遗产,具有不可替代的价值。
-
空间意境:历史遗留下来的物件没有被丢弃,把它们改造成一件件工艺品,仿佛身处历史博物馆,唤醒那段辉煌记忆。
纺织厂遗留保护下来的旧物件与同时代的“冷,极简,机械”工业设计成熟时期的家具搭建出现代艺术馆的美感。 -
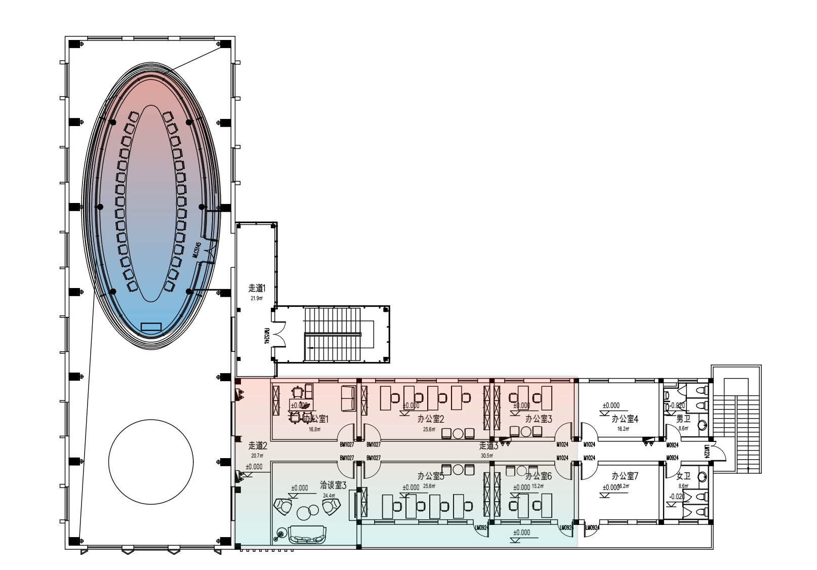
空间布局:“包豪斯”作为现代重要的设计风格之一,它是大家提起工业设计时的代名词。具有百年历史的包豪斯家具,应用于此,是设计与工业的碰撞,也是一段历史与历史的碰撞。让岁月的痕迹与当代的审美在这里交融碰撞。
设计师利用藏品通柜将空间连贯起来,让空间更加轻盈通透。入口从洽谈区到沙盘次递进,划分两段式布局,功能相对独立又有连接。
墙面用旧物改造成的壁饰,是历史记忆的载体也是空间必不可少的装饰,也是能让人静下心来观赏的艺术品。 -
设计选材:墙面用旧物改造成的壁饰,是历史记忆的载体也是空间必不可少的装饰,也是能让人静下心来观赏的艺术品。
-
用户体验:在历史的长河中,我们时常会忘记过去,正是有了器物的承载,建筑的保留,人们才能得以重拾那段青葱地奋斗岁月。时间的推移虽然能让新旧更迭,但我们却能保留旧时的那份美好。
在南昌的历史长河中 江纺是一段辉煌的过往 深深地印在老南昌人的脑海里 在计划经济年代 几乎无人不知江纺 它曾是一张耀眼的城市名片 如今却只剩下年迈的老人 破败的房子和带不走得回忆
城市更新已经从单纯的“拆旧建新”过渡到了以功能重塑、历史文化传承为重⼼的“有机更新”阶段。随着城市对工业遗存历史、文化、社会价值的再认识,是时候考虑“老厂房”改造的新选择,保护南昌纺织文化遗产,具有不可替代的价值。
历史遗留下来的物件没有被丢弃,把它们改造成一件件工艺品,仿佛身处历史博物馆,唤醒那段辉煌记忆。 纺织厂遗留保护下来的旧物件与同时代的“冷,极简,机械”工业设计成熟时期的家具搭建出现代艺术馆的美感。
“包豪斯”作为现代重要的设计风格之一,它是大家提起工业设计时的代名词。具有百年历史的包豪斯家具,应用于此,是设计与工业的碰撞,也是一段历史与历史的碰撞。让岁月的痕迹与当代的审美在这里交融碰撞。
设计师利用藏品通柜将空间连贯起来,让空间更加轻盈通透。入口从洽谈区到沙盘次递进,划分两段式布局,功能相对独立又有连接。 墙面用旧物改造成的壁饰,是历史记忆的载体也是空间必不可少的装饰,也是能让人静下心来观赏的艺术品。
在历史的长河中,我们时常会忘记过去,正是有了器物的承载,建筑的保留,人们才能得以重拾那段青葱地奋斗岁月。时间的推移虽然能让新旧更迭,但我们却能保留旧时的那份美好。

