理想之城


- 项目类型:住宅公寓
- 项目地点:成都市
- 建筑面积:145.0000㎡
- 项目造价:60.0000万元
- 主案设计师: 罗艳
- 参与设计师:王荟惠 廖瑾
- 竣工时间:2021-05-15
- 设计机构:四川铜镜空间设计机构
-
项目定位:以简洁的手法营造舒适美观的居家环境
-
空间意境:适合现代审美的风格加上宜居的空间规划
-
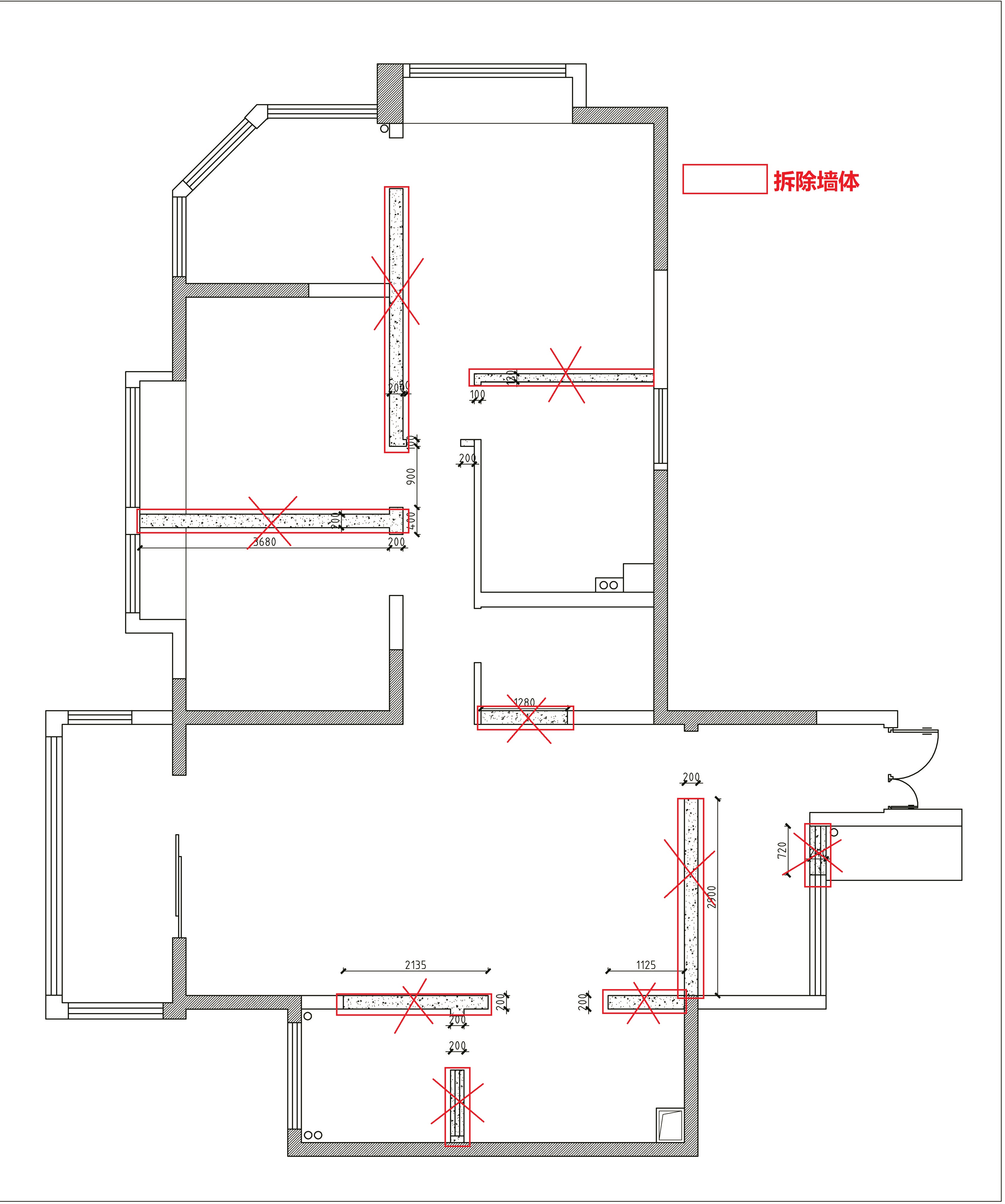
空间布局:拆掉了大部分不合理的墙体重新构建合理的空间尺度
-
设计选材:LED无主灯设计加上木质材质的运用
-
用户体验:空间舒适,储物充足,美观大方
入户门厅左侧是悬挑式鞋柜,背景为木质墙板且为隐形门作为储物间的入口。右侧为石膏造型墙面内陷安置暖气片。
黑色镜面包裹过渡墙体与餐边柜、酒柜相互衔接层次分明且扩展视觉效果,顶面和侧面内陷式发光灯条点亮空间。餐边柜悬挑并内置发光条,中间大面积留空,局部使用玻璃砖透光不透影,解决了卫生间的采光问题又别样有趣和富有情调。
将储物间墙体外移900cm后,扩大了客厅面积并将此处设置为西厨区域,蒸烤箱、水电齐备的同时增加了实用性和美观性。
餐桌选用原木色与地板和餐边柜遥相呼应,靠着吧台竖向安放与整体布局错落有致更具空间感,吧台上使用磁性插座美观的同时满足就餐的用电需求。
橱柜采用白色烤漆和木纹饰面在色彩和材质上进行对撞,让厨房也能更加美观。
所有地面均为原木色木地板人字拼通铺,无门槛石,整体性强同时更加美观。
限于层高局限,顶面采用无主灯设计保留原始顶面。点光源搭配柜体内部和底部灯带对整个空间提供照明和突出氛围感。
通过玻璃砖让卫生间的光源也能传到客厅,同时在白天自然光线也能传到卫生间达到双向传导的作用。
将靠厨房和生活阳台一侧的墙体打掉后设置为长虹玻璃隔断,解决了客厅和厨房的采光问题也让空间更加通透美观。
墙面局部使用线条进行装饰,灰色沙发、灰色地毯搭配组合式圆形茶几,整体色彩简洁温馨。
电动百叶窗帘柔化光线的同时也让阳台富有情调。
阳台地面与厨房采用一致的拼花地砖,仿古砖错缝铺贴墙面,简单舒适的布艺坐垫靠窗而放。
电视柜整体悬挑设计,内部分隔错落有致,色彩和材质的与整个空间互相协调。
造型简单的单椅搭配挺拔的绿植为休闲的时光提供舒适惬意的氛围。
玻璃砖透光不透影,让暗卫也能“借”到自然光。
床头位置本身是飘窗,新建部分墙体遮挡部分位置,同时用窗帘进行遮挡和装饰弱化。

