中关村数字经济创新产业基地



作品说明
- 项目类型:办公
- 项目地点:北京市
- 建筑面积:21565.0000㎡
- 项目造价:6000.0000万元
- 参与设计师:李建川、王磊、王学丽、张志浩、吉世超、李亮、胡琨
- 竣工时间:2020-05-29
- 设计机构:北京清石建筑设计咨询有限公司
-
项目定位:学清路站在中关村核心区及清华北大两公里半径范围内,这里作为互联网企业聚集地,工业时代遗留的老厂房悉数拆除更新,机电研究所是其中为数不多的幸存者之一。本次挑战是新兴的互联网及科技企业。他们需求的是最大化的办公面积,但同时还要有良好的通风采光环境以及高品质、活跃的空间氛围。
-
空间意境:业主对于项目的定性是以室内改造为主。但我们却将关注点放在了项目之外。结合入口的位置,我们用圆形将整个厂房一分为四,融入到周边的环境中。“我们希望每个办公区都像被花园所围合,让互联网企业人员在工作之余望向窗外,便即刻获片刻轻松,当然,也可以直接步入花园,享受阳光与自然的气息。”
-
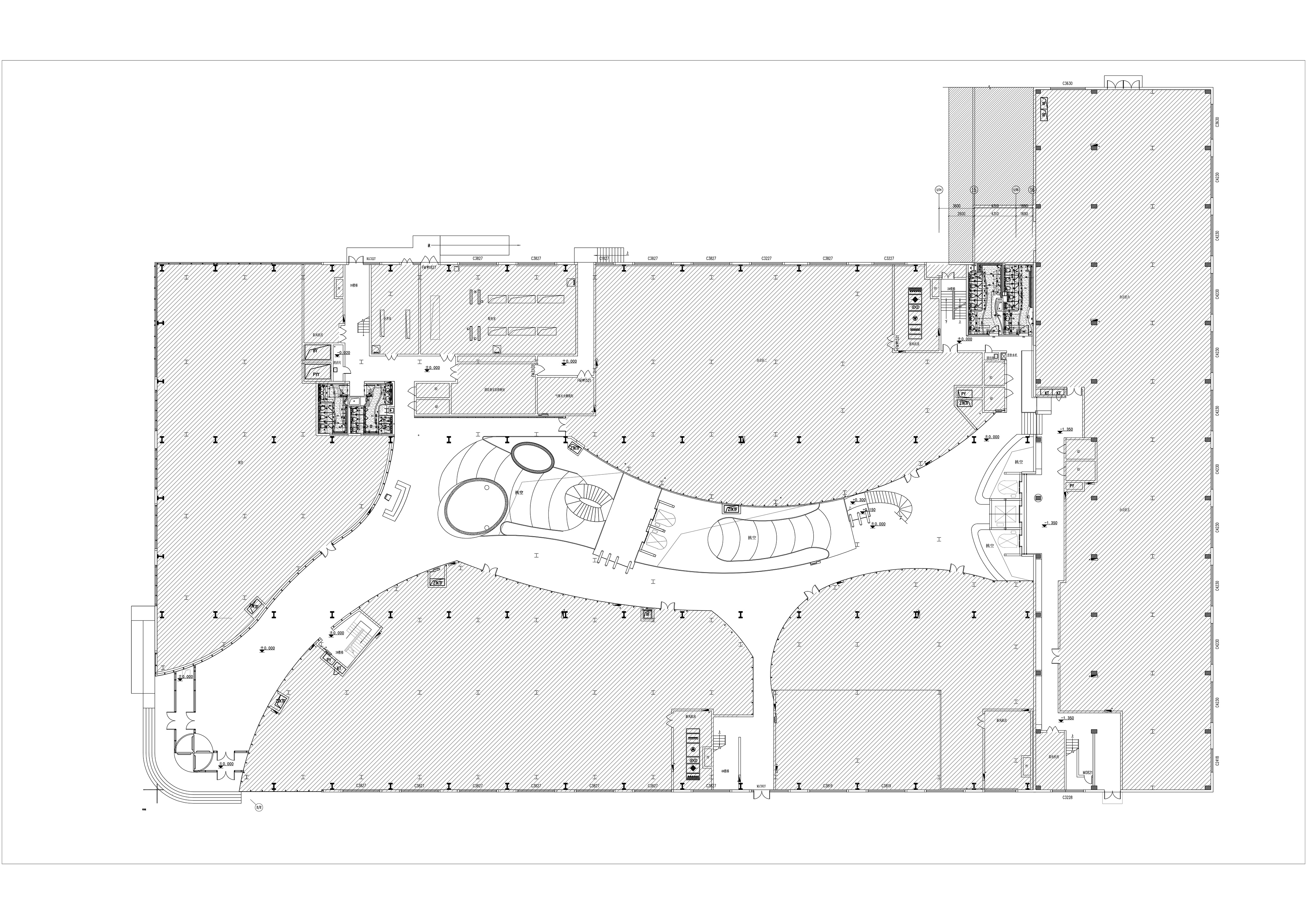
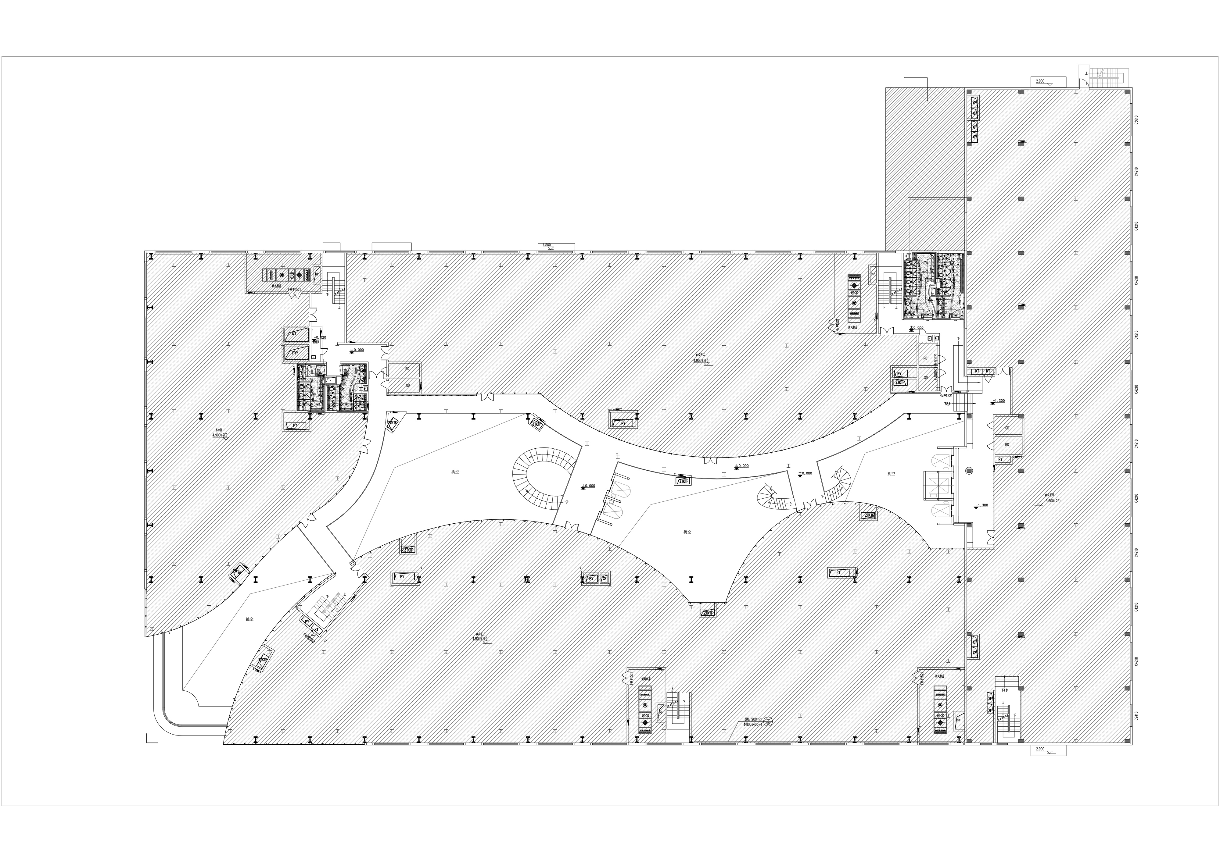
空间布局:从入口进入后,能看到大面积被扩建改造的采光天窗,光从此进入引导行进的方向。采光天窗一直延伸至与中庭连为一体,中庭花园沐浴在自然光线中。时间行至傍晚,灯光依旧温暖,天窗反衬出蔚蓝星空。中庭的后半部分保留了旧建筑的部分天窗,使新的空间使用者能够感受到原有厂房中独具特色的印迹。由于整个项目东西尺度较长,设计师在中庭间隔设计了两部不同形态的旋转楼梯分散组织人流动线,并起到活跃空间氛围的作用。旋转楼梯附近,两组开敞型的观光电梯与步行梯相呼应,同时采用明亮的色彩涂装结构钢架,形成中庭的视觉焦点,共同组成交通核心。艺术化的螺旋楼梯能与工业化的观光电梯相互对撞,令整个空间充满生机与活力,为上下的旅程增添一份趣味。为最大限度地满足泊车需求,设计师将原有地面下挖到柱子的基础,作为半地下车库使用。下沉的中庭花园向外延伸至车库,带来不一样的停车感受。
-
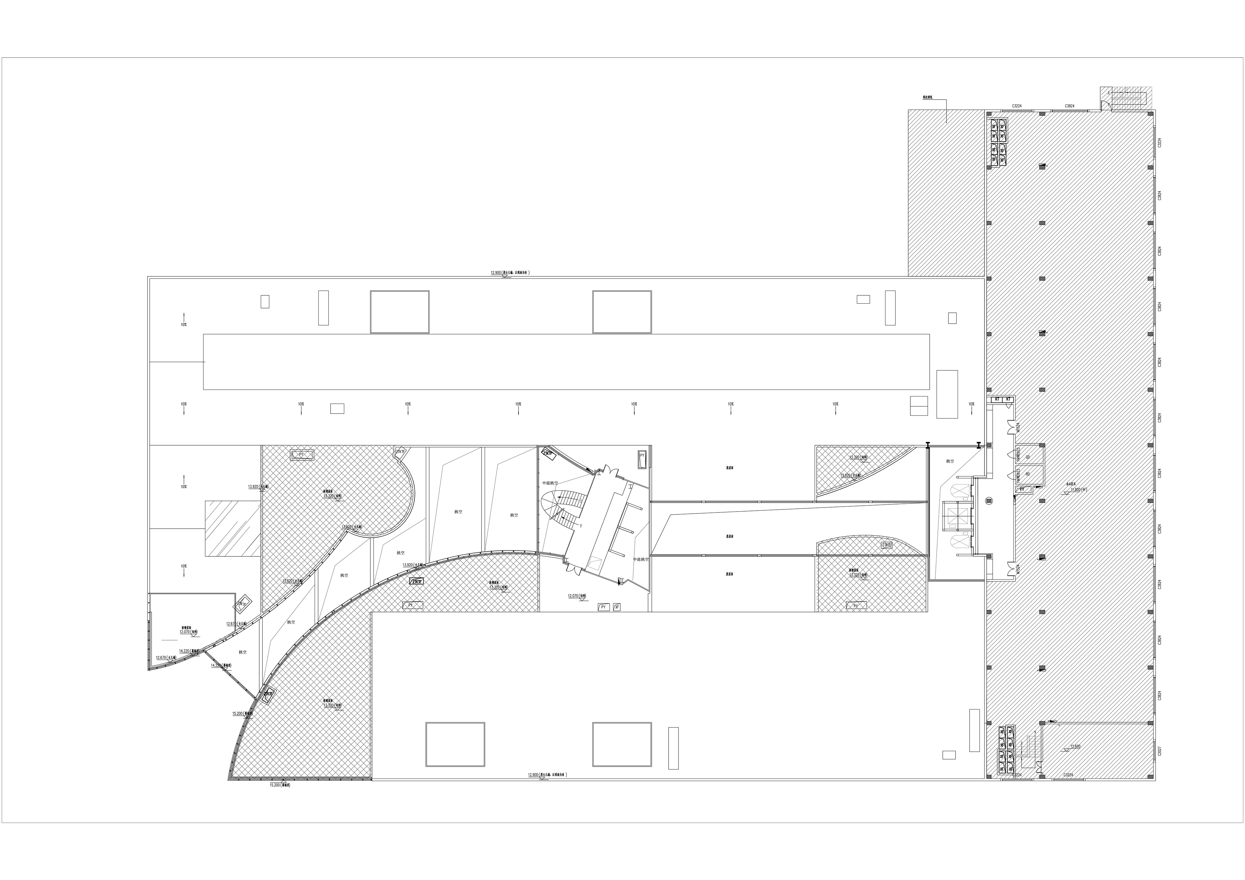
设计选材:为了最大化提高使用率,屋顶几乎承担了整个建筑的所有机电设备。于设计师见缝插针地在原有建筑的斜屋面上设计了休闲与聚会两个风格功能迥异的屋顶花园。花园中心设计太阳能自发光座椅及叶片、羽毛形态的艺术装置,夜晚漫步时,互联网人的思绪也可以随时飞舞起来。我们不仅希望使用者的窗外有一片花园和星空,也希望周边的建筑和使用者感受到这片花园和星空。
-
用户体验:在午后阳光里,新旧部件相遇,散发迷人光影。新旧材料在空间中彼此融合。

