曜
1092 - 项目类型:住宅公寓
- 项目地点:无锡市
- 建筑面积:180.0000㎡
- 项目造价:1080000.0000万元
- 参与设计师:颜旭、林余辉
- 竣工时间:2021-08-18
- 设计机构:DoLong董龍设计
-
项目定位:本案是一对年轻情侣的婚房,他们想要一个温润细腻的新家,在整体风格上突出现代感的明亮与舒适。设计者运用比例与版块非常考究的灰白木色,奠定温馨的氛围格局,同时在局部嵌入恰到好处的黑色边框家具,与浅色基底产生富有层次感的视觉对比,最后在极精致的施工工艺和精心挑选的软装加持下,为业主呈现了一个温柔明媚与绅士端庄相互交织的现代舒适居所。
-
空间意境:沙发背景墙由两种灰度的三组色块平行穿插构成,并且在黄金视觉区域凹出一个有趣的、似上悬窗打开状态的造型,置入柔和的灯带后,整面墙表现出吸引眼球的立体感染力。沙发一侧,低饱和度的色彩运用,彰显淡雅的克制之美。这种色彩的质感营造舒适减压的居住氛围,同时也能令人感受到品质上的高级感。
-
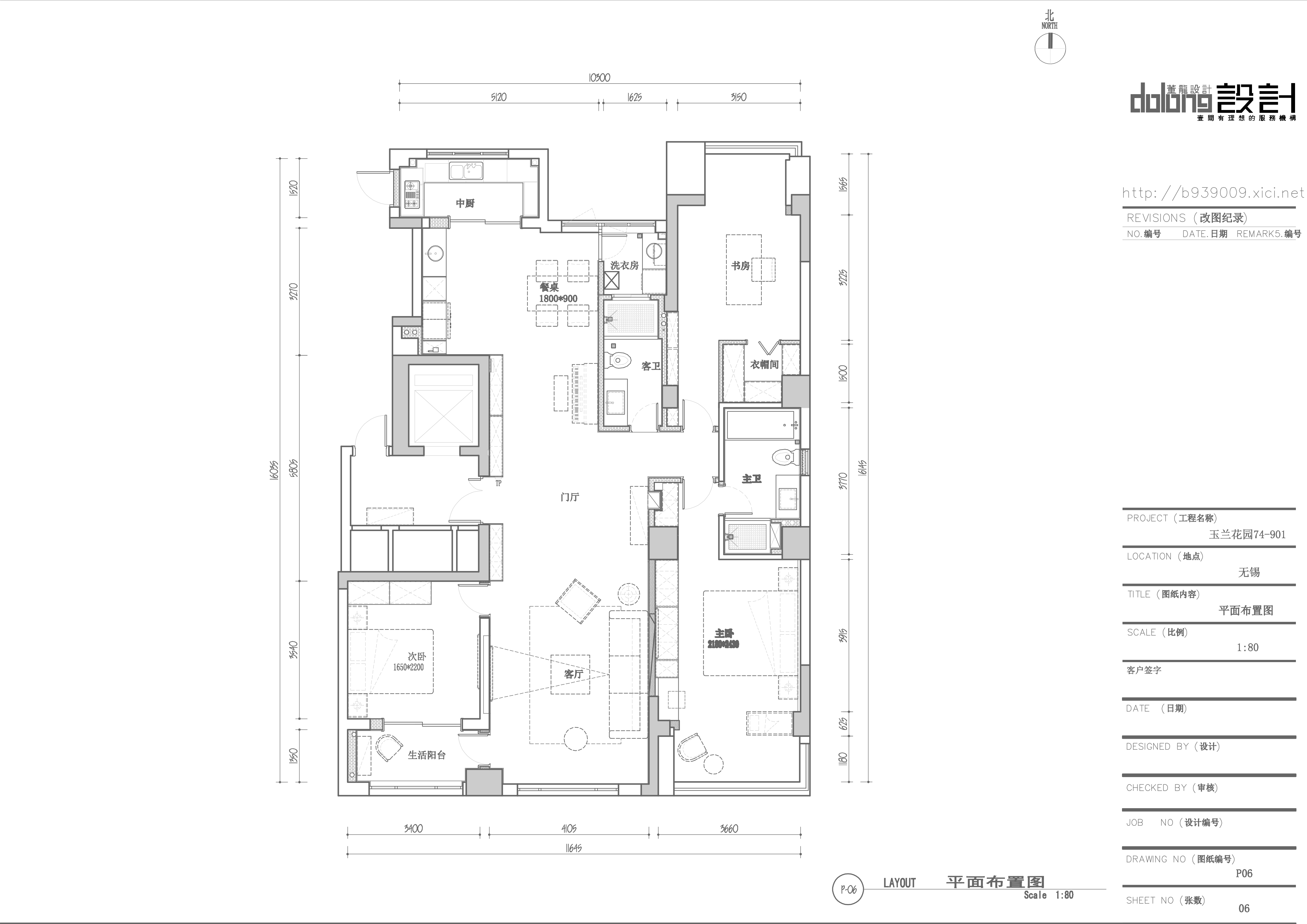
空间布局:客厅借由木饰面向餐厨空间过渡,木格栅简约的线条透露出优雅的秩序感。地砖也从浅灰加深至暗灰,色彩在同系范围里层层递进,将不同功能划分的同时,也在调度居住者的丰富情感。
-
设计选材:选材尽量避免宽大的浪费的面板,做到短小精致
-
用户体验:用户给与设计团队高度的评价,用来作为婚房再合适不过,很舒服很喜欢。
本案是一对年轻情侣的婚房,他们想要一个温润细腻的新家,在整体风格上突出现代感的明亮与舒适。
设计者运用比例与版块非常考究的灰白木色,奠定温馨的氛围格局,同时在局部嵌入恰到好处的黑色边框家具,与浅色基底产生富有层次感的视觉对比,最后在极精致的施工工艺和精心挑选的软装加持下,为业主呈现了一个温柔明媚与绅士端庄相互交织的现代舒适居所。
沙发背景墙由两种灰度的三组色块平行穿插构成,并且在黄金视觉区域凹出一个有趣的、似上悬窗打开状态的造型,置入柔和的灯带后,整面墙表现出吸引眼球的立体感染力。
其位置偏左,没有严苛地居中,以放松随意的家之原始追求消解了庄重构造带给人的压力。倚一席浅色落地沙发依傍于此,触手可及的家使人倍感亲切。
纯白色薄纱朦胧了喧嚣闹市,让静好的二人世界沐浴柔和的阳光。
沙发一侧,低饱和度的色彩运用,彰显淡雅的克制之美。这种色彩的质感营造舒适减压的居住氛围,同时也能令人感受到品质上的高级感。
当目光慢慢转向电视一侧时,色彩逐渐向深色过渡。暗色调是影音体验的绝佳背景氛围,并且在黑色边框和电子炭火的烘托下,整面墙如神秘的绅士,笔直硬朗的线条勾勒其谦谦有礼的品格。背景墙的两侧嵌入了通往主卧室的隐形门,并且丝毫没有破坏背景墙的整体性。
地毯的选择同样讲求合适,其似年轮又似行星划过的痕迹给人无穷的想象空间。超大装饰猩猩的加入使得客厅陡增一组卡通趣味的元素。
硬朗的石材茶几呼应熊燃的炭火,纯正的灰色地砖承载家庭所有的重量。一种“千磨万击还坚劲,任尔东西南北风”的阳刚之气随沉稳的光影,安静地沉入鳞次栉比的四壁。
客厅借由木饰面向餐厨空间过渡,木格栅简约的线条透露出优雅的秩序感。地砖也从浅灰加深至暗灰,色彩在同系范围里层层递进,将不同功能划分的同时,也在调度居住者的丰富情感。
木格栅上,宇航员的模型精致而抓取眼球,在自然光线和艺术灯光的共同作用下,让这里成为他登陆的宇宙空间。
顺着这毫无遮拦的动线,从客厅跨过中庭,便进入餐厨的世界。
黑色边框装饰画和黑金属储物柜将视野引入同色调的餐厨空间,黑色所带有的“冷”给人最直接的感受倾向便是充满着科技感或是智能性,同时它也彰显着年轻人的酷以及更现代的审美。
具有自然材质纹理的木餐桌,纤瘦简约而富有现代感,搭配同样简洁却精致的餐椅,毫无束缚,用餐的灵活和自如被凸显的同时,还保持着令人心仪的仪式感。落地窗紧靠着餐厅,白日能欣赏窗外的景物,晚上则在艺术吊灯的映照下,于黑暗中升起无与伦比的浪漫情调。
作为卧室,追求温馨是根本的追求,所以设计者运用大量的暖木材质,按照一定比例和形式,规整地将其展列在卧室空间内。
空间采用无主灯的设计,背景墙线性灯带被藏进木饰面里,天体形状的吊灯将温度汇聚,倾洒于床沿,这样的组合方式为卧室营造极柔和浪漫的休息氛围。
落地窗款款而落,阳光倾斜地打在梳妆台上,整面定制柜将温暖收纳,婉约地向时光传递。
书房四壁被明亮的白色萦绕;书桌采用浅灰纹理大理石,一张舒适的背靠椅端坐于前。携一杯茶、一本书,度过一个闲适的故事之夜。
0
0

认证 · 让您身份增值