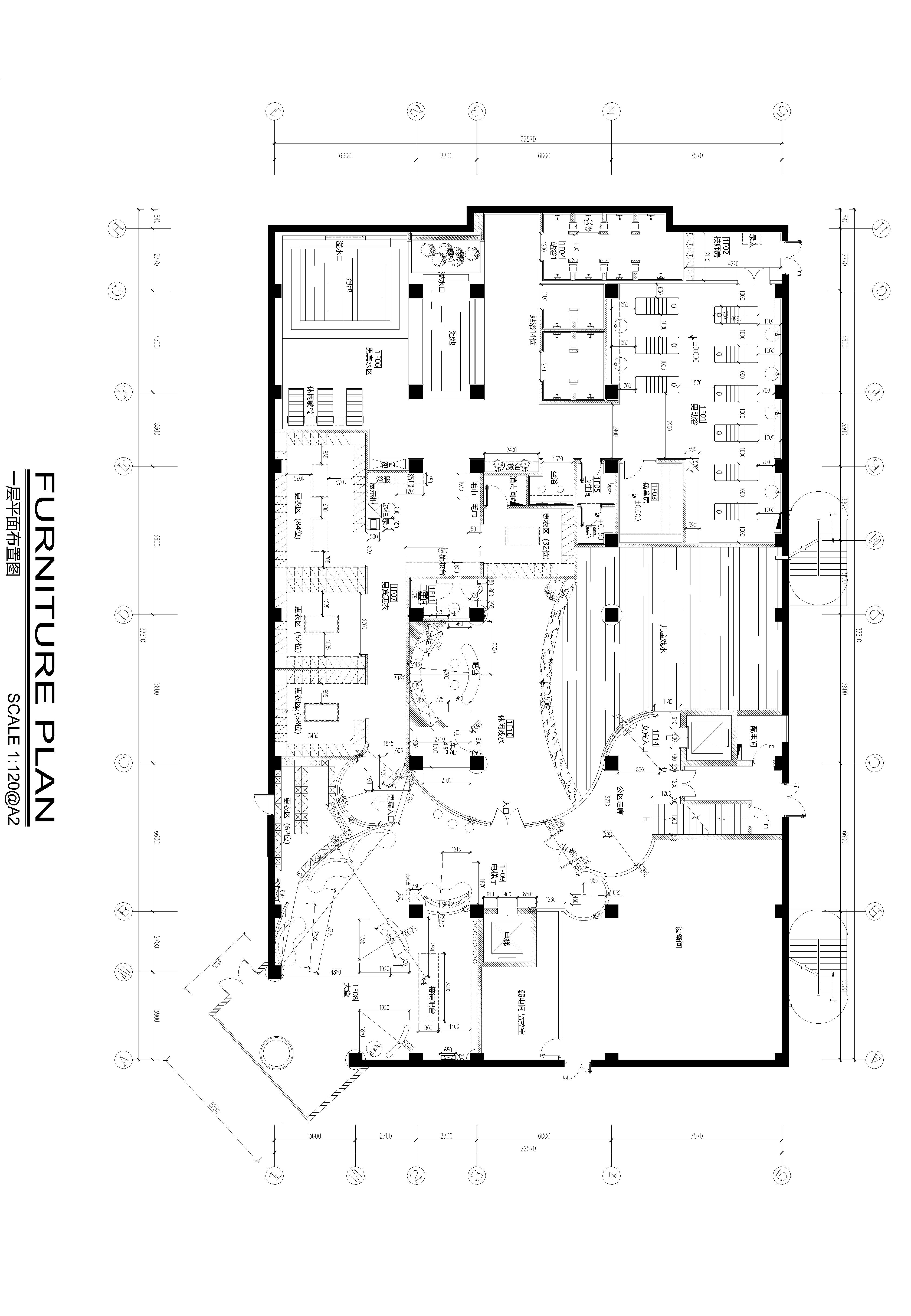
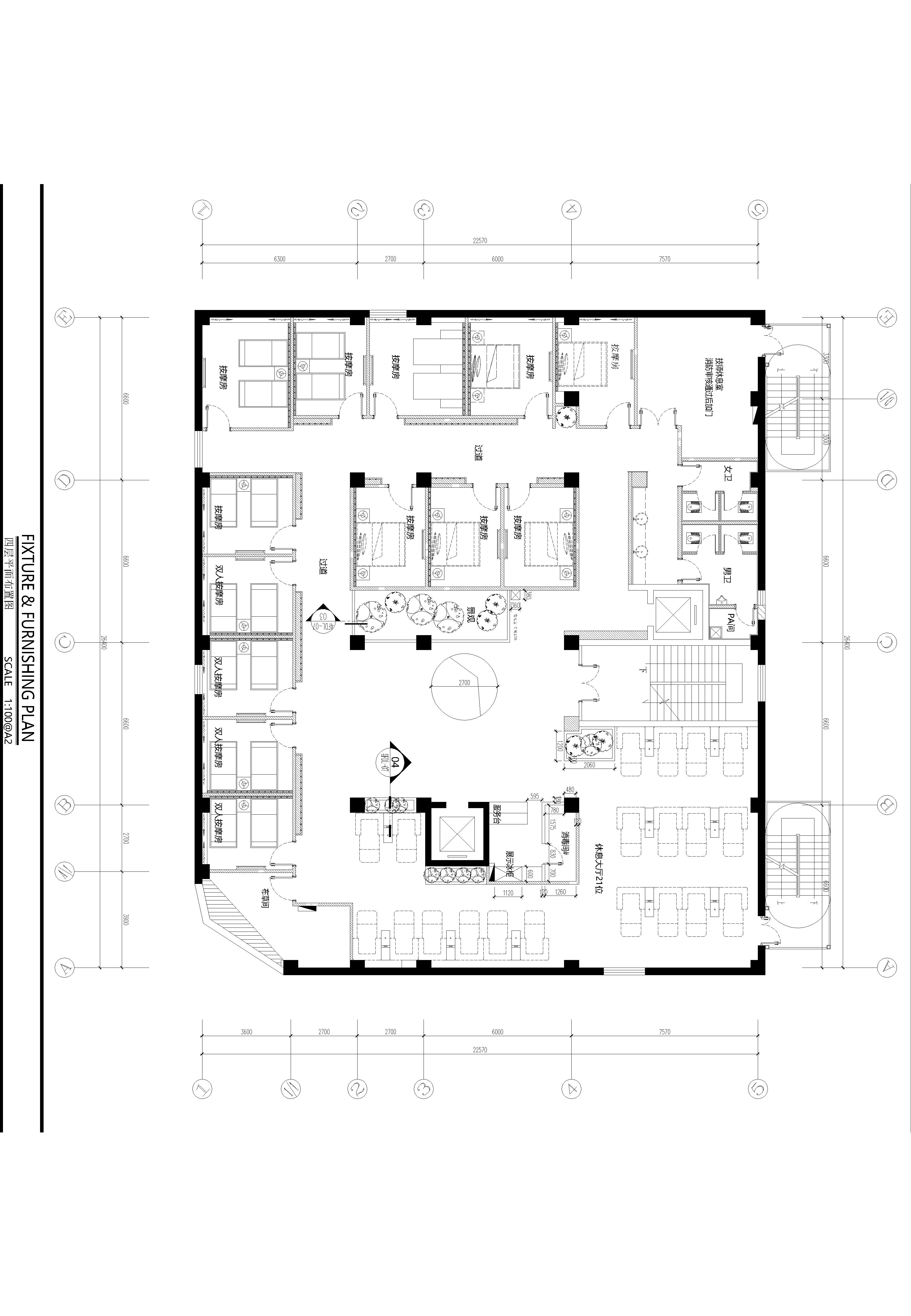
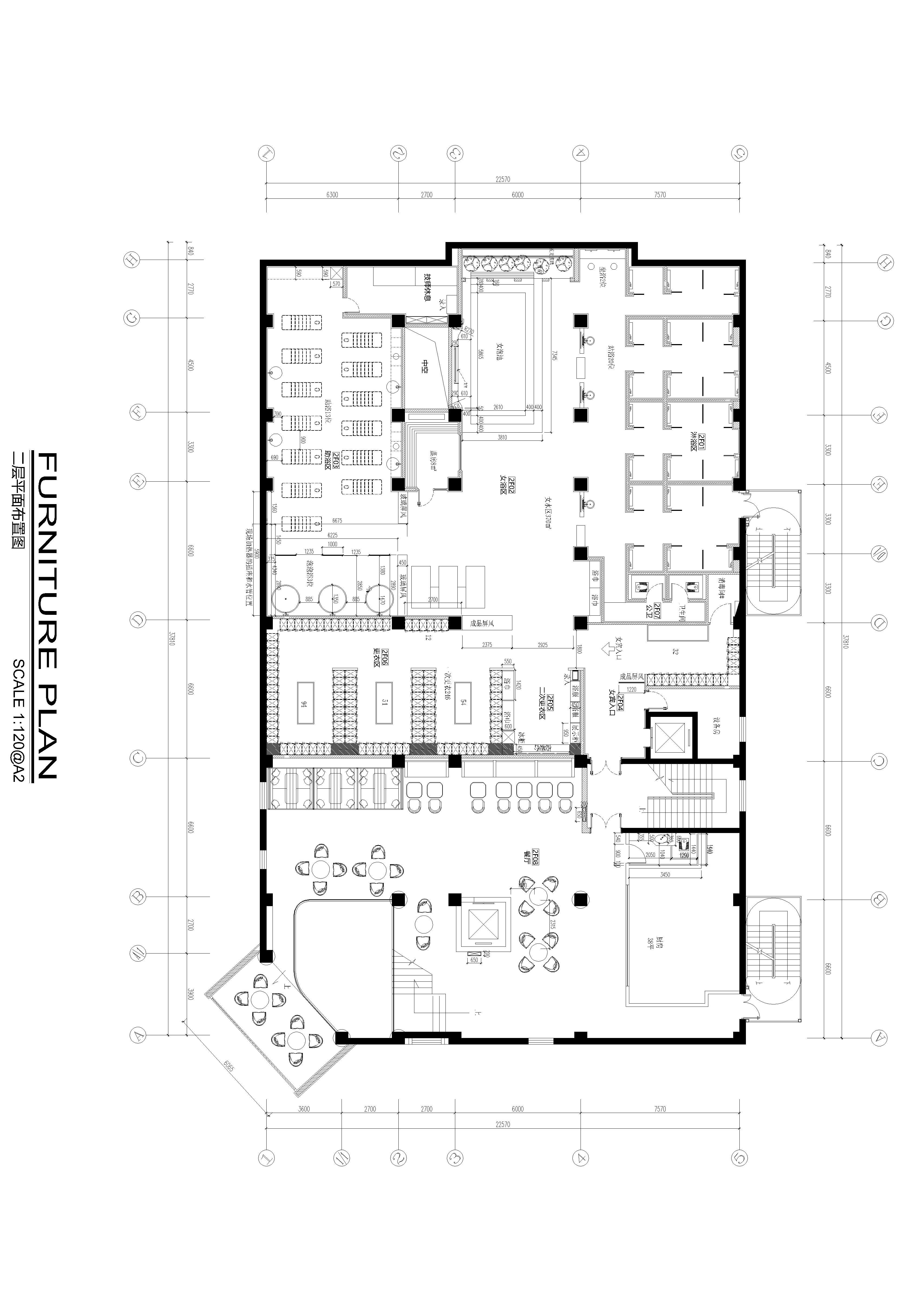
悦水盈洗浴


作品说明
- 项目类型:休闲娱乐
- 项目地点:沈阳市
- 建筑面积:3600.0000㎡
- 项目造价:1500.0000万元
- 主案设计师: 孙浩
- 竣工时间:2021-10-31
- 设计机构:孙浩设计事务所
-
项目定位:本次案例设计位于辽宁省沈阳市,这次设计将项目背景推向梦境的边沿,借“以物为实,空间为虚,游梦为境”的概念,并结合了“林深时见鹿,海深时见鲸鱼”来进行本案的设计。
-
空间意境:当我进入现场时看到这么高的举架时候,我就想到了这点,“梦”可深可浅也更能贴近自己内心的深处,它似鹿似鲸,所以这次设计我们用水波纹钢板去表达那深邃的海底去表达海深见鲸,用石膏板造型去呈现树林的感觉表达林深见鹿,运用色彩搭配和绿植的点缀给予这个梦境赋予了色彩,灰色大理石的铺垫让梦与现实之间的那条界限更加分明。
-
空间布局:整体空间诠释的简单但又复杂,让到来的人们有一丝遐想但又归回现实中,莫寻梦中梦,去寻梦想梦。
-
设计选材:设计选材在建造一些异型时主要运用微水泥比较多,其他材料都选择低碳经济的。
-
用户体验:根据大众点评调研,具体如下:
1.想带孩子去洗澡,上网一查这家新开的离家也不远就果断锁定这家,先说店内环境,新开的指定没问题,真的很干净也没有味带孩子来很合适。
2.最近新开的洗浴,来探店了,1-5楼,面积虽然不大,但是各类区域都挺全。
3.环境没的说,干净现代简约,虽然不太大,但是五脏俱全,各种细节展现的淋漓尽致。

