林间集市办公室
1224
作品说明
- 项目类型:办公
- 项目地点:西安市
- 建筑面积:1500.0000㎡
- 项目造价:4000000.0000万元
- 主案设计师: 张文涛
- 参与设计师:赵宇航
- 竣工时间:2021-03-15
- 设计机构:西安德方晟璟装饰工程有限公司
-
项目定位:设计以现代中式与古典中式相结合,用现代手法来表现古典韵味,融合了庄重与优雅双重气质。表达对清雅含蓄,端庄风华的东方式精神界的追求
-
空间意境:表达一个空间的手法,并不是简单利用元素的堆积,而是要经过认真推敲,于功能、美观、文化含义等多方面综合考虑,采用硬朗简洁的线条,体现空间的层次感,在帮助享受尊崇的交流空间而又不失礼节
-
空间布局:中轴对称的格局、方正的轮廓、中式的典雅与庄重,从设计的思考到空间的构思再到营建的过程,隐形的中国传统文化属性贯穿其中。将传统中式的繁复简化,运用中国传统文化的符号与建筑形态、元素与现代材质的巧妙兼柔之下,阐述者悠久的民族文化与特质,博大精深,源远流长
-
设计选材:选用胡桃木,瓷砖,乳胶漆还有铝方通,石材点缀,没有用奢华的材料,大面积运用环保乳胶漆,降低成本,结合木质元素,营造典雅的氛围感,门厅采用软膜灯花,仿佛借用室外自然光,照进了室内,还有中式合院的四海归堂感。
-
用户体验:客户很满意,门头庄重气派,不俗气,空间感十足,宽敞大气,用一个“东方主义”的设计表现来致敬文化。进可坐拥繁华,退可驻守恬静,既能突出了企业形象与品牌文化,又不失中式风格的文化底蕴。巧纳中国美学于空间构筑,呈现出极具尊贵价值感的空间气质。宽敞、安静的办公环境,是一个企业决策和规划的核心所在,兼顾企业领导人的品格和风范,同时领略整个企业的文化及价值观,结合材料选择运用、色彩搭配以及家具造型的保守,在方正的空间,彰显气质的高贵与尊威
门厅,传统中式的繁复简化,运用中国传统文化的符号与建筑形态、元素与现代材质的巧妙兼柔之下,阐述者悠久的民族文化与特质,博大精深,源远流长
门厅,中轴对称的格局、方正的轮廓、中式的典雅与庄重,从设计的思考到空间的构思再到营建的过程,隐形的中国传统文化属性贯穿其中
门厅
楼梯
洽谈区
洽谈区,采用硬朗简洁的线条,体现空间的层次感,在帮助享受尊崇的交流空间而又不失礼节
总经理办公室,巧纳中国美学于空间构筑,呈现出极具尊贵价值感的空间气质
总经理办公室
会议室,宽敞、安静的办公环境,是一个企业决策和规划的核心所在,兼顾企业领导人的品格和风范,同时领略整个企业的文化及价值观,结合材料选择运用、色彩搭配以及家具造型的保守,在方正的空间,彰显气质的高贵与尊威
一层平面布置图,新中式风格,中国传统的装饰设计融合了庄重与优雅双重气质,表达了对清雅含蓄,端庄风华的东方式精神境界的追求
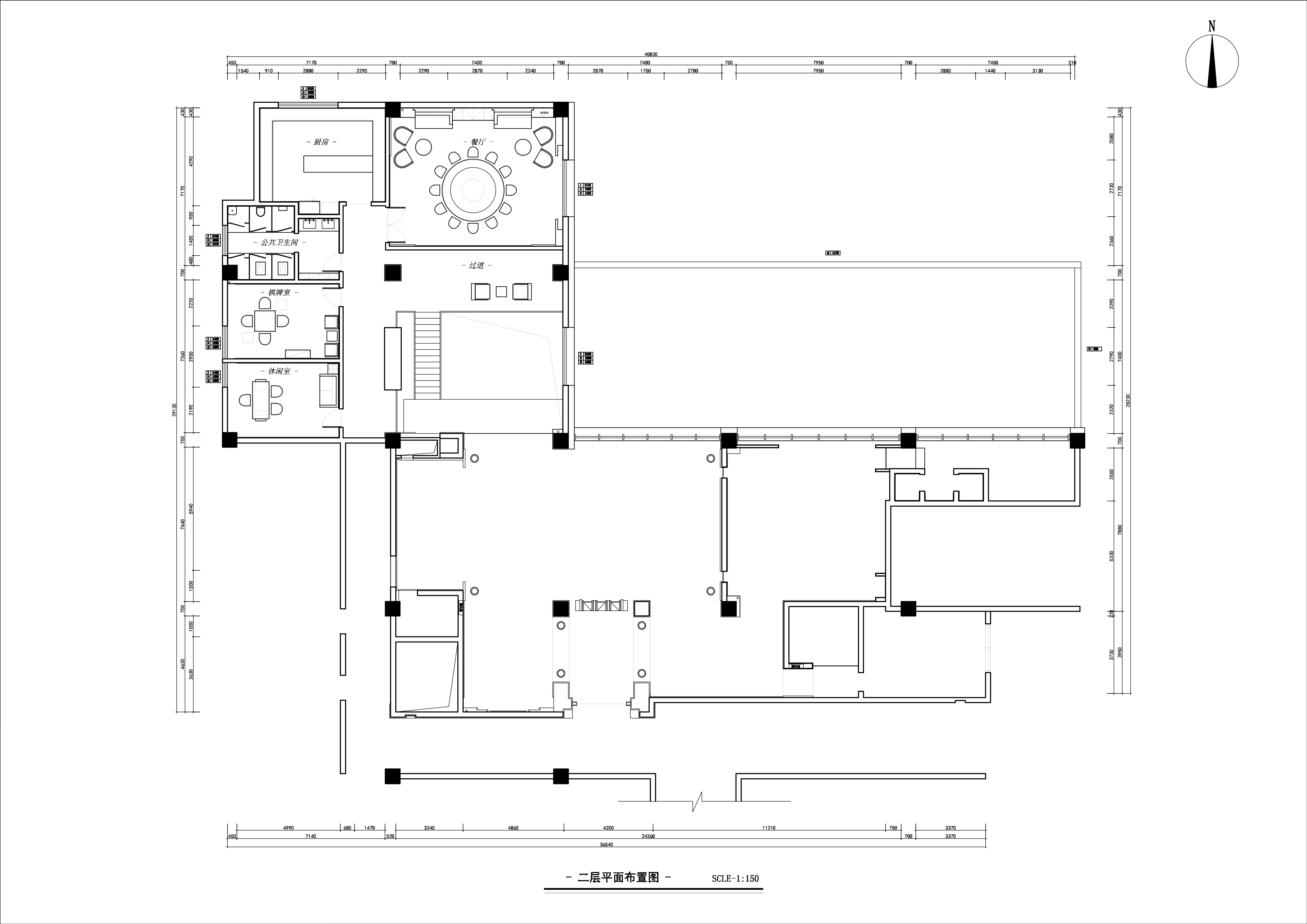
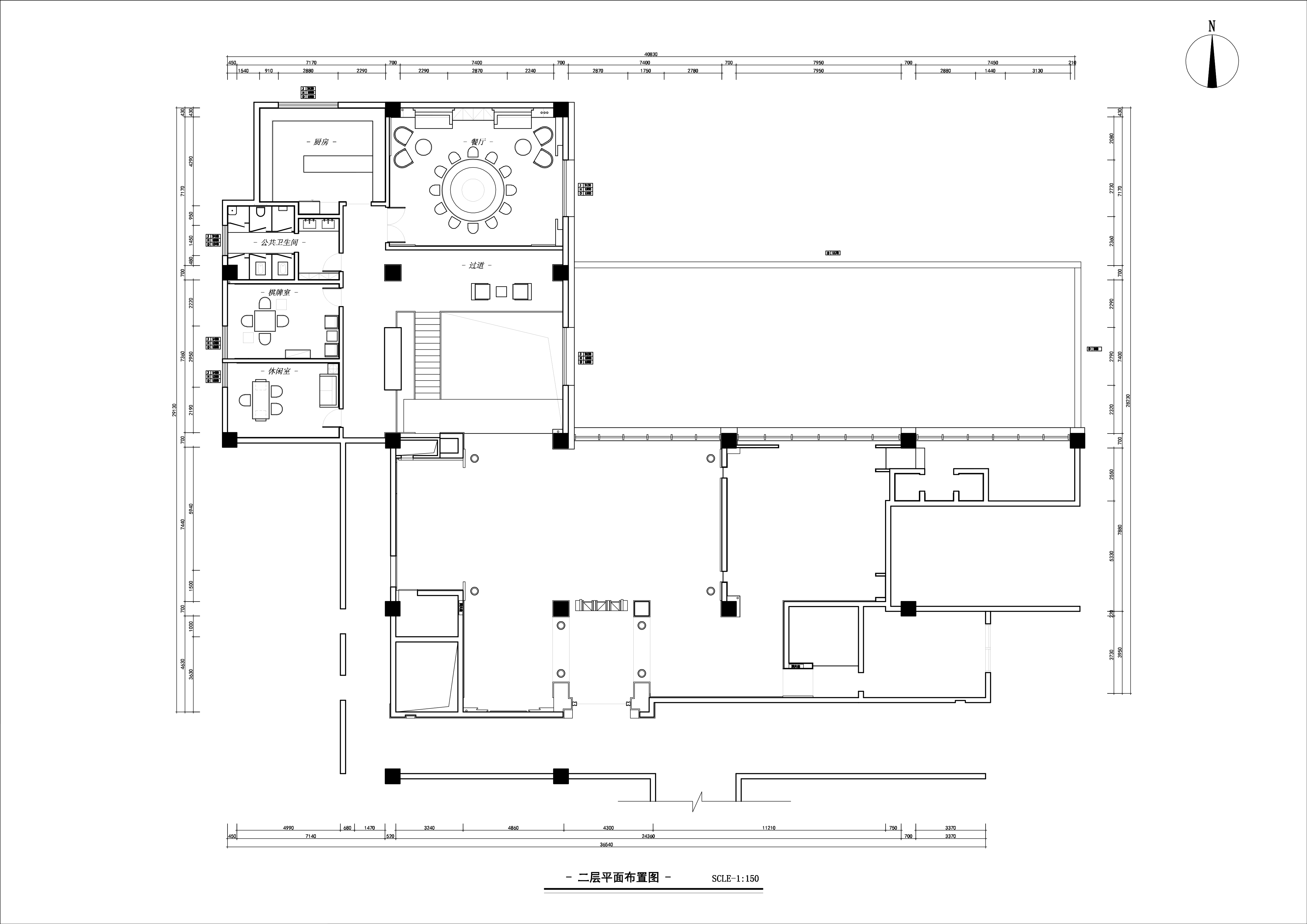
二层平面布置图
一层平面布置图,新中式风格,分为员工办公及总经理办公室,动静分区,充分利用采光,把最好的一面留给客户
办公室具有半会所形式,二层是餐饮及娱乐功能
0
0

认证 · 让您身份增值