简 盒
390
作品说明
- 项目类型:住宅公寓
- 项目地点:温州市
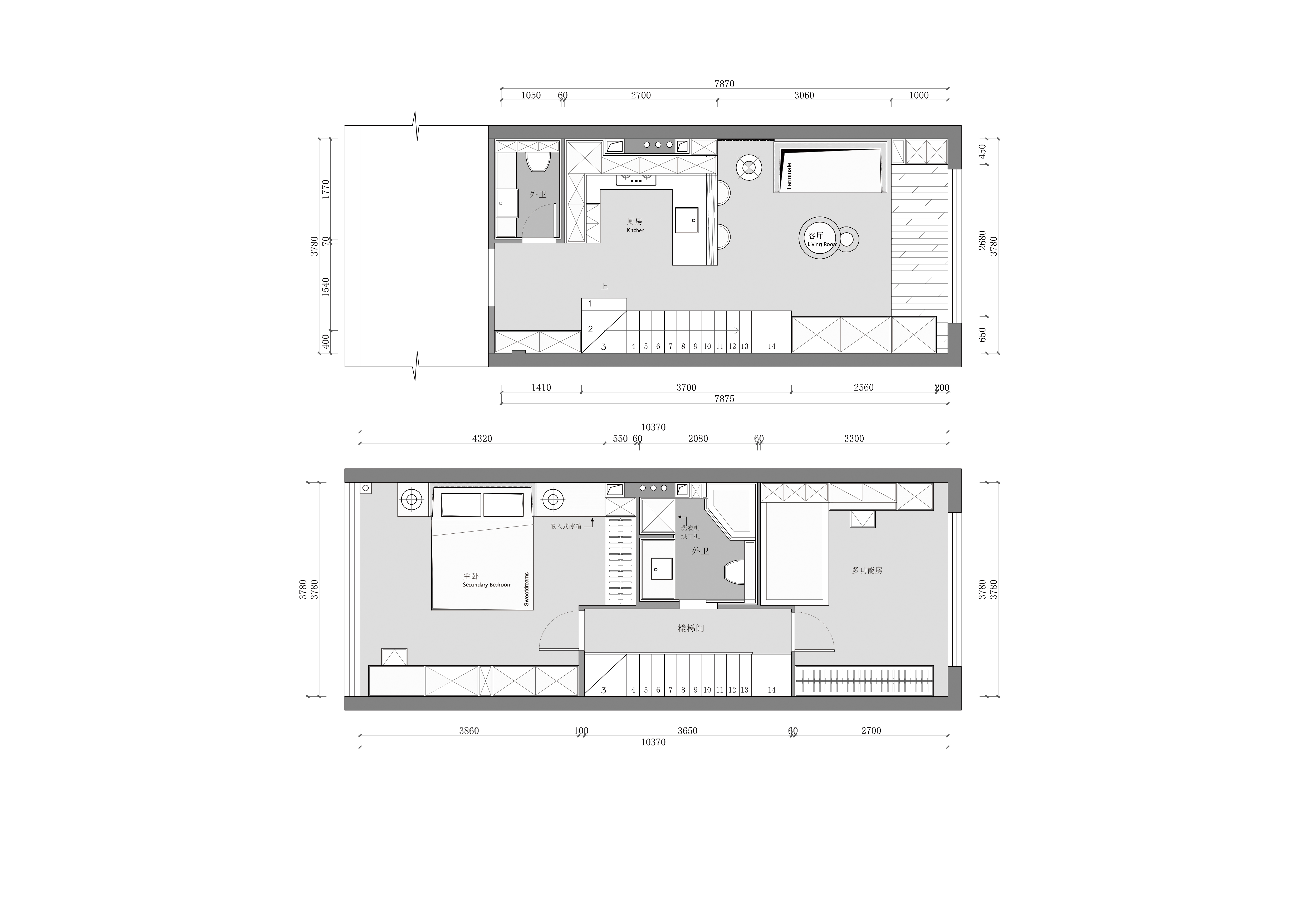
- 建筑面积:89㎡
- 项目造价:30万元
- 主案设计师:施敏敏
- 参与设计师:施敏敏
- 竣工时间:2021-01-10
- 设计机构:无
简是我用风格来对空间的定义 我希望可以呈现一个简单干净整洁的空间给到业主……盒就是盒子的意思,我希望设计的实质可以把无限多样的思考去呈现这样的一个居住盒子,让设计有意识地运用在普通的物体上和现象 室内动线是建立在人体尺寸以及业主的活动习性等一系列的基础上,打造一个舒适流畅的流线空间,前期的设计沟通不断的去揣摩理解空间与业主的关系,设计最重要的是以人为本…… 布局方式的空间方式也是对业主生活的理解,改变坐向,在沙发上沐浴阳光、阅读书籍的同时,抬头便可以看见西厨取食、或者工作的家人,增加家人之间的互动、情感。 空间采用暗色系为主,整体的空间是通过多功能的收纳去打造的整体生活区域,通过灯光柜子的形体变换打造区域的层次感,不至于显的空间非常压抑的感觉,因为需求的限制没有做独立的储藏室空间,而是采用就近储放物品的空间原则在一个89平方的空间区域打造出了40几个平方的大量收纳区域,比如进门的换鞋凳、放菜、包包,拖鞋等收纳空间,楼梯下面有大量的收纳杂物的区域,客人增加的方凳、吸尘器、兼容收纳厨房空间的破冰器、杯子等 来到客厅抬高区域有放置大衣跟茶具的功能区域,主卧室配置了大面积的衣柜弥补没有衣帽间的空缺,并且配置小水吧迷你嵌冰箱在空间中,整体的利用率达到空间的最大化……

认证 · 让您身份增值