煦暖
1655
作品说明
- 项目类型:住宅公寓
- 项目地点:温州市
- 建筑面积:180.0000㎡
- 项目造价:100.0000万元
- 主案设计师: 倪伟锋
- 参与设计师:项舒倩
- 竣工时间:2021-08-25
- 设计机构:NX设计
-
项目定位:家人的相聚,纯朴的日常,一处舒适的所在,就已充裕。就像《人生果实》影片里说的“在这种安心感中度过每一天,比什么都要美好”。
-
空间意境:宏观描摹日常空间,微观发掘品味轨迹,每一细节,都是独具一格的哲学,正是擅长透过倾听与沟通,贴近屋主日常的颐乐空间设计为此家宅所下的专属标记。
-
空间布局:设计追求舒适的极简主义,结合现代与经典,打破原始户型格局,归零再造。布局通透敞亮,整体硬装简洁干净。
-
设计选材:白色色调搭配木色主导空间。提升空间亮度 更显几分的温馨与宁静。
-
用户体验:这是一个室内的翻新项目,房子的主人是一对已经退休的夫妻。房屋最初是比较经典单侧采光的户型,设计师依据业主对功能需求改造了室内的结构次序,为室内创造出新的环境与功能。
厨房、客餐厅之间自由连接,起到各功能区之间的顺畅流转的作用,全景玻璃窗引进光线照射在沙发上,让其成为设计的一份子。设计追求整体对称协和的美感,橡木元素使眼睛在白色空间周围移动,营造出令人放心的温暖感和自然质感。
相片象征回忆,珍贵的东西总让人去珍惜,面对一个个全新的未来。不同陈设美学的碰撞,融合交汇的艺术符号,片刻之间醒悟生活之美。
精致的生活源自对细节的坚持,敞开式餐边柜,结合木饰面材质。颇有艺术层次的吊灯,结合出一个优雅舒适的就餐环境。
卧室内部是清静,舒心,安稳的。床头柜呈L形跟墙体结构相融合,无论是在大面积的外表还是在细节上。我们探寻纯粹和简洁。
房间里微微灯光稍稍衬映着,风吹薄纱,此际,窗外的景象与喧闹已成为配角。这一束火炽才是心灵的归宿。
卫生间区域整体采用灰色调搭配统一的材质,使空间更具整体性。它创造出了一种活泼的空间感。
通过榻榻米的形式解决卧室的问题,并衍生出一个休闲阅读区,区分了隐藏式独立收纳间。让空间保留了方正的格局,也避免了生活琐碎物件的困惑。
根据业主对居住功能与需求,书房采取弹性设计方式,加入翻板床便于运用空间,无论想要静心阅读办公,还是家人到访时都能在此做以利用。
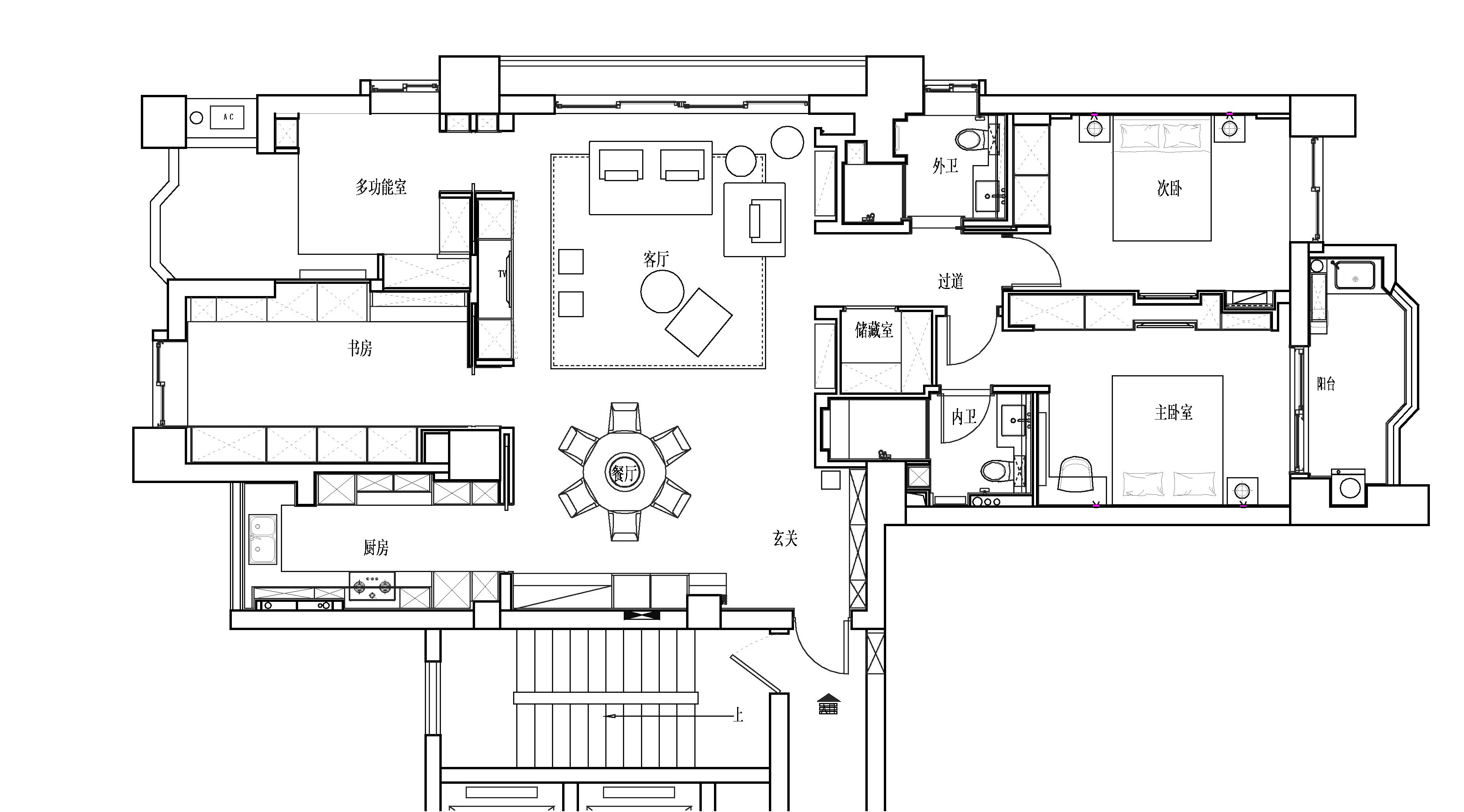
平面图
0
0

认证 · 让您身份增值