适简•纯悦



作品说明
- 项目类型:别墅
- 项目地点:温州市
- 建筑面积:500.0000㎡
- 项目造价:240.0000万元
- 主案设计师: 倪伟锋
- 参与设计师:项舒倩
- 竣工时间:2021-06-05
- 设计机构:NX设计
-
项目定位:舒适与简约并驾齐驱
身心的愉悦与生活的纯粹融于一体
是生活中美的释放
在忙碌的交叉路口独树一帜的轻松
是繁杂世界的点睛之笔
-
空间意境:有人曾说,生活有百分之十在于你如何塑造它,有百分之九十在于你如何对待它。百分百的愉悦是繁杂生活中于心底的潜藏。可以在设计上释放内心的追求与精神的自由,不负生活,生活也会有所馈赠。
-
空间布局:打开空间,让室内室外相连接,
透过公共区域可看到绿色植物近在眼前。
-
设计选材:亲近大自然,减少墙板,增加乳胶漆的范围。
多种植绿色植物,使人心墙开阔。
-
用户体验:喝茶区是使用率最高的区域,待客接人都在这里。
家人可以在客厅里放松,听音乐做自己想做的事情。
自带院落式的别墅,植物合理划分给予一定空间的留白,实现户外聚餐、娱乐,室内休息、居住二者并存的可能。
落地窗打开了空间的格局,视觉可及的范围被外扩延伸,曲折半包围的空间是一种不为外物掺杂的纯粹。黑白格调尽显清爽利落。角落的每一处点缀诉说着不同的心绪跃动。
没有层级错落的设计,却发挥光线直射的优势将空间包裹,规矩的空间在元素搭配上表达活动内容的不同。而色彩的遥相呼应,是一种兼容并包的深刻传达。
顶部线条的横冲直撞将空间分隔,无差别的地面仍旧维持区域的通透,圆弧的吊灯是柔软的一面,软化四周横竖曲折的线条所带来的锋利。
透明玻璃打破过道起承转合的沉默,适度的台阶层层递进,转折的空间保留自然光线的自由洒落。
完整的四方空间无法超越偶然的拐点带来的神秘,内嵌入式的落地窗将光线延伸传递,小范围的半封闭,增加区域多元化的可能性。
主卫宽敞的空间,部分突出的墙体将不同的功能区划分。柔和的光线被墙面吸收,冷漠与温暖交错。
外卫外口敞开式,干湿分离,小范围空间的合理规划。
一层平面图
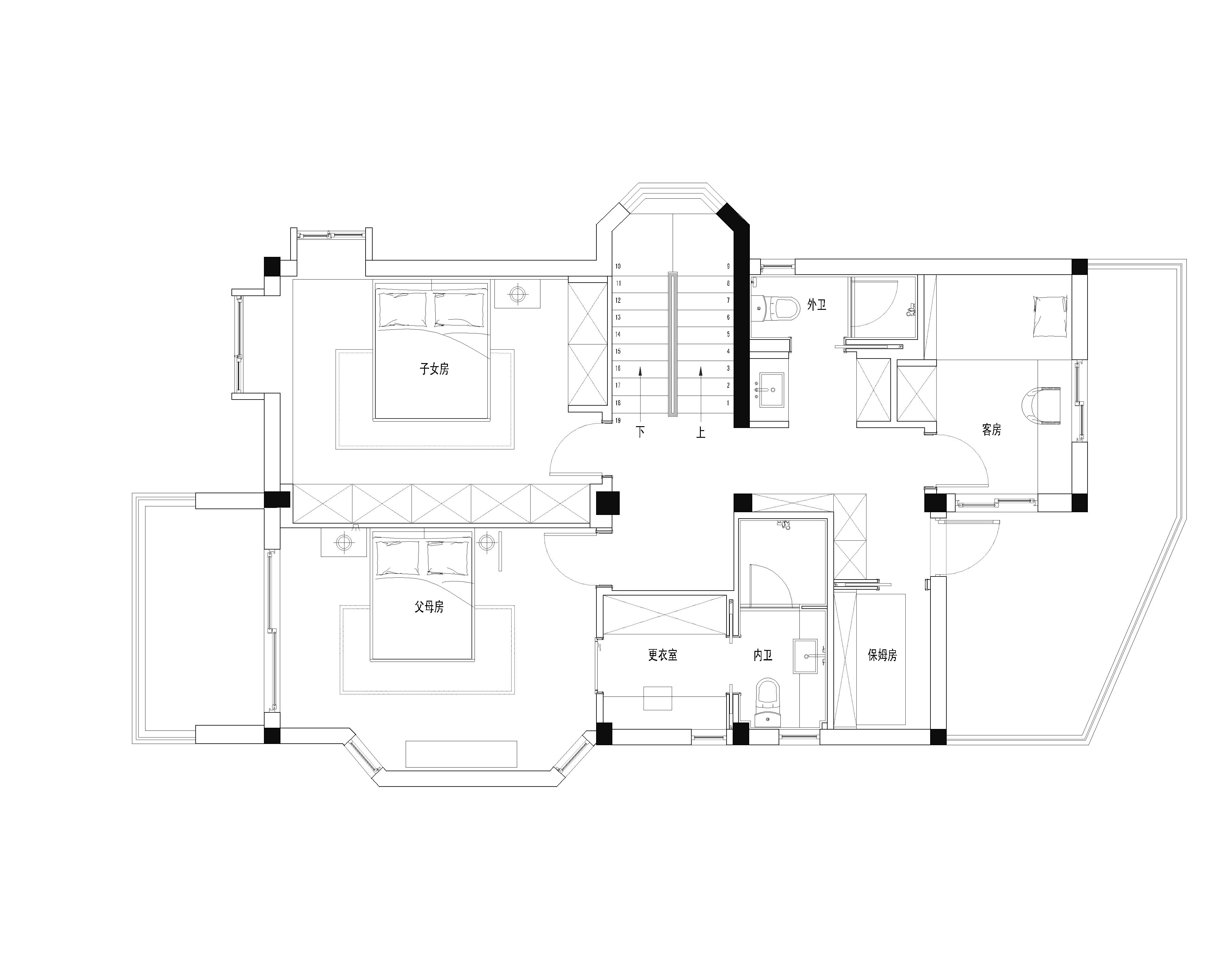
二层平面图
三层平面图

