越界
1062
作品说明
- 项目类型:零售
- 项目地点:马鞍山市
- 建筑面积:180.0000㎡
- 项目造价:120.0000万元
- 主案设计师: 张慧
- 参与设计师:李晓杰
- 竣工时间:2021-07-01
- 设计机构:南京原作空间设计
-
项目定位:项目地址位于马鞍山红星美凯龙商场内,整层的木质定制展厅同质化严重,独特而又贴近受众实际生活需求,是我们和甲方共同的目标。
-
空间意境:在不影响内部产品展示产品面积体量的基础上,外立面采用多维度多材料组合的形式,独树一帜。
-
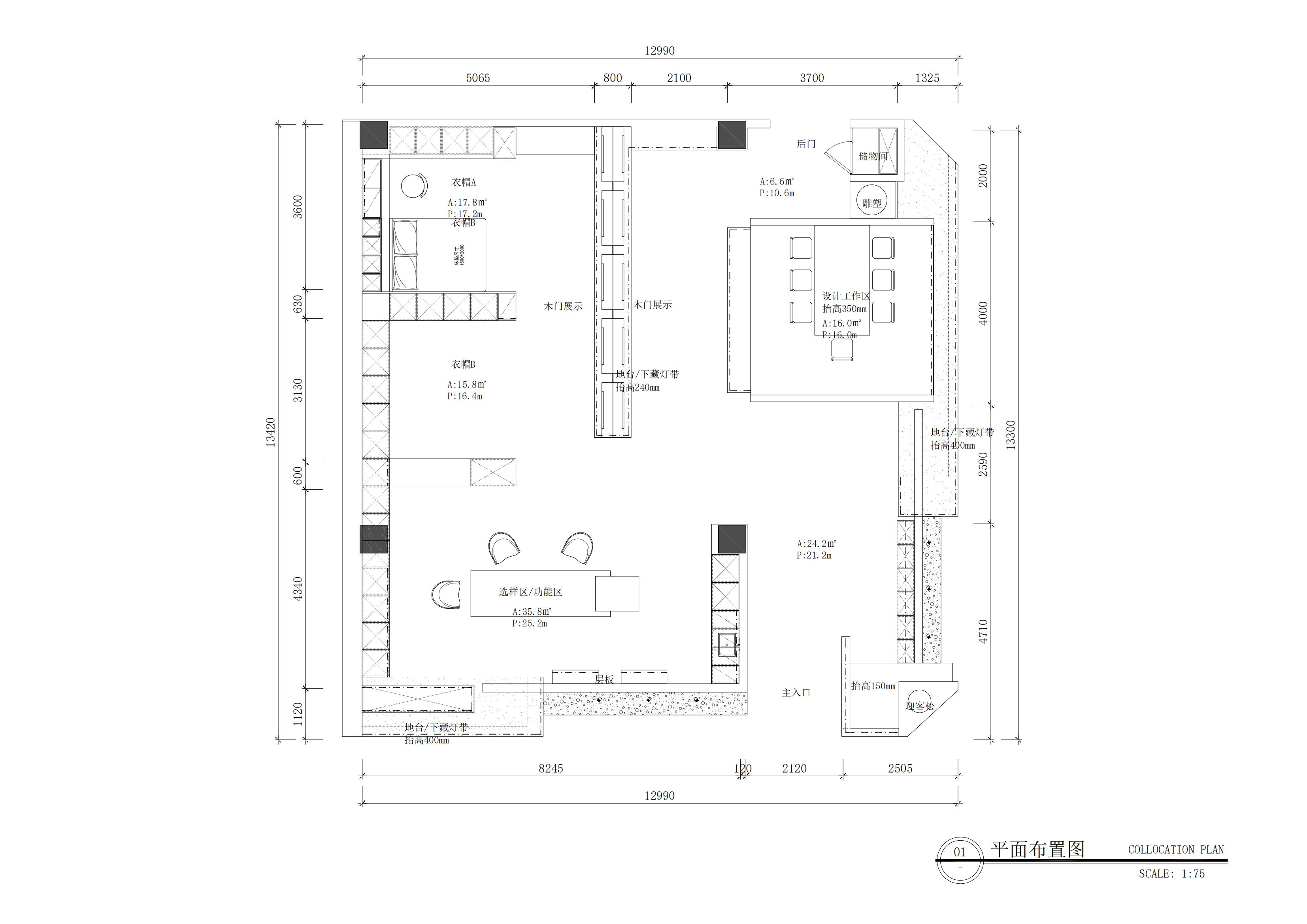
空间布局:空间排布考虑客群动线视角,一圈走下来,可以尽量多的了解甲方展示的产品。
-
设计选材:仿石板材及深色木饰面作为主要构件材料,部分混油产品混入期中,不锈钢反射材料的运用,建立变幻的光影关系。
-
用户体验:开业后因店面独特性和氛围签单的客户大幅增加。
本案位于马鞍山市红星美凯龙建材商场,整层的木作定制内商家同质化严重。独特而贴近受众的实际生活需求,是我们帮助建材供应商设计店面的主要目标。
甲方需要展示空间较多,展示、接待与交谈、服务,各个空间的协调组合,构建一个有互动有秩序的商业空间。
部分混油材质产品混入其中,整体调性沉稳、时尚。
部分混油材质产品混入其中,整体调性沉稳、时尚。
作为一个全木作展厅,难点集中在多品类呈现和如何统一调性不显凌乱的问题上。
甲方需要展示空间较多,展示、接待与交谈、服务,各个空间的协调组合,构建一个有互动有秩序的商业空间。
空间排布考虑客群动线视角,尽量多的可以一圈走下来,了解到甲方产品。
灰色空间、白色原石,融入舒适的灯光氛围,提升店面整体可视性和舒适感。
设置女性化衣帽间及多功能儿童房,考虑家庭成员的个性需求。
反射材质的运用,建立充满变幻的光影关系,微妙的视觉感受进而产生,无需浓烈的色彩演绎。
平面设计方案
0
0

认证 · 让您身份增值