融创岳未来样板间



- 项目类型:样板间/售楼处
- 项目地点:安庆市
- 建筑面积:133.0000㎡
- 项目造价:12.0000万元
- 参与设计师:李英、朴俊鹤、张晴
- 竣工时间:2021-03-01
- 设计机构:阖时建筑设计(上海)有限公司
-
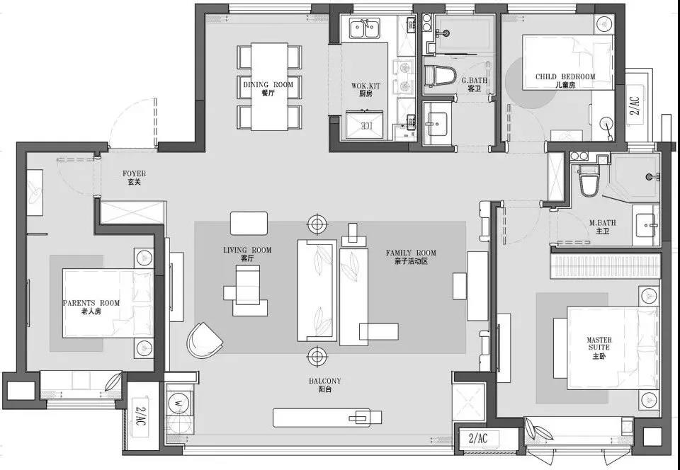
项目定位:业主夫妇对于空间尺度与功能性均有较高需求,原居住面积在120-130平左右,对小区规划及物业服务有着相对较高的品质要求,追求居住的功能性,希望能在户型内满足一家人的工作学习需求,并且对户型要求点较多,如房间采光面、南北通透、主卧功能性等。
设计师根据一家人的需求为偶尔有老人居住的一家三代设计了一套方案,帮助他们改善居住情况,一家人可以在温馨的小家里观察生活的点点滴滴,品味生活的芳香清醇。
几乎每一个男孩儿的童年都有一个关于赛车的梦想,他们幻想着那份惬意的驰骋和观众的尖叫。虽然梦想还没来得及实现,但是赛车手的生活氛围却可以轻松为他打造。
设计师为孩子实现了这个梦想,床头相框中各种赛车的海报,地上生动的跑道地毯,还有彩色拼接的墙纸,让孩子宛如置身于赛车比赛中。
家中的每一个墙角都是一个阅读、思考、独处的小空间,在这里你只属于你。1㎡的空间,放上小沙发、抱枕、边几,一个休闲区的呈现就是这么简单。
-
空间意境:电视背景墙在大面积大理石中融合了部分金属,二者结合有着浓烈的视觉感召力,在清新大气的氛围场景中,透露着一丝尊贵典雅。客餐一体化设计,一家人可以在任意空间无死角进行对话,其乐融融的聊着家长里短的事情。
我们人生三分之一的时光都将在睡梦中度过,所以卧室是一个人最后的避风港,也是每天的加油站,卧室内的环境情况会直接关系到一个人的休息和睡眠。作为家中最重要的房间之一,设计师选用沉稳舒适的色调,简洁的金属线条搭配灰色背景墙,视觉感上更加雅致,光线照进来,也会更加温暖自如。
老人房以素雅为主,颜色没有太过鲜艳跳跃,避免了老人在色彩鲜艳的空间内会觉得头晕目眩的问题。米色搭配大面积的灰色,安静又雅致,柔和朦胧的色调给人静谧的空间感受。
-
空间布局:客厅两侧均用纹理多样、外形冷艳的大理石墙面相互呼应,从常规的大理石视感出发,在本来就大气的大理石布局里简单加入金属元素,通常可以达到奇妙的效果。
为了避免增加一堵墙会使空间变得更局促压抑,设计师为孩子设计了一间开放式琴房,利用沙发作为隔段,将客厅一分为二,整个空间立马宽敞了许多,而且每天孩子刻苦练琴,爸爸妈妈都可以在客厅陪伴左右。午后的阳光洒泄而下时,爷爷奶奶听着孩子动听的钢琴声,妈妈在阳台的吧台上喝着下午茶,爸爸在沙发上捧着喜欢的小说。如此和谐的一家,还有何求。
主卧面积较大,设计师做了一面开放式衣柜,足够大的储物空间和舒适的更衣环境,与传统衣柜相比空气流通性更好,而且更加宽敞明亮。
阳台有一个迷你的小吧台,这是下午茶时光的绝佳小憩地点,不论窗外是阴雨连连还是阳光满满,家中都有这么一个小角落,容许我们慢下来享受生活,这就是幸福。
-
设计选材:本案整个空间材料以大地色系为主,高级灰的面料与皮革,以及金属、大理石的巧妙使用,提高空间品质。
-
用户体验:飘窗做了一面壁龛式柜体收纳,拿取自如非常方便,中间部分则设计成了舒适的休闲之地,平日里可以坐在这看看书、晒晒太阳,都是一种惬意的享受。
本案整个空间材料以大地色系为主,高级灰的面料与皮革,以及金属、大理石的巧妙使用,提高空间品质。
设计师根据一家人的需求为偶尔有老人居住的一家三代设计了一套方案,帮助他们改善居住情况,一家人可以在温馨的小家里观察生活的点点滴滴,品味生活的芳香清醇。
客厅两侧均用纹理多样、外形冷艳的大理石墙面相互呼应,从常规的大理石视感出发,在本来就大气的大理石布局里简单加入金属元素,通常可以达到奇妙的效果。
电视背景墙在大面积大理石中融合了部分金属,二者结合有着浓烈的视觉感召力,在清新大气的氛围场景中,透露着一丝尊贵典雅。
客餐一体化设计,一家人可以在任意空间无死角进行对话,其乐融融的聊着家长里短的事情。
为了避免增加一堵墙会使空间变得更局促压抑,设计师为孩子设计了一间开放式琴房,利用沙发作为隔段,将客厅一分为二,整个空间立马宽敞了许多,而且每天孩子刻苦练琴,爸爸妈妈都可以在客厅陪伴左右。午后的阳光洒泄而下时,爷爷奶奶听着孩子动听的钢琴声,妈妈在阳台的吧台上喝着下午茶,爸爸在沙发上捧着喜欢的小说。如此和谐的一家,还有何求。
主卧面积较大,设计师做了一面开放式衣柜,足够大的储物空间和舒适的更衣环境,与传统衣柜相比空气流通性更好,而且更加宽敞明亮。
我们人生三分之一的时光都将在睡梦中度过,所以卧室是一个人最后的避风港,也是每天的加油站,卧室内的环境情况会直接关系到一个人的休息和睡眠。作为家中最重要的房间之一,设计师选用沉稳舒适的色调,简洁的金属线条搭配灰色背景墙,视觉感上更加雅致,光线照进来,也会更加温暖自如。
几乎每一个男孩儿的童年都有一个关于赛车的梦想,他们幻想着那份惬意的驰骋和观众的尖叫。虽然梦想还没来得及实现,但是赛车手的生活氛围却可以轻松为他打造。
设计师为孩子实现了这个梦想,床头相框中各种赛车的海报,地上生动的跑道地毯,还有彩色拼接的墙纸,让孩子宛如置身于赛车比赛中。
家中的每一个墙角都是一个阅读、思考、独处的小空间,在这里你只属于你。1㎡的空间,放上小沙发、抱枕、边几,一个休闲区的呈现就是这么简单。
阳台有一个迷你的小吧台,这是下午茶时光的绝佳小憩地点,不论窗外是阴雨连连还是阳光满满,家中都有这么一个小角落,容许我们慢下来享受生活,这就是幸福。
飘窗做了一面壁龛式柜体收纳,拿取自如非常方便,中间部分则设计成了舒适的休闲之地,平日里可以坐在这看看书、晒晒太阳,都是一种惬意的享受。

