弘阳云玥美著售楼处



- 项目类型:样板间/售楼处
- 项目地点:南京市
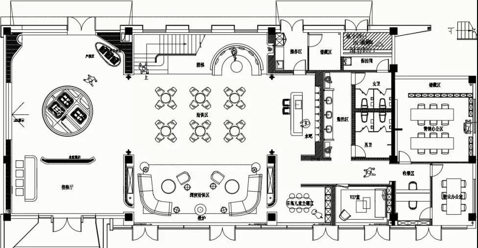
- 建筑面积:532.0000㎡
- 项目造价:170.0000万元
- 参与设计师:李英、朴俊鹤、王禕萍、张晴、李玲玲、赵雨歆
- 竣工时间:2021-01-01
- 设计机构:阖时建筑设计(上海)有限公司
-
项目定位:城墙脚下飘落一地的树叶定会引起你无限的遐想,看岁月花在风中摇曳着轻盈,听繁华似锦的世间美好, 感受生命在不经意的平淡中轮回。这是一处由金陵文化筑起的有声有色、有设计文化概念的 < 南京府 >。
设计师提取金陵文化元素,与自然魅力相结合,利用激情热烈的色彩,打破人们对金陵文化产生的传统印象。让我们开启时空大门,一起聆听云锦与绒花共同演绎的中华传奇文化之曲。
看那一场繁花似锦的盛宴,在自然与繁华的城市之间寻找平衡,这是一个让人们沉浸在艺术室内场景中,同时亲近自然的空间。
在元朝的科学界,郭守敬绝对是排名第一的学术大咖。他上知天文下知地理,研究领域还涉及到机械制造、农耕水利、物理数学等学术领域。并在古今中外都有一大帮铁粉,他的名气从地球传到了月球,名字被国际天文学会用来命名小行星和月球上的一座环形山。理工男的浪漫,就是制造出一台浑天仪,如今他创造的浑天仪被陈列在中国自己建立的第一个现代天文学研究机构——紫金山天文台内。儿童房根据紫金山天文台延伸,以梦幻星球为主题,力求给孩子们一个充满神秘感与活力的空间。
-
空间意境:设计师提取绒花的渐变色彩,将渐变橘色系融入空间内,在为空间注入一丝活力的同时,也寓意着吉祥富贵。
即使只是零星橘色,也能在空间中妙不可言。橘色调的沙发墙与整体软硬搭配都在同一个色系内,看着非常自然舒适。
流动,一种有趣的介质,静则宁心,动则万象,在不断的变化中延伸出无尽的美感。沙盘区顶部艺术装置灯提取一丝一缕的金陵云锦元素,由长短不一的渐变色玻璃灯管构成了一个圆柱体。与其他底色和自然光的材料一起,它们使空间成为一个好客、热情、包容和多方面的地方。
城墙脚下飘落一地的树叶定会引起你无限的遐想,看岁月花在风中摇曳着轻盈,听繁华似锦的世间美好, 感受生命在不经意的平淡中轮回。这些结构悬浮在空中,减少了天花板和地面之间的距离,更有温馨的氛围感,并提供了一种色彩和活力。
暖光打在黄铜制作的灯饰上,金属的光泽感被一览无余的呈现出来。
-
空间布局:藏在角落的水滴状渐变艺术装置,设计师无意引起视觉愉悦或触觉体验。其原因是为了刺激欲望,引诱人们对物体的感官渗透,从更私密和主观的地方感知它所展现的情感。
私密的VIP洽谈区摆放着装在渐变喷漆的金属花瓶中,以及橘色的单人沙发椅和靠枕,与外部区域进行主题呼应。 -
设计选材:温暖的橘色地毯,选用了白色皮质沙发进行中和,不仅没有沉闷感,反而使空间更加具有轻松活力的氛围。
提取云锦的抽丝元素,利用一条条染成橘色的竹条编成的圆形艺术挂画也与其形似,暖光带将挂画围合起来,光源打在上面形成了主题渐变色,又为它赋予了额外的照明功能。
为了使透过的光源更加柔和,设计师选用酒红色玻璃灯罩,温柔暧昧的光线反射在古铜色金属饰面上,迸发出橘红色的光芒,与主色调相呼应。
提到紫金山,人们总是很容易联想到岩石与金属,设计师基于此特性从不同金属中筛选出与橘色最搭配的黄铜,并把它融入充满着木饰面与大理石岩板的空间的各个角落。
没有过于花哨的设计,简简单单的金属线条,突出建筑本身的硬线条感,主要靠软装来实现温馨感,体现出了工业美学的炫酷。
在材质方面,石材与原木交相辉映、金属与皮质相融相和,而对空间环境的营造、细节的处理,则直接透露出空间的气质与神韵。
-
用户体验:即使只是零星橘色,也能在空间中妙不可言。橘色调的沙发墙与整体软硬搭配都在同一个色系内,看着非常自然舒适。
温暖的橘色地毯,选用了白色皮质沙发进行中和,不仅没有沉闷感,反而使空间更加具有轻松活力的氛围。
一座城市,一本书,南京这座城市的故事,都刻画在的斑驳牌匾上。自北枕长江,南襟秦淮河,商贾云集,船帆蔽日;大运河孕育了江阴经济的千年繁盛,也承载着南京人民世世代代的古老记忆。古老的地域山水,成为南京最具有代表性的岁月印记。
绒花在康熙、乾隆年间盛极一时。造型上,可与真花媲美,经久不衰;寓意上,绒花谐音“荣华”,具有吉祥祝福之意。南京绒花的色彩以大红、粉红为主,中间辅绿,间以黄色点缀,显得明快富丽。
如今,还有手艺人用绒花代替点翠工艺,以丝绒质感模拟出翠羽光泽,还能表现出其他仿点翠材质做不到的色彩渐变。设计师根据绒花的这一特点,提取绒花的渐变色彩,将渐变橘色系融入空间内,在为空间注入一丝活力的同时,也寓意着吉祥富贵。
即使只是零星橘色,也能在空间中妙不可言。橘色调的沙发墙与整体软硬搭配都在同一个色系内,看着非常自然舒适。
温暖的橘色地毯,选用了白色皮质沙发进行中和,不仅没有沉闷感,反而使空间更加具有轻松活力的氛围。
藏在角落的水滴状渐变艺术装置,设计师无意引起视觉愉悦或触觉体验。其原因是为了刺激欲望,引诱人们对物体的感官渗透,从更私密和主观的地方感知它所展现的情感。
仔细观察,就连灯饰也特意选用了橘色与黄色两种色彩来呼应主题。
流动,一种有趣的介质,静则宁心,动则万象,在不断的变化中延伸出无尽的美感。沙盘区顶部艺术装置灯提取一丝一缕的金陵云锦元素,由长短不一的渐变色玻璃灯管构成了一个圆柱体。与其他底色和自然光的材料一起,它们使空间成为一个好客、热情、包容和多方面的地方。
城墙脚下飘落一地的树叶定会引起你无限的遐想,看岁月花在风中摇曳着轻盈,听繁华似锦的世间美好, 感受生命在不经意的平淡中轮回。这些结构悬浮在空中,减少了天花板和地面之间的距离,更有温馨的氛围感,并提供了一种色彩和活力。
同样提取云锦的抽丝元素,利用一条条染成橘色的竹条编成的圆形艺术挂画也与其形似,暖光带将挂画围合起来,光源打在上面形成了主题渐变色,又为它赋予了额外的照明功能。
为了使透过的光源更加柔和,设计师选用酒红色玻璃灯罩,温柔暧昧的光线反射在古铜色金属饰面上,迸发出橘红色的光芒,与主色调相呼应。
设计师从不同金属中筛选出与橘色最搭配的黄铜,并把它融入充满着木饰面与大理石岩板的空间的各个角落。
没有过于花哨的设计,简简单单的金属线条,突出建筑本身的硬线条感,主要靠软装来实现温馨感,体现出了工业美学的炫酷。
在材质方面,石材与原木交相辉映、金属与皮质相融相和,而对空间环境的营造、细节的处理,则直接透露出空间的气质与神韵。
暖光打在黄铜制作的灯饰上,金属的光泽感被一览无余的呈现出来。
暖光打在黄铜制作的灯饰上,金属的光泽感被一览无余的呈现出来。
私密的VIP洽谈区摆放着装在渐变喷漆的金属花瓶中,以及橘色的单人沙发椅和靠枕,与外部区域进行主题呼应。
设计师根据Othoniel的玻璃艺术作品,用做旧喷漆的金属槽钢设计了一款独特的铁制艺术装置,迷人的美学围绕情感几何的概念展开,并与周遭环境融为一体。
儿童房根据紫金山天文台延伸,以梦幻星球为主题,力求给孩子们一个充满神秘感与活力的空间。

