时光的过客



作品说明
- 项目类型:住宅公寓
- 项目地点:常州市
- 建筑面积:183.0000㎡
- 项目造价:190.0000万元
- 主案设计师: 苏秀
- 竣工时间:2020-12-23
-
项目定位:以木质调搭配纯白色调,构筑成古色古香的客厅空间。木制大方几与古典纹路的地毯相映成趣,仿佛散发无限禅意。
-
空间意境:餐厨空间功能性和谐而统一。木制与皮质的混搭,在古典韵味中摩擦出底蕴。一面纯白、一面纯木,相互衬托出新颖的质感。
-
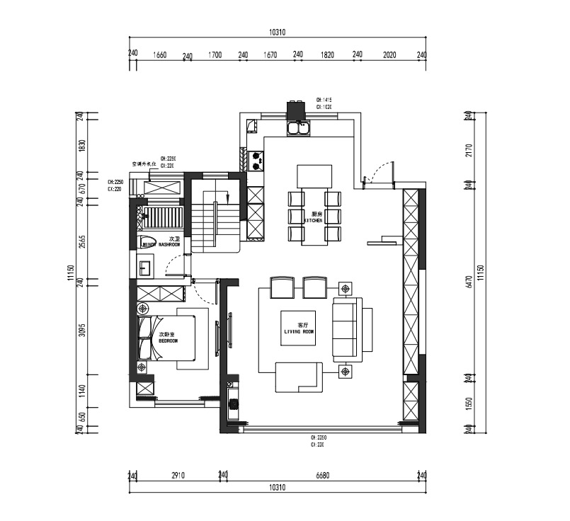
空间布局:
“为了提炼出一个清晰的观点,我需要充足的睡眠、贪婪地阅读、修炼者一样地冥想、不跟任何人解释我在干嘛”Nassim Taleb如是写道。而阅读空间的设立,正迎合了这样的愿望。 -
设计选材:木椅、木桌、木柜,组合成一派充满古典气质的写意画。品茗区里,茶氛、古香相融交错,颇具风格。
-
用户体验:
不同卧室空间,渲染不一样的色彩,突出个人风格,跳出思维定势。有蔚蓝色的天空,有深邃的海洋,有幽静的树林,有广阔的草原……蓝色与棕色组合成不同的画面,带来前所未有的通感。
屋内的角落是思想的沙龙,灵魂的居所。在透光的、明亮的角落里,尽情享受只属于自己的天地。
木椅、木桌、木柜,组合成一派充满古典气质的写意画。品茗区里,茶氛、古香相融交错,颇具风格。
走进私密的衣橱空间,又是一番新天地。白色与黄色的灯光交替,制造目眩神迷的神秘气息。
走进私密的衣橱空间,又是一番新天地。白色与黄色的灯光交替,制造目眩神迷的神秘气息。
木椅、木桌、木柜,组合成一派充满古典气质的写意画。品茗区里,茶氛、古香相融交错,颇具风格。
木椅、木桌、木柜,组合成一派充满古典气质的写意画。品茗区里,茶氛、古香相融交错,颇具风格。
“闲敲棋子落灯花”的闲适,想必在一杯茗茶中可以品味。
“闲敲棋子落灯花”的闲适,想必在一杯茗茶中可以品味。

