随性浪漫 · 如呼吸般自由的中古氛围



- 项目类型:住宅公寓
- 项目地点:常州市
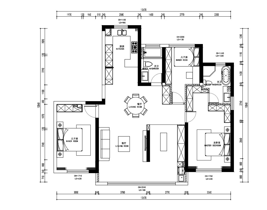
- 建筑面积:150.0000㎡
- 项目造价:100.0000万元
- 主案设计师: 苏秀
- 参与设计师:葛浩宁 、承凡一
- 竣工时间:2020-12-21
- 设计机构:海航设计
-
项目定位:中古浪漫的风格,满足生活需求外,需要一个充满童真童趣的玩乐区,就为亲子的互动制造了快乐境地。
-
空间意境:克莱因蓝是流行的趋势,姜黄色与其色彩的碰撞,摩擦出年轻的活力感,让沙发的休憩角落,摆脱沉闷。轻松的中古氛围,带来复古的呼吸感,仿佛穿越上世纪的浪漫。
-
空间布局:宽敞的空间如浩瀚无垠的宇宙,步入空间的我们,如同漫步月球的宇航员,品味其中种种曼妙风景。每一处生活的浪漫,都需要我们用心去感受。
-
设计选材:以木质和藤椅相互呼应,像是回到小时候外婆家围坐一堂的美好记忆。
-
用户体验:像是长途跋涉的生活旅行家,历遍千山万水之后,更向往温暖的家的港湾。
宽敞的空间如浩瀚无垠的宇宙,步入空间的我们,如同漫步月球的宇航员,品味其中种种曼妙风景。每一处生活的浪漫,都需要我们用心去感受。
宽敞的空间如浩瀚无垠的宇宙,步入空间的我们,如同漫步月球的宇航员,品味其中种种曼妙风景。每一处生活的浪漫,都需要我们用心去感受。
宽敞的空间如浩瀚无垠的宇宙,步入空间的我们,如同漫步月球的宇航员,品味其中种种曼妙风景。每一处生活的浪漫,都需要我们用心去感受。
厨房的小角落,是孩童趁妈妈不注意,偷吃一口晚饭的最佳用餐处。灯光、高脚凳浑然一派小酌谈心的小天地 。
克莱因蓝是流行的趋势,姜黄色与其色彩的碰撞,摩擦出年轻的活力感,让沙发的休憩角落,摆脱沉闷。轻松的中古氛围,带来复古的呼吸感,仿佛穿越上世纪的浪漫。
厨房的小角落,是孩童趁妈妈不注意,偷吃一口晚饭的最佳用餐处。灯光、高脚凳浑然一派小酌谈心的小天地 。
充满中式水墨画风情的卧室,以红蓝为主色调,搭配金属质感,更显风韵。
充满中式水墨画风情的卧室,以红蓝为主色调,搭配金属质感,更显风韵。
洗浴空间慵懒而舒适,既与卫生间似有若无的隔离开,也更显融合复古。
乐高墙专为家中孩童定制,不用去波波池,不用去亲子乐园,只需要一个充满童真童趣的玩乐区,就为亲子的互动制造了快乐境地。
克莱因蓝是流行的趋势,姜黄色与其色彩的碰撞,摩擦出年轻的活力感,让沙发的休憩角落,摆脱沉闷。轻松的中古氛围,带来复古的呼吸感,仿佛穿越上世纪的浪漫。
厨房的小角落,是孩童趁妈妈不注意,偷吃一口晚饭的最佳用餐处。灯光、高脚凳浑然一派小酌谈心的小天地 。
克莱因蓝是流行的趋势,姜黄色与其色彩的碰撞,摩擦出年轻的活力感,让沙发的休憩角落,摆脱沉闷。轻松的中古氛围,带来复古的呼吸感,仿佛穿越上世纪的浪漫。
木质、绿植、铁质、玻璃、陶瓷……不同材质的混搭,在灯光的照耀下竟然不显得偏差,反倒形成大融合的和谐场景,柔和美丽 。
一个充满童真童趣的玩乐区,就为亲子的互动制造了快乐境地。
木质、绿植、铁质、玻璃、陶瓷……不同材质的混搭,在灯光的照耀下竟然不显得偏差,反倒形成大融合的和谐场景,柔和美丽 。
绿植的点缀是点睛之笔。就餐区域返璞归真,以木质和藤椅相互呼应,像是回到小时候外婆家围坐一堂的美好记忆。
乐高墙专为家中孩童定制,不用去波波池,不用去亲子乐园,只需要一个充满童真童趣的玩乐区,就为亲子的互动制造了快乐境地。
绿植的点缀是点睛之笔。就餐区域返璞归真,以木质和藤椅相互呼应,像是回到小时候外婆家围坐一堂的美好记忆。

