龙湖香缇璟宸 · 优雅的医生之家


- 项目类型:私宅
- 项目地点:西安市
- 建筑面积:143.0000㎡
- 项目造价:680000.0000万元
- 参与设计师:王玮
- 竣工时间:2021-06-01
- 设计机构:西安木赢设计公司
-
项目定位:当严谨和理性的人格特质,成为职业的必然要求,对个人居家生活的塑造会产生什么化学反应?在一对医生夫妇的家里,我们找到了一个有趣的答案。
长时间和手术仪器打交道,在生活里难免生出一些「强迫症」。不像大多数人强调家空间的艺术性、极简和功能性,他们希望空间足够严丝合缝,融洽是他们认可的治愈力,是理想之家的必备品。与木赢设计的沟通也出人意料的合拍。纯粹的日式风因为过于简洁少了些烟火气,于是空间融入现代元素来平衡意境,理性之外又多了一份俏皮的优雅。
-
空间意境:在这个家空间,一进门,视线就会自动落在客厅,客厅的设计也是最能代表主人品味的一部分。选用浅色沙发、不规则茶几、趣味单椅,搭配木地板和灰色瓷砖,勾勒出一个有利于互动交流的会客区,灵活又舒适。
-
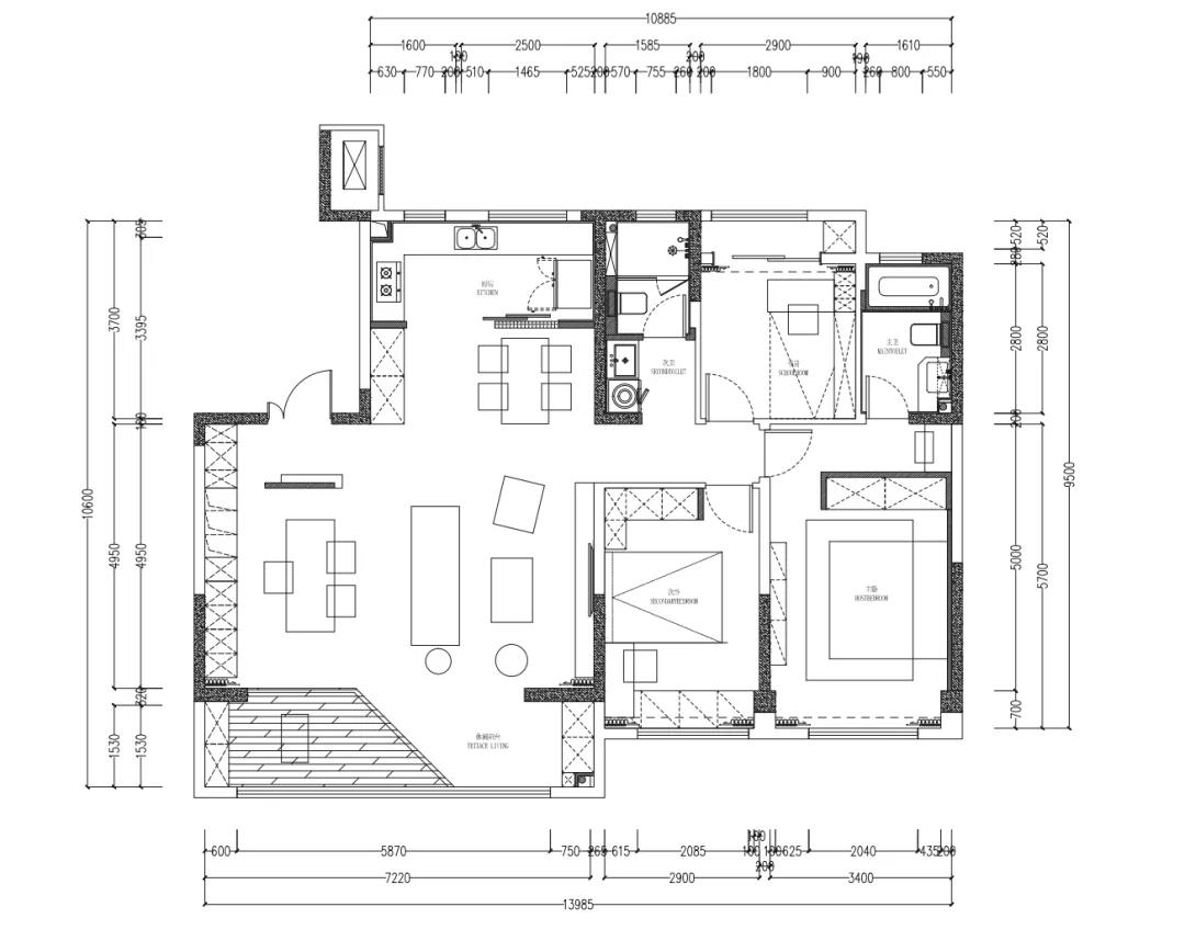
空间布局:标准的三室两厅格局,原始户型把餐厅和厨房分割开来,导致了两个空间都很狭窄,也十分影响用餐功能,添加了许多不必要的麻烦。
-
设计选材:用木板+大理石拼接做电视墙背景,增加了一部分工业现代感的同时,与旁边柔和的绿植和流动的窗帘形成视觉对比。
-
用户体验:满意
当严谨和理性的人格特质,成为职业的必然要求,对个人居家生活的塑造会产生什么化学反应?在一对医生夫妇的家里,我们找到了一个有趣的答案。 长时间和手术仪器打交道,在生活里难免生出一些「强迫症」。不像大多数人强调家空间的艺术性、极简和功能性,他们希望空间足够严丝合缝,融洽是他们认可的治愈力,是理想之家的必备品。与木赢设计的沟通也出人意料的合拍。纯粹的日式风因为过于简洁少了些烟火气,于是空间融入现代元素来平衡意境,理性之外又多了一份俏皮的优雅。
尽管平时工作十分忙碌,但业主希望周末能在家享受烹饪的乐趣和一家人其乐融融的氛围,所以设计师在重新考虑户型打造时,就以打造开阔舒适的感觉为出发点。
入户处深灰色大理石柱十分抢眼,搭配半透明的玻璃,线条简洁又充满趣味,长虹玻璃材质和餐厅的呼应,让光线流动起来,简练之中不乏品质感。横版上放置了偏日系的花瓶,纹理清爽、颜色自然,透过材质本身传达出温润的空间感受。横版设计巧妙地兼顾了多种功能,可作为置物架也可充当换鞋凳,简约又节省空间。
在这个家空间,一进门,视线就会自动落在客厅,客厅的设计也是最能代表主人品味的一部分。选用浅色沙发、不规则茶几、趣味单椅,搭配木地板和灰色瓷砖,勾勒出一个有利于互动交流的会客区,灵活又舒适。 用木板+大理石拼接做电视墙背景,增加了一部分工业现代感的同时,与旁边柔和的绿植和流动的窗帘形成视觉对比。真皮质感的主沙发,呈现一抹亮色,搭配不规则的独立小沙发,增加空间活泼轻盈的感觉。灰色茶几和一排米色柜体既充当储藏柜,又作为沙发的背景墙,让空间动线自然流动。
客厅与外界的联系依靠大大的落地窗,选用了材质轻盈的白纱帘,光线和景色透过纱帘进入视野,夏日起风时,光影随行,虚实变化,朦胧的美感跃然于整个空间。 除了绿植点缀,客厅的墙面并没有多余的装饰,简洁流畅的线条感,也是屋主喜欢的恰到好处的「融洽」。
打掉一堵墙之后的餐厨空间宽敞开阔了许多,与客厅和入户区连通,使得这三个相对独立的空间连接起来,动线更加流畅。餐桌选用了深棕色的木板,覆盖了一层玻璃,充满质感的同时更容易清洁,进一步满足了视觉需求和功能需求,提升了生活的仪式感和品质感。餐厅和厨房之间采用和入户区相同材质的长虹玻璃,半透明的推拉门呼应空间的一致性,精致通透,既能隔绝油烟,也能使原本逼仄的空间显得开敞宽阔。
主卧是主人最看重的区域,放松、休息、充电都在这里进行,节奏感慢了下来,对主卧的设计重点自然落到了营造氛围感和仪式感上。 主卧的功能分区交给了「灯」这个元素。明亮的色彩格调对线条进行了细腻的刻画,在一侧的床头柜上,置入一盏香薰灯,营造出了慵懒闲适的氛围。另一侧则选用了工业风的吊灯,理性归来,随时调节情绪节奏。在连接主卧的卫浴空间里,设计师将洗漱、如厕、淋浴等功能区做了融合设计,不算宽敞的空间里能满足多种需求。同时,在浴室侧面嵌入一面高柜,收纳浴巾、浴袍、洗浴日用品等,美貌又实用。而大浴缸安排在窗边,卸下一天疲惫,可以惬意地泡澡享受。
书房是「以理性去治愈」的空间,整体规划得比较克制。米色书桌搭配黑色书椅,视觉感与颜值兼并,桌上摆放的水生植物也空气变得安静清新。在右侧的书柜上取下一本书亦或与三两知己围坐交流,度过思考者最享受的时光。从功能上来看,书房还设计有下拉的隐藏床,可以满足偶尔到来的客人或者老人居住。
医生之家透露出的严谨理性之美,把简约和冷静设计成一种生活,却又在微处显得温柔可爱,用空间让家人保持同频,是屋主的理性赋予优雅生活的「魔力」。对家的理解是从细节出发的,正是细节的不同,才让每个家都拥有了不一样的治愈力。

