枕水花园私宅 | 捕捉即刻的宁静



- 项目类型:住宅公寓
- 项目地点:银川市
- 建筑面积:170.0000㎡
- 项目造价:90.0000万元
- 主案设计师: 李阳
- 参与设计师:王新亮
- 竣工时间:2021-05-12
- 设计机构:宁夏半舍一间装饰设计工程有限公司
-
项目定位:设计定位:原木的味道。在功能平衡的基础上,考虑空间的尺度,人性的关怀,释放压力将自然引进室内,空间漫游式的体验,从未来价值考虑空间的可塑性
-
空间意境:日式表达了一种禅,如果想要达到这种感觉,应该从中性调色板中选择日本家居设计颜色。
环顾四周的自然色彩,选择柔和的色调,可以勾勒出空间并创造出特殊的角落。
日式的禅文化正是利用这样的角落、自然光、材料和负空间去创造一个空间,让能量流过它。
(负空间:就是平面构成里的正负形同构,学设计的同学对正负形构成一定不会陌生,
早在1915年鲁宾(Rubin)创造出经典的“鲁宾杯”这一作品开始,反转图形或者说是负空间设计逐渐进入大家的视野)。
正是自然光的引入和植绿的调和产生这样独特的味道。 -
空间布局:在功能平衡的基础上,考虑空间的尺度,人性的关怀,释放压力将自然引进室内,空间漫游式的体验,从未来价值考虑空间的可塑性
-
设计选材:锯齿橡木,天然藤编,棉麻,艺术涂料,剑麻、水泥砖
-
用户体验:客户全家入住三个月后给我们反馈,功能合理,舒适,两个孩子都很喜欢自己的房间,生活方便而且幸福感很高,家人会经常在西厨聚餐,茶室是全家人最喜爱的空间,一家人会在周末窝在茶室的榻榻米上一起投屏看一部电影,爸爸最喜欢他的厨房空间,爱烹饪的他觉得使用非常方便,妈妈觉得全房的收纳空间做的很好,家里不在凌乱,储物空间非常强大。
餐厅:中厨、西厨和餐厅进行合并,厨柜一分为2,既满足中厨的日常烹饪,同时也分割出一个西厨的功能区间,全家人很喜欢一起做饭,一起聊天,这样的格局变动不仅给功能上增加实用性,最大的目的是通过西厨吧台与餐桌的联系,扩大餐厅的空间感。餐厅的空间和客厅形成一个整体。
客厅,日式表达了一种禅,如果想要达到这种感觉,应该从中性调色板中选择日本家居设计颜色。 环顾四周的自然色彩,选择柔和的色调,可以勾勒出空间并创造出特殊的角落。 日式的禅文化正是利用这样的角落、自然光、材料和负空间去创造一个空间,让能量流过它。
客厅:释放压力将自然引进室内,空间漫游式的体验,从未来价值考虑空间的可塑性
客厅:释放压力将自然引进室内,空间漫游式的体验,从未来价值考虑空间的可塑性
客厅:释放压力将自然引进室内,空间漫游式的体验,从未来价值考虑空间的可塑性
客厅:释放压力将自然引进室内,空间漫游式的体验,从未来价值考虑空间的可塑性
餐厅:中厨、西厨和餐厅进行合并,厨柜一分为2,既满足中厨的日常烹饪,同时也分割出一个西厨的功能区间,全家人很喜欢一起做饭,一起聊天,这样的格局变动不仅给功能上增加实用性,最大的目的是通过西厨吧台与餐桌的联系,扩大餐厅的空间感。餐厅的空间和客厅形成一个整体。
茶室:我想拥有一间茶室,望它雅俗共赏。茶室的包容性极强,你可以独自品茗,在午后一个人 享受一杯回味无穷的清茶,也可以全家窝在一起,安静的看一部电影。我想拥有一间茶室,它不用太 大,小小几平,足以安放我的诗和远方。茶室空间算是一本比较小的空间,最终成为了客户全家最喜欢的一个空间。
茶室:我想拥有一间茶室,望它雅俗共赏。茶室的包容性极强,你可以独自品茗,在午后一个人 享受一杯回味无穷的清茶,也可以全家窝在一起,安静的看一部电影。我想拥有一间茶室,它不用太 大,小小几平,足以安放我的诗和远方。茶室空间算是一本比较小的空间,最终成为了客户全家最喜欢的一个空间。
茶几:橡木与藤编材质相结合,日本的审美意识,纯朴、自然、简单,回归生活的本质。
主卧室:床头背景也仅仅是用实木格栅和乳胶漆来平衡这个空间, 尊重每一个个体,拒绝“通用化设计”针对每一个人的特点设计满足与之符合的功能及心理需求。
主卧室:床头背景也仅仅是用实木格栅和乳胶漆来平衡这个空间, 尊重每一个个体,拒绝“通用化设计”针对每一个人的特点设计满足与之符合的功能及心理需求。
主卫:在功能平衡的基础上,考虑空间的尺度,人性的关怀
女孩房:在功能平衡的基础上,考虑空间的尺度,人性的关怀,从未来价值考虑空间的可塑性
女孩房:在功能平衡的基础上,考虑空间的尺度,人性的关怀,从未来价值考虑空间的可塑性
女孩房:在功能平衡的基础上,考虑空间的尺度,人性的关怀,从未来价值考虑空间的可塑性
男孩房:在功能平衡的基础上,考虑空间的尺度,人性的关怀,从未来价值考虑空间的可塑性
男孩房:在功能平衡的基础上,考虑空间的尺度,人性的关怀,从未来价值考虑空间的可塑性
男孩房:在功能平衡的基础上,考虑空间的尺度,人性的关怀,从未来价值考虑空间的可塑性
原始结构图
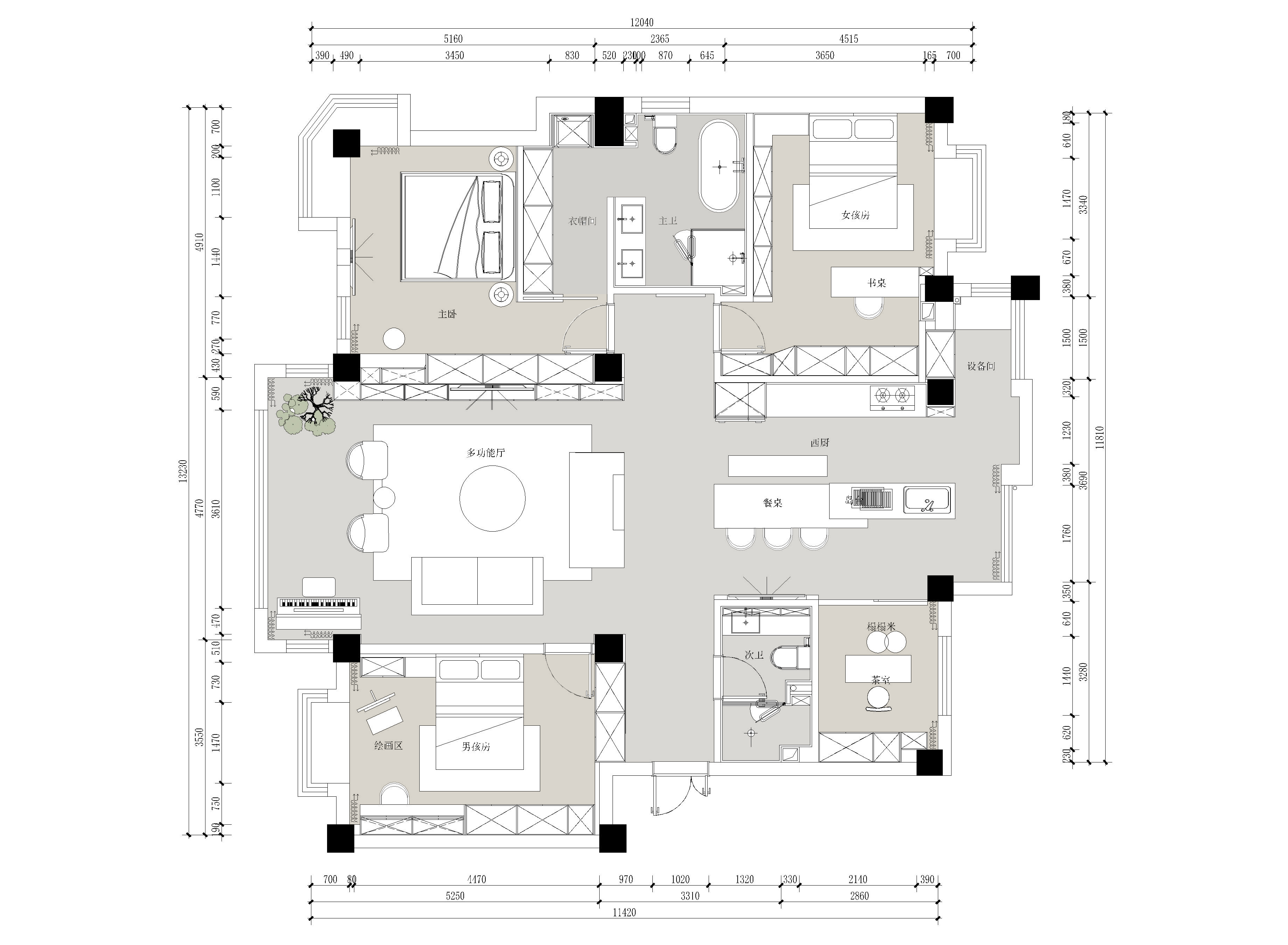
平面布局图

