中海百贤府


- 项目类型:私宅
- 项目地点:西安市
- 建筑面积:600.0000㎡
- 项目造价:10000000.0000万元
- 参与设计师:王玮
- 竣工时间:2021-07-03
- 设计机构:西安木赢设计公司
-
项目定位:客户留学欧洲喜欢欧式风格,整体设计策划风格是欧式宫殿的感觉,定位高端。
-
空间意境:增加了优雅性和柔美性。
-
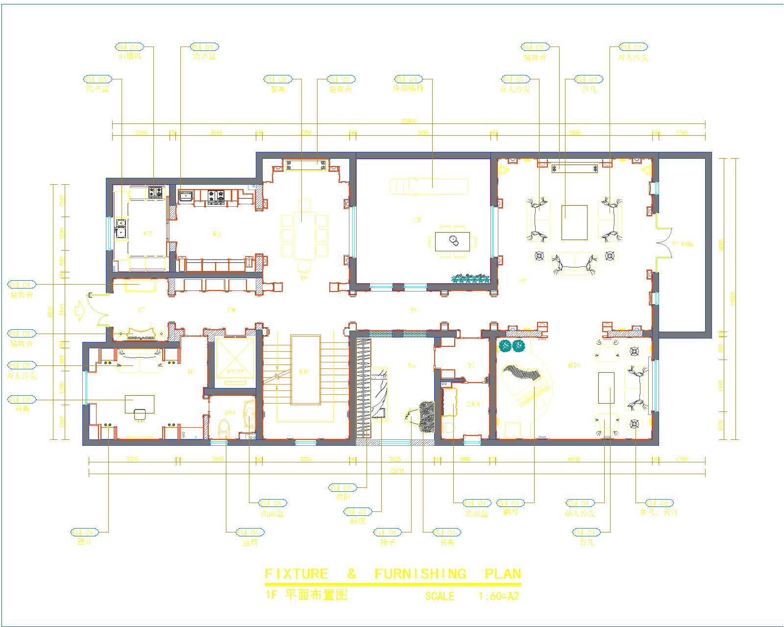
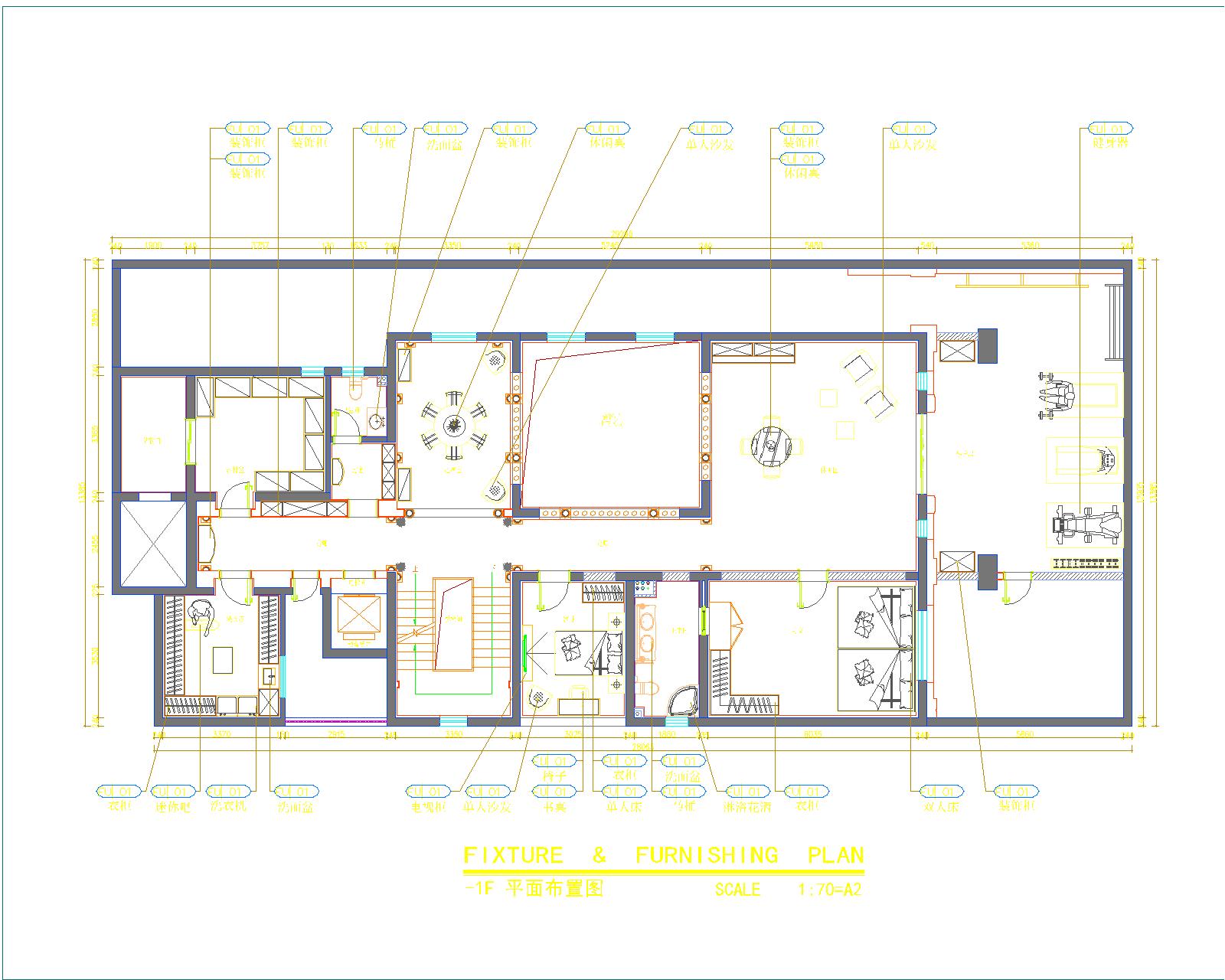
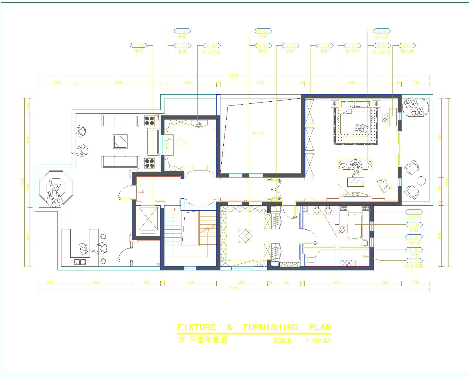
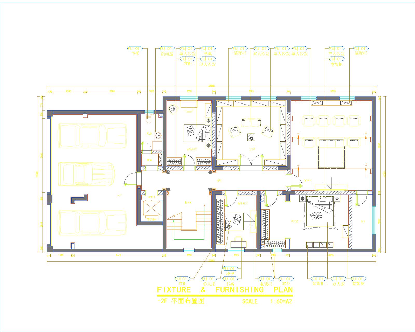
空间布局:有部分搭建,每层区域划分明确。
-
设计选材:护墙板,木地板,壁布全部达到环保低碳的标准。
-
用户体验:客户觉得自己像公主,家是城堡。非常满意。
客厅: 客厅主要以白色、嫩黄色、金色为主,电视背景墙设计感非常丰富,整体空间线条感很多,设计感很强,家具主要以蓝色、金色为主,家具为意大利Caspani Tino品牌,家具上由珍珠、贝母、金箔组成,突出欧式贵族风格,沙发以蓝色为主,金色装饰,欧式元素丰富,沙发后面放置边柜,精致的线条感和特有的柜腿设计感强烈与沙发完美融合,给整个环境添加温馨的生活气息,边柜与角几造型一直,完美融合在整个客厅环境之中。 窗帘以灰色、米色、蓝色为主,和家具相呼应。 地板是拼花造型的铺设简单大气。 吊顶采用欧式复杂的石膏造型
钢琴区: 钢琴区休息喝茶的地方墙体线条感丰富,金属边装饰居多,墙体上花纹按块分造型,钢琴区家具主要以灰白色、粉色、金色为主,三人沙发为白色,搭配花纹看起来与墙体花纹想呼应,以金色边框装饰,两个单人沙发为粉色,相比于客厅沙发就显得简单很多,茶几选用长方形,茶几和角几的造型相同,装饰很多,角几上搭配竹编花篮,增添了生活气息。
餐厅: 餐厅选择长方形八人桌,主要以棕色为主,所有的家具完美融合在整个空间中,地面的拼花地板增加餐厅的层次感,餐桌餐椅后面放置餐边柜,主要以橘色,金色为主,为玻璃门,可以清楚的看见放置的物品,餐厅旁边的纱帘洁白柔软,给人舒适、柔软的感觉,这样的餐厅设计显得开阔明亮。
楼梯: 楼梯扶手为黄色,金色的装饰线修饰边,楼梯围挡的地方用欧式花纹等造型丰富,墙体左边为米白色,右边为嫩黄色,同样以金色装饰线做成几何形状,楼梯踏三色结合,米白色、黑色、白色结合为主。
过道:地板以拼接花纹为主,墙体上线条造型丰富,欧式花纹繁多,墙体的参差不齐艺术感厚重,墙上的灯具为水晶制,灯具上以相同的金属线条装饰,欧式风格显著。

