东南大学无锡国际校区两江学院
2498
作品说明
- 项目类型:公共
- 项目地点:南京市
- 建筑面积:1536.0000㎡
- 项目造价:1500.0000万元
- 参与设计师:金鑫、章振东、万军杰、冯淼宁、张旭
- 竣工时间:2020-10-20
- 设计机构:南京反几建筑设计事务所(普通合伙)
-
项目定位:项目位于无锡市滨湖区状元道5号,东南大学无锡国际校区内。建成至今已经有十多年之久。建筑群保存完整,但室内空间较为陈旧,部分空间功能定义模糊。东南大学作为新的使用方,于2019年底决定将建筑物内部进行翻新改造。
东南大学两江院是东南大学在推进学校“高端化,国际化,本土化,特色化”发展中的重要规划。该校区前身是北京大学软件与微电子学院无锡基地
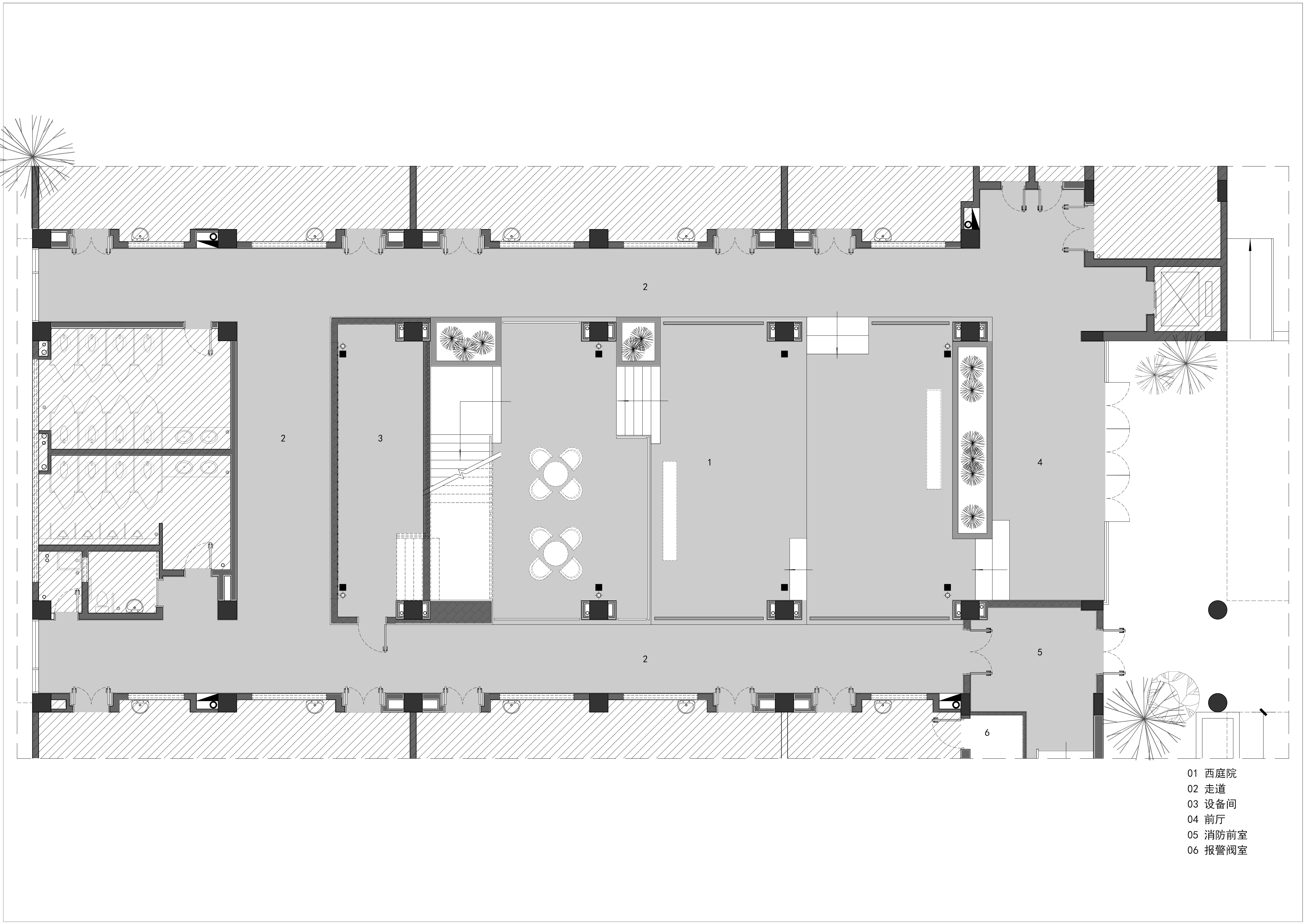
建筑整体布局采用合院式构成,建筑群体之间通过架空层及天桥相互连通。组合式的院落架构形成的灰空间和半室外空间,对于后期改造提供了多种可能性。本次改造空间范围为校区两江院的公共区域,包括教学楼中庭区域、门厅区域、公共中庭区域。
-
空间意境:组团东西为教学楼,U型布局,设计团队通过对现场勘查发现,原先中庭只是作为景观庭院,地面的排水设施加上接收不到充足光照的绿植,整个中庭留给人流通行的空间相对有限。整个空间形态只能满足单一的教学模式,并不符合现代化国际院校的教学理念。设计团队通过对原结构体系的研究,决定为东西两侧教学楼中庭增加顶盖,将原有消极杂乱的天井变为内庭院。从地面升起的钢柱支撑起整个幕墙系统顶盖,钢结构体系完全与老结构脱开,不影响原结构荷载。
中庭,作为交流空间,增加其氛围感,力图将国际化学院的“合作化办学”理念贯穿于整个设计之中,创造一个人性化,有活力,鼓励交流与创新的多样化教育学习氛围。
二至四层围绕内庭院赋予外廊新的空间定义,内侧挑板的增加,鼓励师生走出来,让教室外廊成为兼具阅读、交流、展示的多样化场所。
-
空间布局:新增的架空地面从建筑入口一直延续进来,阶梯状的高度变化增加通往二层人流动线的同时,借助平台形成有序的交流休闲空间,增强了整个空间的立体层次感。空调设备等管线全部暗藏于架空层中,保证整个庭院空间的简洁明朗。
组团中部院系报告厅,底层架空,只是作为开放的交通空间,不同的师生每天行走其中,看似汇集,实则相互之间并无交集。设计团队将底层架空层改造为可以停留的活动空间,通过围护结构将人流加以约束。空间的阻隔,通透的幕墙,增加了师生的求知欲。不同的人汇集于此,彼此分享建立联系。内部空间利用移动隔断进行分割,打破原有区域属性,不同的组合模式创造不同的空间形态。开放式的结构裸露,强化空间力量感,激发师生热情。局部灯光软装的修饰,营造空间氛围的同时给予空间一定的导向性。
-
设计选材:学院接待门厅是学科的第一展示空间。大量的钢板以及浅色涂料,是对科研学科严谨的表达。亚克力构成的十字单元模块结合灯光具象化集成电路的基本属性。中庭区域墙面采用浅色质感涂料,地面的石材采用与墙面同一色系,整个空间简约素净,完全彰显学院学科特性。
-
用户体验:整个项目公共区域改造,集多种功能于一体,考虑不同师生对于不同空间的需求,设计结合当代空间设计风格,充分运用并串联现状存在的多个次要空间,形成连续且有序的空间结构。最大限度的发挥公共空间的价值,打破原有的教育模式,将教学、交流、活动、休憩相融合,创造一个人性化,有活力,鼓励交流与创新的多样化教育学习氛围。在新学期开学伊始,崭新的空间氛围就受到了一众师生的追捧,使用的过程中,校方及各界人士对于整个空间改造给予高度的认可。未来该空间也将成为学校其他学科学院一个交流、活动的固定场所。
该校区是东南大学在推进学校“高端化,国际化,本土化,特色化”发展中的重要规划。校区前身是北京大学软件与微电子学院无锡基地,建成至今已经有十多年之久。建筑群保存完整,但室内空间较为陈旧,部分空间功能定义模糊。东南大学作为新的使用方,于2019年底决定将建筑物内部进行翻新改造。
设计团队通过对原结构体系的研究,决定为东西两侧教学楼中庭增加顶盖,将原有消极杂乱的天井变为内庭院。从地面升起的钢柱支撑起整个幕墙系统顶盖,钢结构体系完全与老结构脱开,不影响原结构荷载
新增的架空地面从建筑入口一直延续进来,阶梯状的高度变化增加通往二层人流动线的同时,借助平台形成有序的交流休闲空间,增强了整个空间的立体层次感。
空调设备等管线全部暗藏于架空层中,保证整个庭院空间的简洁明朗。
中庭,作为交流空间,增加其氛围感,力图将国际化学院的“合作化办学”理念贯穿于整个设计之中,创造一个人性化,有活力,鼓励交流与创新的多样化教育学习氛围。
剖面图1
剖面图2
剖面图3
四层东庭院分区图
四层西庭院分区图
四层总平面
一层东庭院分区图
一层门厅分区图
一层西庭院分区图
一层展厅分区图
一层总平面
0
0

认证 · 让您身份增值