童言 • 芳华 • 莞尔 • 夕暮
46 - 项目类型:住宅公寓
- 项目地点:贵阳市
- 建筑面积:124㎡
- 项目造价:40万元
- 主案设计师: 莫浩东
- 竣工时间:2021-11-02
- 设计机构:凡舍设计
-
项目定位:人作为商业空间的实际体验者,人的体验感受应作为首要考虑的。
因此前期将作出以下硬性规划建议与相关设计分析 -
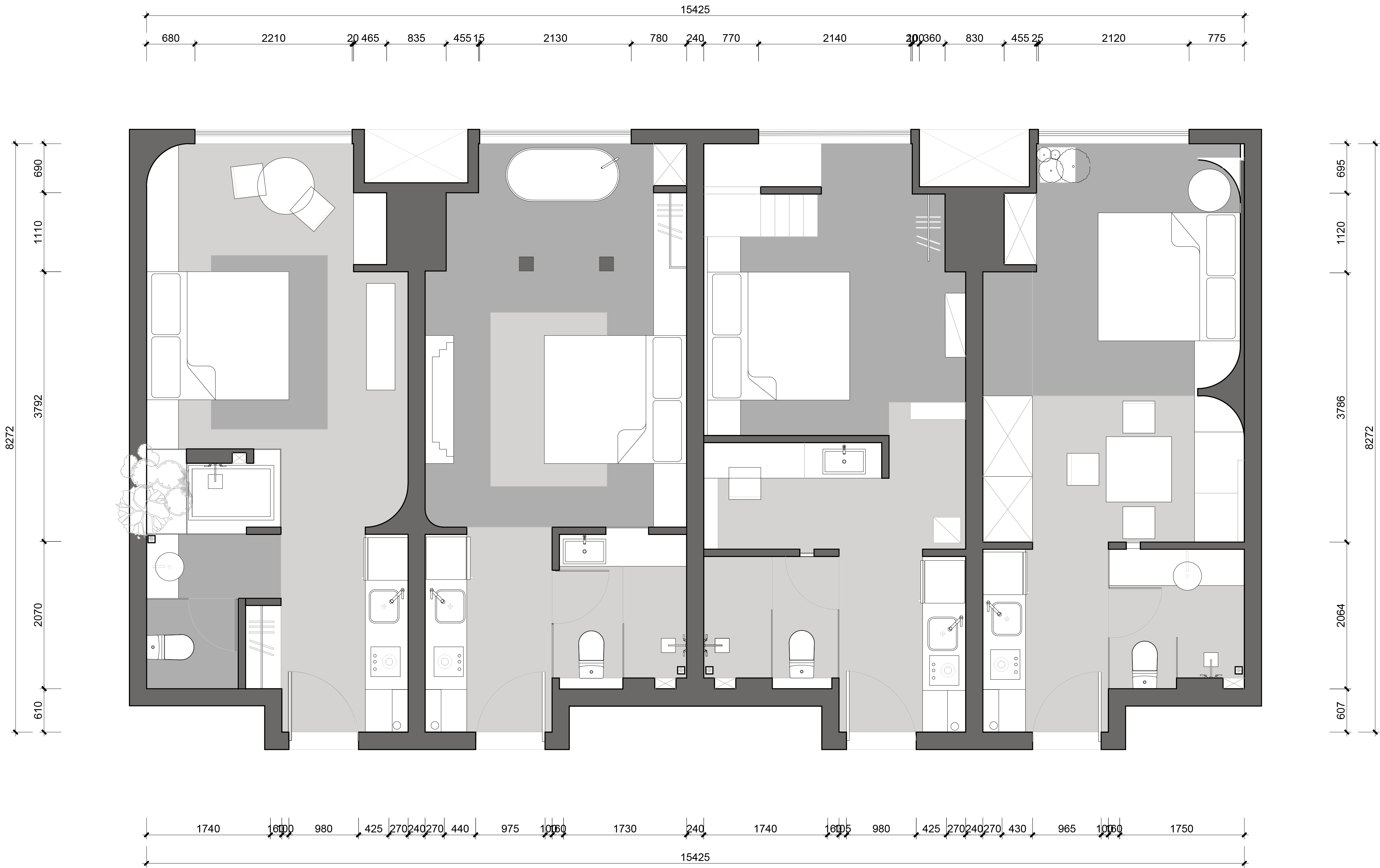
空间意境:项目有四个房间
结合上面的分析给到了四个房间不同的主题场景
相对应的我们设计概念:在成长的过程的勿忘初心,由此我们感悟到的一个人生变化,从青春到暮年。
四个房间同从左到右分别的主题是:
童言:(年轻/色彩) —— 芳年:(个性/现代极简混搭) —— 莞尔:(素雅/原木)—— 夕暮:(沉稳/侘寂)
对应的也是不同的年龄程段,所以说在居住的过程中你是否会在这里得到一些人生的启发,又或者在你青春的时候你想去感受你未来时的体验,
在你年迈的时候去回忆下美好的青春。
时间是一直再走的,怎么样让你在这流逝的时间的里让自己的生活,有意义有价值,而不是浑浑噩噩的度过一生,是值得我们去思考的 -
空间布局:空间布局是根据不同的年轻层面来着重布局的
-
设计选材:主要材料采用微水泥和素色微水泥砖
-
用户体验:客户评价很高,和业主的契合度很高,期待下一次的合作!
人作为商业空间的实际体验者,人的体验感受应作为首要考虑的。 因此前期将作出以下硬性规划建议与相关设计分析 项目有四个房间 结合上面的分析给到了四个房间不同的主题场景 相对应的我们设计概念:在成长的过程的勿忘初心,由此我们感悟到的一个人生变化,从青春到暮年。 四个房间同从左到右分别的主题是: 童言:(年轻/色彩) —— 芳年:(个性/现代极简混搭) —— 莞尔:(素雅/原木)—— 夕暮:(沉稳/侘寂) 对应的也是不同的年龄程段,所以说在居住的过程中你是否会在这里得到一些人生的启发,又或者在你青春的时候你想去感受你未来时的体验, 在你年迈的时候去回忆下美好的青春。 时间是一直再走的,怎么样让你在这流逝的时间的里让自己的生活,有意义有价值,而不是浑浑噩噩的度过一生,是值得我们去思考的
童言 在儿童时期我们都幻想着自己能有个梦幻般的童年,奶咖色的空间加上弧形的元素,很好的诠释了这个梦幻的空间
芳年 代表着年轻,富有个性的年华,纯白的空间代表着年轻时代的干净即纯粹,没有任何杂念
莞尔 到了这个年纪,心念开始慢慢沉淀了下来,开始学会思考,学会去享受去接纳这个社会,心性也变得不那么浮躁了
夕暮 这个年龄层面的人已经开始真正意义上的开始享受生活,回想着过去的人生,嘴角微微上扬,再看看现在的自己,嗯,也挺满意的,人生也不过如此。
项目有四个房间 结合上面的分析给到了四个房间不同的主题场景 相对应的我们设计概念:在成长的过程的勿忘初心,由此我们感悟到的一个人生变化,从青春到暮年。 四个房间同从左到右分别的主题是: 童言:(年轻/色彩) —— 芳年:(个性/现代极简混搭) —— 莞尔:(素雅/原木)—— 夕暮:(沉稳/侘寂) 对应的也是不同的年龄程段,所以说在居住的过程中你是否会在这里得到一些人生的启发,又或者在你青春的时候你想去感受你未来时的体验, 在你年迈的时候去回忆下美好的青春。 时间是一直再走的,怎么样让你在这流逝的时间的里让自己的生活,有意义有价值,而不是浑浑噩噩的度过一生,是值得我们去思考的
1
1

认证 · 让您身份增值