招商蛇口东望府样板间


- 项目类型:样板间/售楼处
- 项目地点:合肥市
- 建筑面积:45.0000㎡
- 项目造价:25.0000万元
- 参与设计师:李英、朴俊鹤、王禕萍、孙伟、赵雨歆
- 竣工时间:2021-08-21
- 设计机构:阖时建筑设计(上海)有限公司
-
项目定位:在刚开始的时候,居住空间仅代表一个睡觉的地方;随着都市青年不断融入城市生活,居住空间成为他们身心休憩的港湾和享受城市生活的起点,更多的居住需求开始出现;功能更全面的公寓成为满足这些都市青年居住需求的一种方式。在电商直播盛行的当下,我们贴心的为新青年打造了一个时尚直播间。我们不要伪造一个青年人的概念,我们需要的是青年人自己定义的青年人!不选择,才骄傲!
秋季已经快到结尾,今年的夏天就这样爽快地过去了吗?虽然有那么几天所谓的“高温”,却也在不觉中一闪而过,多被雨水带来的凉爽所掩盖。这个夏天好像很短暂,我们偏要留住夏天,当清爽的牛油果色系偷偷跑进你的家,又会掀起一股怎样的夏日时尚呢?
食草男,他们是新时代的温柔男性,外表白净清秀,给人柔和温暖的感觉,“注重生活品质”、“享受生活”、“科技宅”都是他们的代名词,招商为喜欢徒步探险、探究自然生活秘密的新青年量身设计了一间主题公寓,带来环保主义的积极转变,营造贴心舒适的静谧之美。 -
空间意境:空间主题色牛油果灰绿色,设计师却并没有以大面积的绿色为主,而是采用小面积点缀的方式去与主题色相互成就,温感的牛油果色灰绿色使整个空间青春洋溢。
生态大自然提供有机舒适的原生色盘,采用牛油果绿和柠檬黄,用宁静的自然主义色盘让人在观察与沉思中逃离短期的压力。各种有品质的材料相互映衬,黄铜、木饰面,与牛油果绿、柠檬黄的搭配;将这些元素巧妙搭配在一起,让这个小小的空间在满足居住使用的基础上变得更加精致。 -
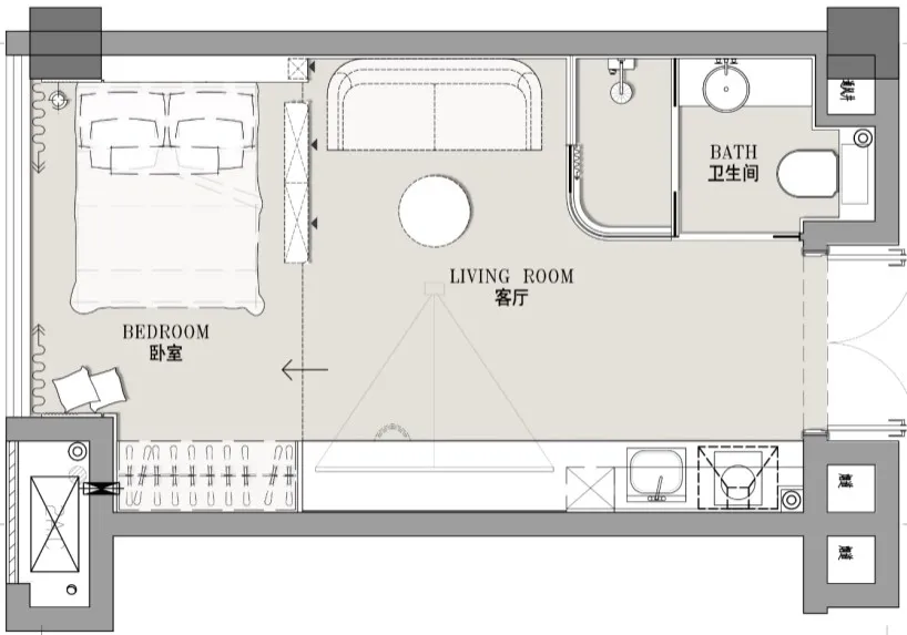
空间布局:小而鲜明的分区 - 榻榻米、地毯
设计师利用榻榻米和墙体凹陷处做分区,长形黑色矮茶几作为隔断,再铺上一块斑马纹地毯,卧室与客厅被鲜明区分出来。床头慵懒随性的绿色装饰画点缀了一整面的白墙,清新又自然。
空间内没有过多的造型与装饰,简约硬朗的线条和米白色墙面,与黑色家具搭配的恰到好处,墙上含有金属元素的流线型装饰壁画充满着科技感,与金属落地灯散发出来的渐变灯光浑然一体,没有任何多余。
床头的白色线型灯与黑色开关面板,在床头木饰面与中古风格的柠檬黄包豪斯灯的映衬之下,显得非常有质感。
利用展示柜隔开厨房与书桌,高低台面的设计使两个区域更加鲜明,对于新社会独居青年来说,1-2人一张大桌足矣,就餐区与工作区可以达到随时切换。桌上的镜面墙使空间更宽敞明亮,仿佛大了五六个平方。 -
设计选材:在有限的空间内有一面顶天立地的三开玻璃衣柜门,黑色玻璃的运用一定程度上可以掩盖柜内五颜六色的衣服,并且与空间色彩统一,酷炫又通透。
麻雀虽小,五脏俱全。所有电器被嵌入柜中,使空间大气不杂乱,绿色的厨具无比清爽,大理石厨房台面一直延伸至卧室衣柜,达到了风格的统一。 -
用户体验:干湿分离的卫浴,洗手池下方还藏有暗灯,白天是氛围灯,夜晚就是照明利器,既不会太过刺眼使人失去困意,又能达到良好的照明效果。黑色的洗手池,也为洗漱区带来了酷炫感。
空间主题色牛油果灰绿色,设计师却并没有以大面积的绿色为主,而是采用小面积点缀的方式去与主题色相互成就,温感的牛油果色灰绿色使整个空间青春洋溢。
生态大自然提供有机舒适的原生色盘,采用牛油果绿和柠檬黄,用宁静的自然主义色盘让人在观察与沉思中逃离短期的压力。
各种有品质的材料相互映衬,黄铜、木饰面,与牛油果绿、柠檬黄的搭配;将这些元素巧妙搭配在一起,让这个小小的空间在满足居住使用的基础上变得更加精致。
小而鲜明的分区 - 榻榻米、地毯 设计师利用榻榻米和墙体凹陷处做分区,长形黑色矮茶几作为隔断,再铺上一块斑马纹地毯,卧室与客厅被鲜明区分出来。 床头慵懒随性的绿色装饰画点缀了一整面的白墙,清新又自然。
空间内没有过多的造型与装饰,简约硬朗的线条和米白色墙面,与黑色家具搭配的恰到好处,墙上含有金属元素的流线型装饰壁画充满着科技感,与金属落地灯散发出来的渐变灯光浑然一体,没有任何多余。
黑色玻璃的运用一定程度上可以掩盖柜内五颜六色的衣服,并且与空间色彩统一,酷炫又通透。
床头的白色线型灯与黑色开关面板,在床头木饰面与中古风格的柠檬黄包豪斯灯的映衬之下,显得非常有质感。
强有力的收纳系统 - 玻璃衣柜、内嵌电器 在有限的空间内有一面顶天立地的三开玻璃衣柜门。
麻雀虽小,五脏俱全。 所有电器被嵌入柜中,使空间大气不杂乱,绿色的厨具无比清爽,大理石厨房台面一直延伸至卧室衣柜,达到了风格的统一。
和谐又统一的一体化餐厨 - 高低台面 利用展示柜隔开厨房与书桌,高低台面的设计使两个区域更加鲜明,对于新社会独居青年来说,1-2人一张大桌足矣,就餐区与工作区可以达到随时切换。
桌上的镜面墙使空间更宽敞明亮,仿佛大了五六个平方。
干湿分离的卫浴,洗手池下方还藏有暗灯,白天是氛围灯,夜晚就是照明利器,既不会太过刺眼使人失去困意,又能达到良好的照明效果。
黑色的洗手池,也为洗漱区带来了酷炫感。

