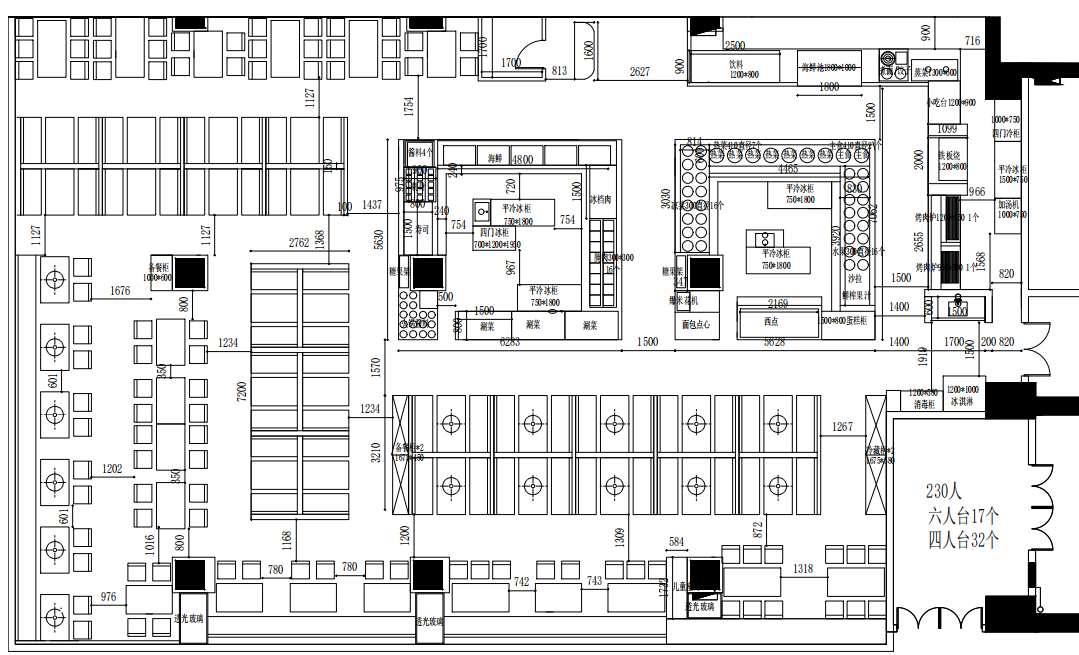
西安火焰山海鲜餐厅


作品说明
- 项目类型:餐饮
- 项目地点:西安市
- 建筑面积:600.0000㎡
- 项目造价:100.0000万元
- 主案设计师: 孙浩
- 竣工时间:2021-09-30
- 设计机构:孙浩设计事务所
-
项目定位:项目设计初衷是打造一个能够突出温馨,舒服,轻松的特点,满足人们的情感生活和高层次的精神享受
-
空间意境:通过多种形式创造出使人舒心悦目,独具艺术魅力和技术强度的“作品”
-
空间布局:轻松欢快的基调是设计的基础,搭配时尚的装饰元素,打造出具有当下流行特点的前卫化风格餐厅
-
设计选材:选材上使用了低碳,绿色,环保的设计材料
-
用户体验:在顾客用餐的同时,也能感受到精神上的放松与享受

