初夏
1118 - 项目类型:住宅公寓
- 项目地点:厦门市
- 建筑面积:125.0000㎡
- 项目造价:45.0000万元
- 参与设计师:胡水壶
- 竣工时间:2021-05-09
- 设计机构:厦门居岛室内设计有限公司
-
项目定位:没有哪个妈妈会嫌弃家里的储物空间太大。所以我们呈上了巨大的储物空间给这个家庭,满足妈妈把家里收纳整理的井井有条,干净利索的愿望。
-
空间意境:身处在空调要用到七个月的滨海城市,让空间多些清爽和宁静是再合适不过的居家氛围了。我们同时借用了窗外绿意盎然的植被,与室内的米白灰相映成趣,把时光定格在凉风习习的初夏 。
-
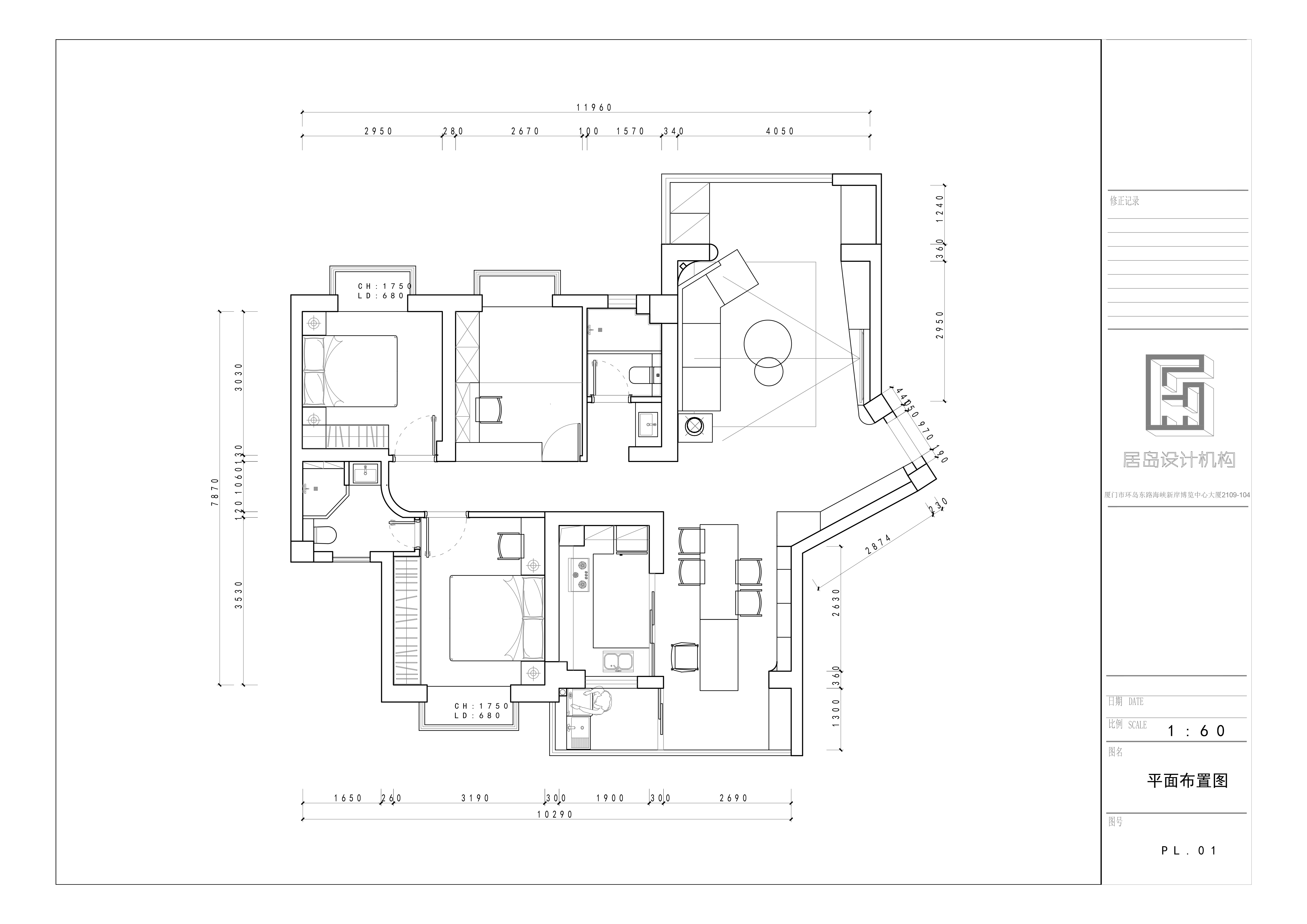
空间布局:一入户就以巨大的储藏柜为动线的指引,我们根据进出家门的各种行为动作来规划柜子的功能区的同时,随着柜子的位置界定好了各个功能区域。满足了空间使用的的便利性。
-
设计选材:本案将实用美学运用的比较充分,我们通过对柜子的组合设计使其实现功能性的同时达到了一定的外在装饰性。所以空间里就几乎没有为了视觉美学而产生的装饰材料。间接达到了降低装修成本,取得一定经济性的要求。
-
用户体验:业主反馈让家务时间缩短了不少,简单快速的收拾就可以让家里整洁不凌乱。终于有空余的时间安静的享受居家生活了。
这是一个很放松的家 我觉得最终呈现的样子,已经成为了一件礼物,是这个忙碌且充实的家庭,送给他们当下最好的人生嘉奖。 项目完工的时间,是在初夏。这个繁花未落去,微风送清凉的时节,恰好与我们的室内空间遥相呼应,相得益彰。室内素面的牙白与米色,藏着一片琬琰的淡绿,衬着窗外雨后的芭蕉,相印成趣。 如果人生浓缩成四季,那么繁花开尽青果挂枝的初夏正是属于业主一家的季节,它代表着繁忙工作的夫妻与滋滋求学的少年,是一个充满着活力的家庭。所以,案例取名 “初夏” 再合适不过了。
增与减——空间处理手法 几乎每个家庭主妇都会觉得家里储藏空间不足,承载着生活起居的物品确实是很多。我们详细沟通了各个生活物品的用途并做了统筹和归纳,根据在屋内的生活轨迹安排在各个合适的区域。 特别在起居空间,我们一共增加了近四十平方的收纳柜 同时把“功能美学”发挥到极致,通过对这四十平方柜子的推敲运用,全部化为空间墙面的造型组成部分,在满足各个功能区的空间使用尺寸前提下。巨大的储物量就静静的隐在干净素雅的空间中,不会让空间显得臃肿,我们去掉了多余的装饰手法,让空间产生宁静的空间氛围。 化繁为简,回归生活的本质。
私属的生活模式 每个家庭成员对空间都有不一样的需求,我们都应该去倾听去了解居住者的生活习惯与使用要求,做出针对性的方案,这才是家居设计的核心与价值所在。 举个例子,晚上六点到九点的时间段是业主一家最忙碌的时间段。下厨、学习、工作、收拾等一系列的行为都集中在餐厅厨房区域。我们因此升级了区域的功能性,把就餐区设计成功能岛台,可以快速切换成餐桌与工作台两种使用模式,女主人可以在餐后等待洗碗机工作的碎片时间梳理工作。岛台后的墙柜设计几处开放格,方便书籍文件的取用。而与厨房一门之隔的岛台又可以在放学时变为孩子的学习区,在这段家庭最忙碌的时间里一边料理晚餐一边照看到孩子。能够让家中最忙碌的时刻高效且从容,只需要对一张餐桌加以适当的调整。 再比如入门处深浅不一的高柜,除了常规的鞋靴区,还有孩子的篮球,户外的用品,不宜放房间的登机箱等等不一样尺寸要求的物品都有了合适的位置。
作为斜入的户型,进门的感觉是特别重要的。我们要让入户的体验感做到最优化,所以让顶墙鞋柜依斜墙而靠,使得视野最大化。同时在目所能及的过道处圆润了转角,通过一组马赛克百花图进一步吸引了目光。我们以人进入室内的位置角度出发,一远一近的处理让空间品质提升。
0
1

认证 · 让您身份增值