理想生活,趣果有间



- 项目类型:住宅公寓
- 项目地点:温州市
- 建筑面积:198.0000㎡
- 项目造价:140.0000万元
- 主案设计师: 廖丽雪
- 竣工时间:2020-12-12
- 设计机构:丽雪空间设计工作室
-
项目定位:这个案子是我2018年9月设计的,由于甲方的原因到2019年9月才开工...
业主是个80后小仙女,还有两个可爱的儿子,希望她的家是简洁 温馨 舒适 大气的,即希望能把空间充分利用起来,又想让房子在视觉上看起来开阔不局促,以有限的预算创造无限的美感,通过设计让生活更便捷,美好,舒适。注重风水,在功能的空间布局上,要求门和窗平行不能三重叠,主卫马桶与床位距离不可太近等。住宅设计有很多共通性的地方。在现代的生活方式中,家的本意是为了更好的生活,那生活需要的 阳光 通风 采光 人在里面的自由度,空间不被约束。他的实用性,他的格局需求整体性的思考,他不浪费材料 等等,这些都是必须具备的,除了对工程技术,专业上,材料上的考量之外,还有生活实施上面的细节。符合业主的价值观及我们要给予业主的,我们认为对的事和他生活及符合它的价值。所以我认为住宅这件事反应出来的就是生活在这个空间里面人的个性,他的看法跟他的价值。 -
空间意境:大面积地使用白色墙面与柜体,局部黑白灰三色家具凸显空间的层次感,质地醇厚的黑,一处处落在白色空间内,纯净而简洁。
离开繁杂花哨的设计,以极简的风格主义,让每一处空间都自然而简单,却更耐人寻味。 -
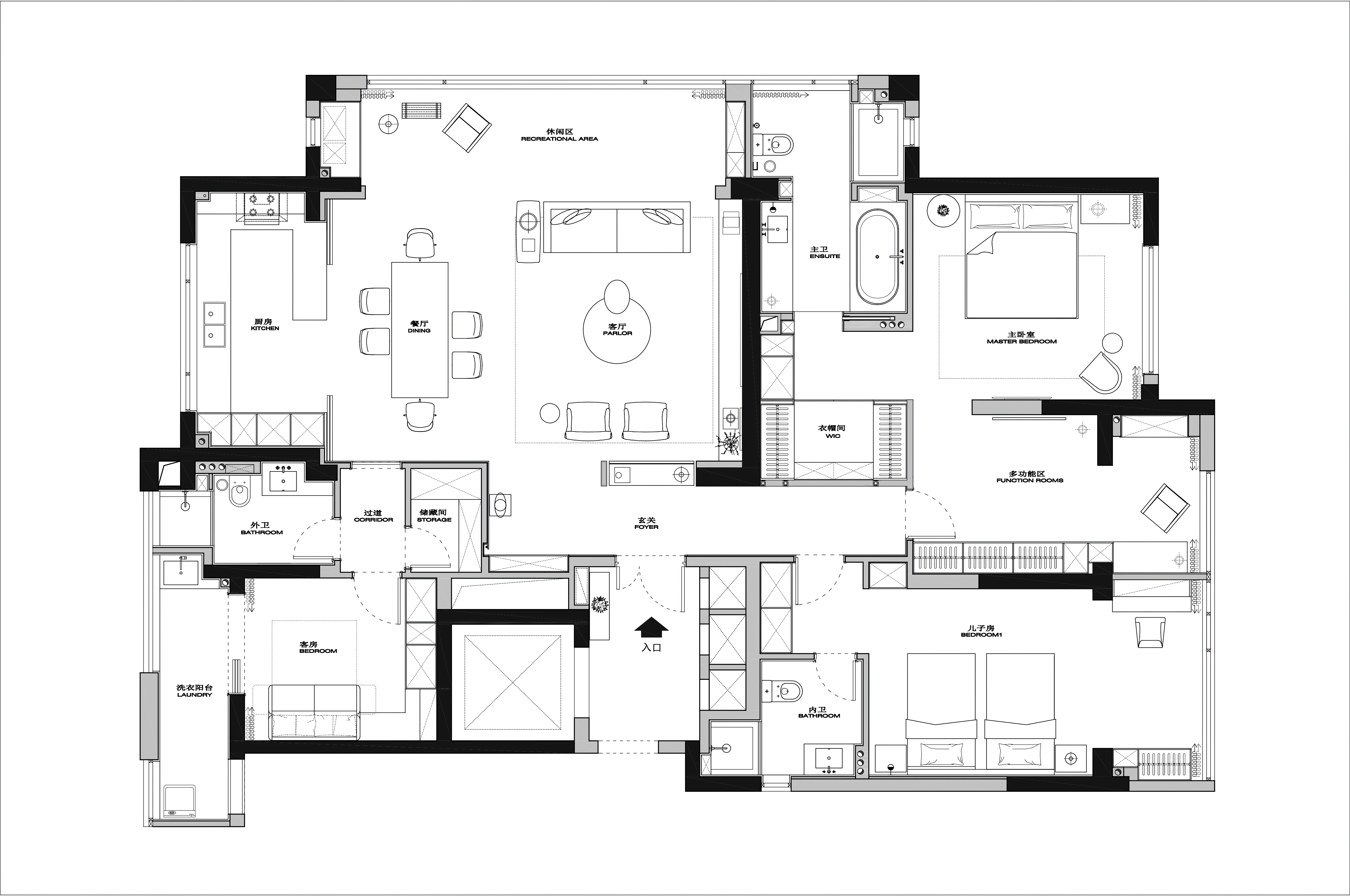
空间布局:
在入户做了一条链接动静分区的通道,木质栅栏式屏风隔断客餐厅,做到有分而联,动静较分明的流线分布,把东南两边的阳台统到室内,即充分利用了空间又满足了室内采光,和视觉上空间的整体感与外围环镜的连接延续。
-
设计选材:设计师摒弃了繁复斑斓的色彩与结构,无彩色为空间主色调,原木色的暖调作为辅助,让一个家,冷静但不冷清,平淡但不平凡。
-
用户体验:满意!
推开家门,首先进入一条链接动静分区的通道,一盏蘑菇暖黄小灯的等候,暖黄与橙色相交装饰画,让玄关的氛围充满了温馨感,木质栅栏式屏风隔断客餐厅。 这一处温暖的角落,让归家的人慢慢卸下在外的所有盔甲,用一颗柔软的心,去感受理想居所的美好与舒适。
客餐厅一体化,空间在视觉上更加宽敞且通透感强,采光极佳。
大面积地使用白色墙面与柜体,局部黑白灰三色家具凸显空间的层次感,质地醇厚的黑,一处处落在白色空间内,纯净而简洁。 电视柜的陈设采用原木层板,流畅而大气。地面使用实木地板鱼骨拼铺设,充满高级感,小面积地使用原木色调烘托整体氛围。 浅灰色地毯划分出一处休憩之地,同时减弱地面的颜色深度。深灰色造型沙发椅,提升空间品质感观。 每一处细节的软装,也都围绕着主色调,偶或落入一盏桔红色装饰灯,与poltrona frau 半透花盆中深绿植物形成鲜明对比。
半开放式厨房,厨房陈设简约,同样是大面积的白色橱柜,多功能的岛台式设计让就餐变得更轻松,也与餐厅有了更深的连接。 沉稳的长条黑桌,奶白色软椅,色彩呼应,一盏充满设计感的异形餐灯是点睛之笔。这里不仅是一家人的三餐之所,更是温柔的相聚时光。
家是每一天开始和结束的地方,家所代表的不仅是一个物理场所,更多的是我们身处其中的情感——温暖 爱 喜悦和安全。
休闲区让家人、朋友之间有了更多交流的空间。开放式的公共区域设计,是一个理想居所的加分项。
离开繁杂花哨的设计,以极简的风格主义,让每一处空间都自然而简单,却更耐人寻味。
书房陈设的简约之美,看似随心实则精心。自然通透的阳光透过窗口撒入书房内,落在悬空式的桌面上,光影交错,时间随着光线的流动和沉静的阅读慢慢逝去。
卧室是每一个人最主要时间也最长的休憩之所,每一个深夜的晚安与安眠,每一缕清晨的阳光唤醒,都是最原始而松弛从容的。 其间依然是黑、白、灰与原木色的主场,简单的颜色和布局,纯粹而温暖。
卫生间极具现代感,大理石与木质恰到好处的结合,透露自然简洁的质感,在极简空间里多了些细腻。 上下空间的内置,满足业主对储物功能的需求,各个台面上没有任何杂物,空间与心一般,纯粹而干净。
两个孩子年纪相仿,共居一室,素色的居所没有一丝多余的装饰,纯粹而简明。 这里将是两个男孩年幼时的无话不说,少年时的意气相投……
一个理想的空间,将是趣果有间,不需要繁杂和花哨的设计,只有纯粹而干净的感情,家人相处和谐而自然,乐趣会不断出现,回忆会不断储藏,让居所成为温暖的光,让人成为温暖的存在。
平面图

