富力丹麦小镇实景
 
                                             470
 470                
                    作品说明
                
                - 项目类型:别墅
- 项目地点:北京市
- 建筑面积:1000.0000㎡
- 项目造价:900.0000万元
- 主案设计师: 张晓斌
- 竣工时间:2019-03-01
- 
                            项目定位:项目定位方面:首先改变房子的地上格局,让室内主要生活区和园林有互动性和观赏性,解决地下室扩建的采光和趣味性。一层和二层在扩建后把客餐厅和卧室改到了园林区,地下室的采光井做成了地上园林的鱼池,在鱼池的底部采用玻璃材质,使得地下室的生活区既可以享受到阳光也能感受到水的光波及鱼在空中畅游的画面。此方案中主要是把大自然的元素和室内空间做连接贯通。
- 
                            空间意境:空间意境方面:主要体现现代风格,在空间感和局部元素上体现大自然的氛围。室内元素以现代风格为主,建筑上把窗户改成通透感很强的落地窗,把室外的景色拉到室内。
- 
                            空间布局:空间布局方面:这套房子的原始户型不太合理,室内客厅、餐厅及卧室和户外的园林没有互动性。在室内完全欣赏不到业主的私家园林,也不能直接走出房间观赏园林,所以做了大规模扩建。把客厅、餐厅和卧室都搬到园林的一侧,这样达到室内外的互动性,也有了观赏性,从而把别墅该有的气场做到位。一层主要满足客餐厅、中西厨、书房、客房等功能。地下室也做了很大的扩建,把园林地下挖空和之前的地下空间衔接,满足了地下室娱乐空间的需求:游泳、台球、酒窖、健身、影音、棋牌室、接待、品茶、画展等。二层主要把卧室也改到了花园侧,让三个卧室也享受到
- 
                            设计选材:设计选材方面:地面基本上选用瓷砖替代天然石材,这样经济也比较环保。木作类基本上都用的复合类环保板材。墙面大面积运用乳胶漆,局部用木作墙板、石材及硬包。在设备系统上采用太阳能发电,在房顶铺满光伏板,这样自身用电就不用国家电网的供电,不仅低碳环保节能减排,还可以把多余的产量卖给电网。
- 
                            用户体验:用户体验方面:居住体验非常好,在房间内可以欣赏园林景色,室内功能使用起来很舒适。全屋智能让生活在背景音乐下显得更欢快,同时经常邀约朋友来家里做客,地下室的娱乐功能完全利用起来,西厨的氛围也让家人喜欢上了烹饪,整体的氛围让业主感受到了很大的幸福感。
餐桌一角,生活气息满满。
智能化运用到生活的每一个角落。
宽敞明亮的卫生间,以白色瓷砖为主题,气质格外优雅。
另一个卫生间则以强烈的黑白撞色搭配,让空间也变得很活泼。
二层楼梯处放置一个水吧及小冰箱,满足二层起居所需的需求,让业主的生活更加舒适。
西厨一角运用轨道插座,科技感十足,同时更方便生活需求。
西厨结合吧台增加生活趣味性,灯光及室外给光影结合让整个空间更添氛围。
餐厅区域衔接室外,西厨及客厅,营造良好的互动趣味性。区域间通透大面积落地窗的运用,采光效果极佳,观景性也很棒。
台球室区域和地下其他区域做了阶梯式的效果,避免了远距离互动性差的情况。
茶歇区域尽享鱼池带来的光影效果,让茶歇不再枯燥。
整体地下空间不做大面积封闭间隔,结合茶歇,下沉式沙发,泳池区域,让人与人之间的互动没有任何阻碍。大面积墙面留白,给业主展示自己摄影作品,增加趣味。利用鱼池效果采用大面积自然采光,摆脱了地下室阴暗的刻板印象。
书房同样保留自然采光,定制书柜增加了的收纳空间,及珍宝展示功能。
主卧依旧保留采光,床头背景采用硬包,利用灰棕色降低空间饱和度,简约的黑白灰更加体现品质。
客厅区域运用跳色元素,色彩搭配更加活泼。大规模自然光让空间交互更加自然。
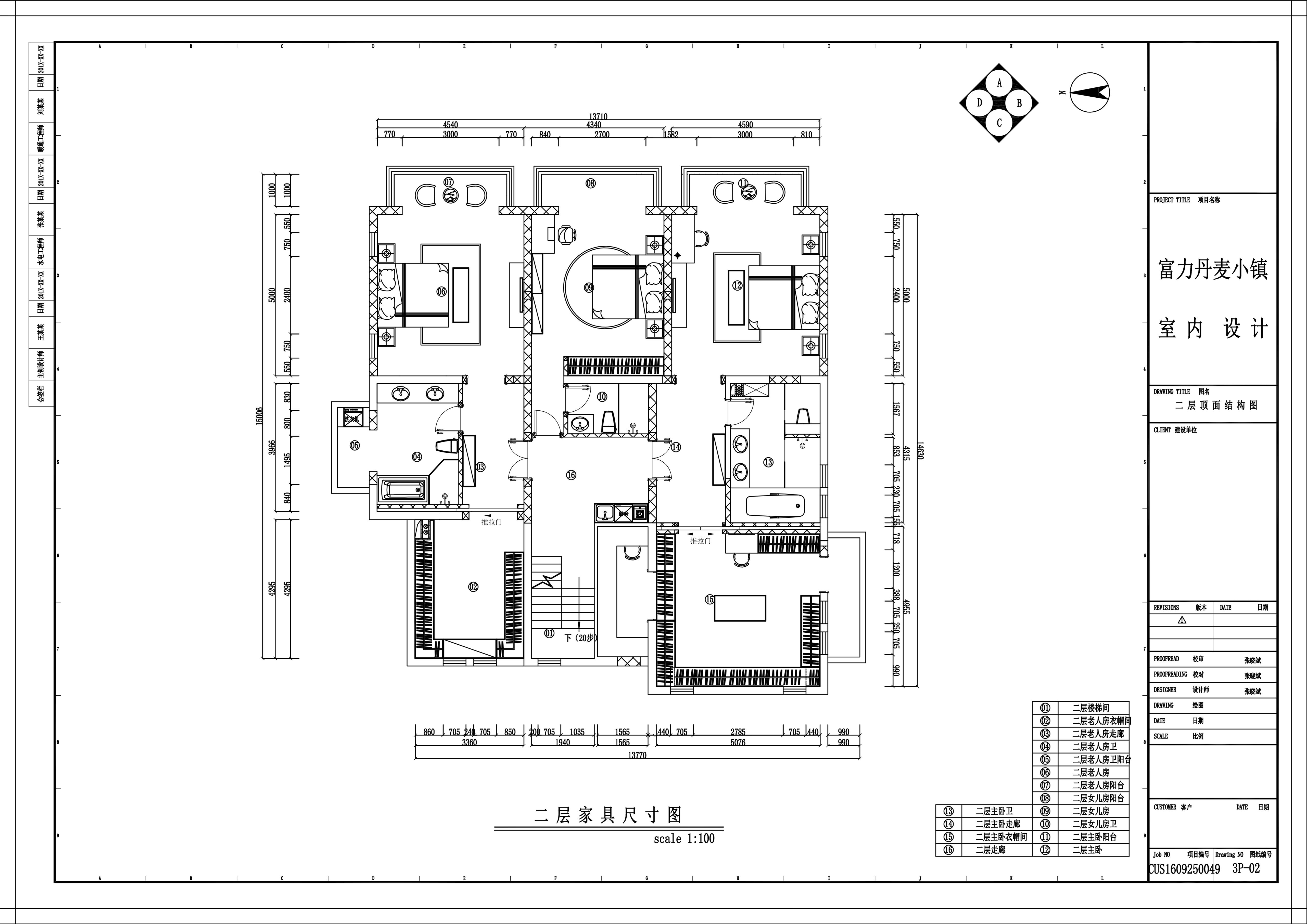
F2平面布置图
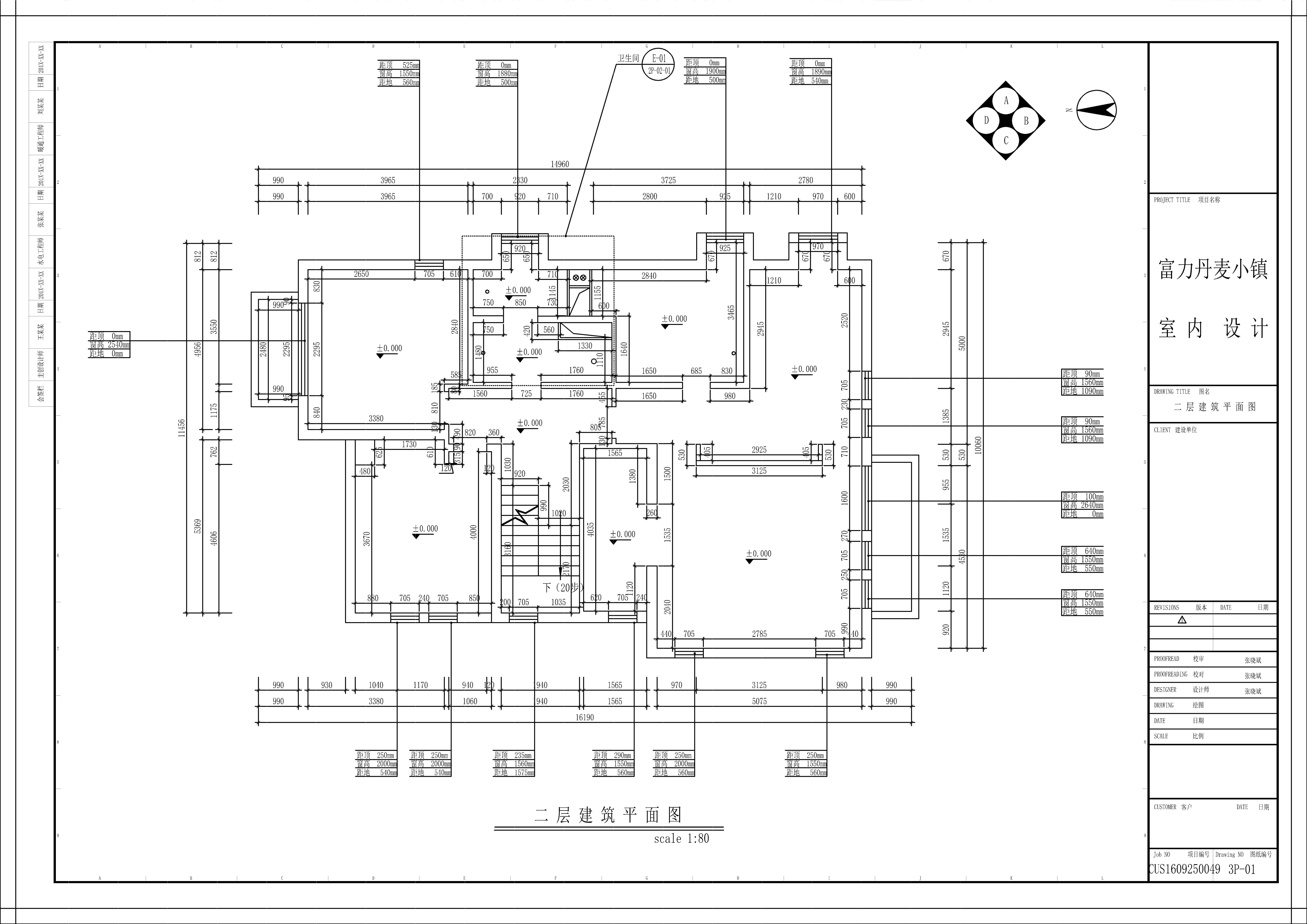
F2原始户型图
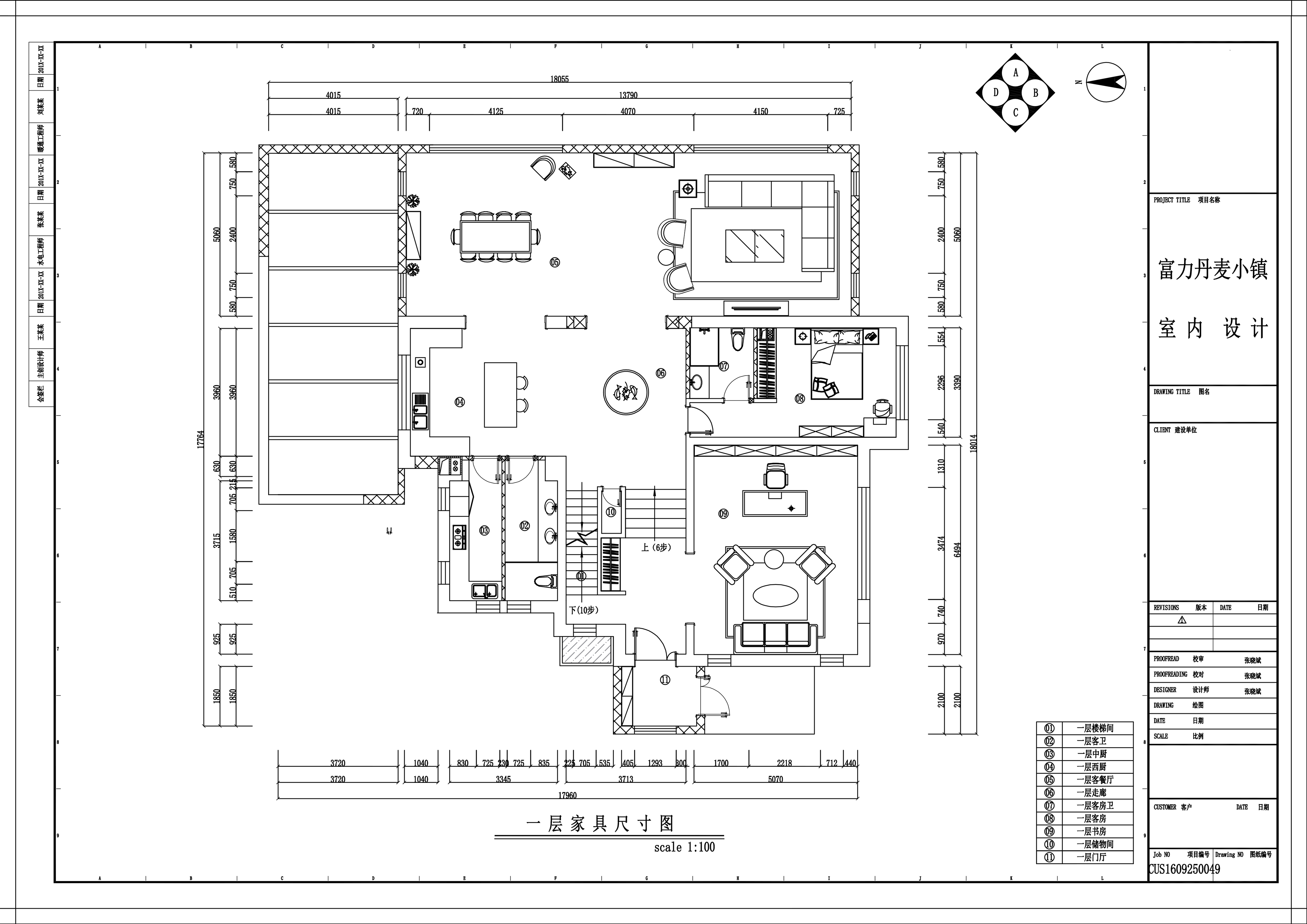
F1平面布置图
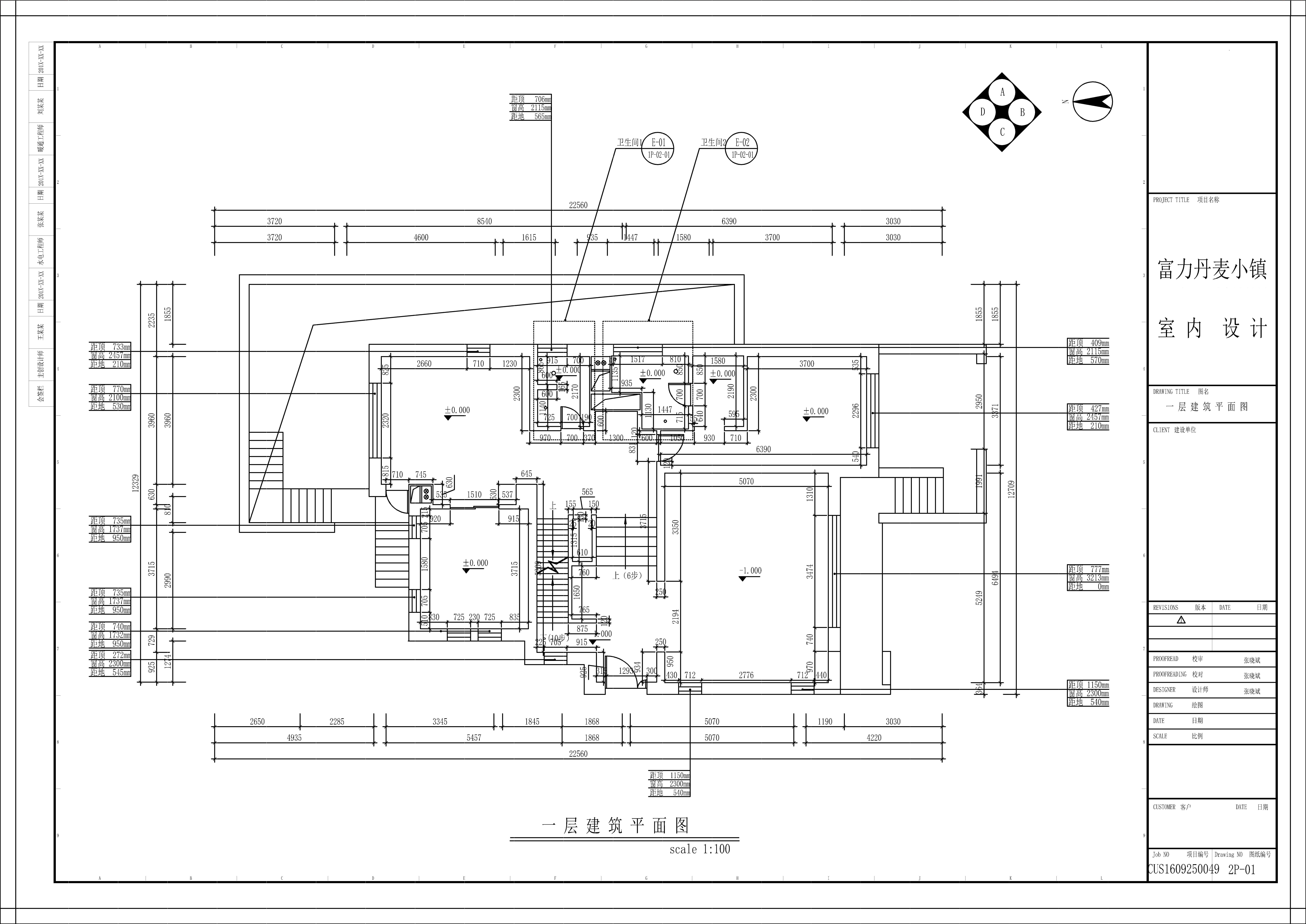
F1原始户型图
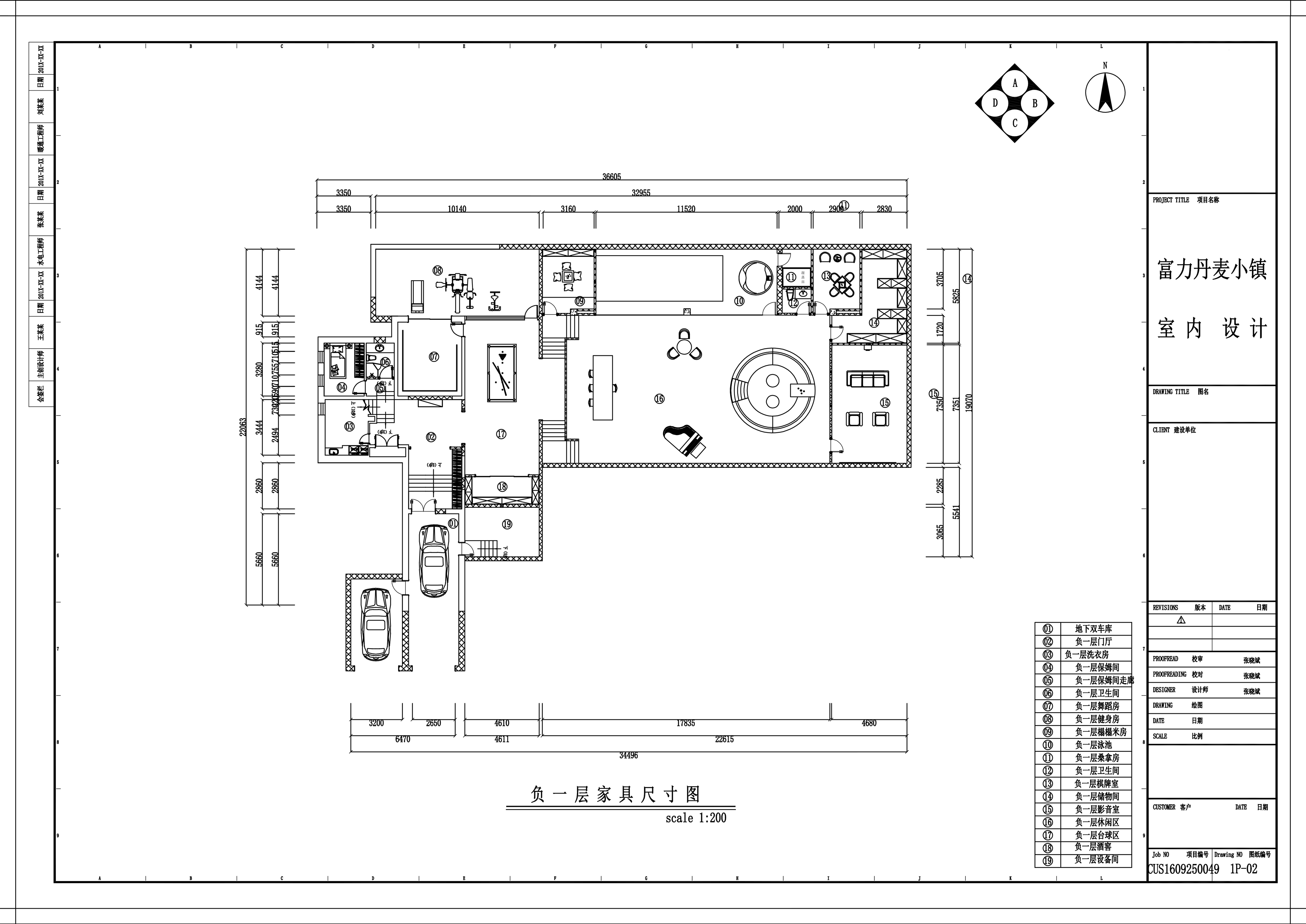
B1平面布置图
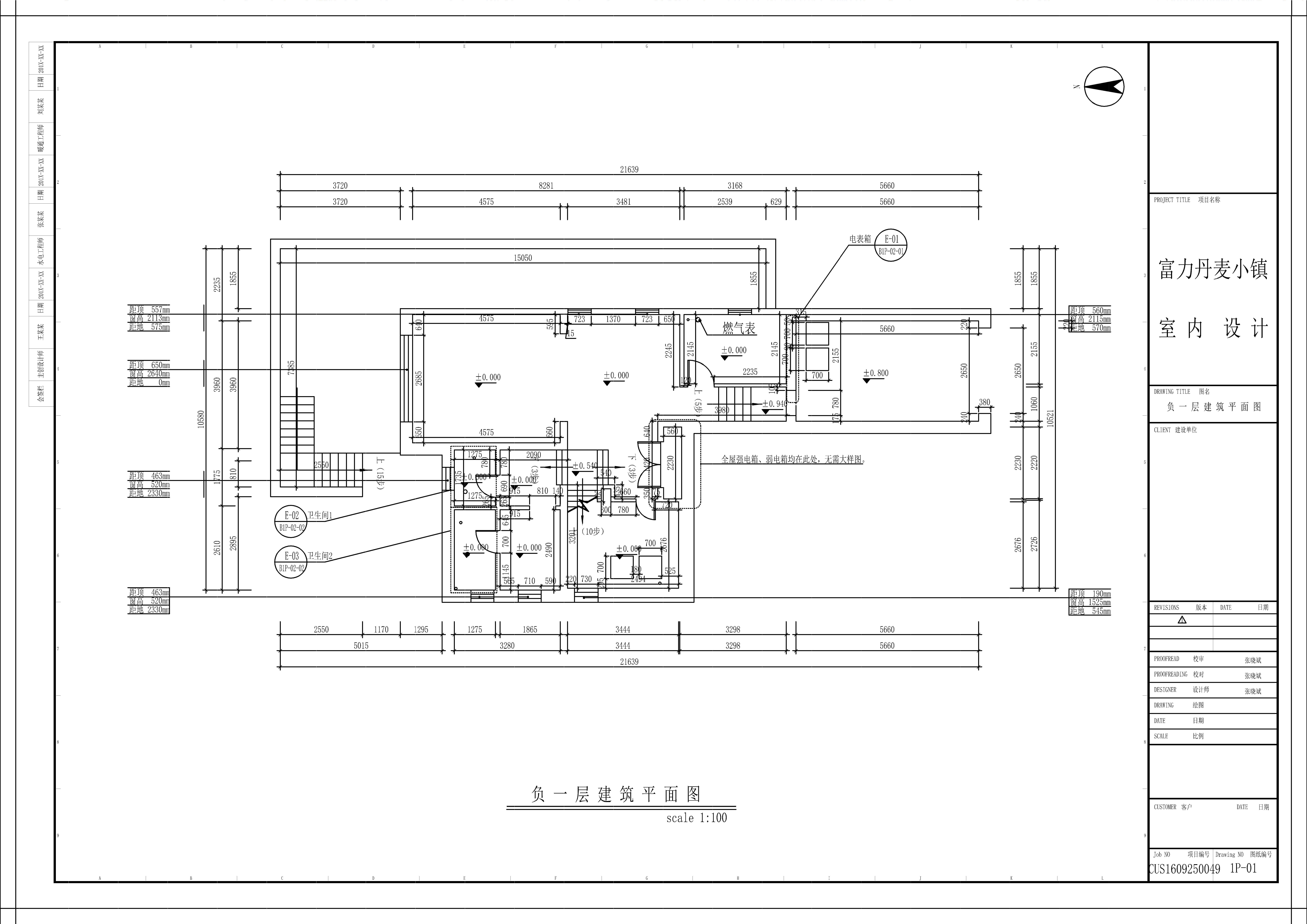
B1原始户型图
 0
                        0
                     0
                                0
                             
  
 
           
              
 
                  
 认证 · 让您身份增值
认证 · 让您身份增值 
                     
                     
                     
               请用微信扫码支付
请用微信扫码支付
             支付即同意并接受
支付即同意并接受 
         
         
       
         
       
         
       
       
     
     
                 
                     
                     
                     
         
                            
                         
                                
                         
         
         
    