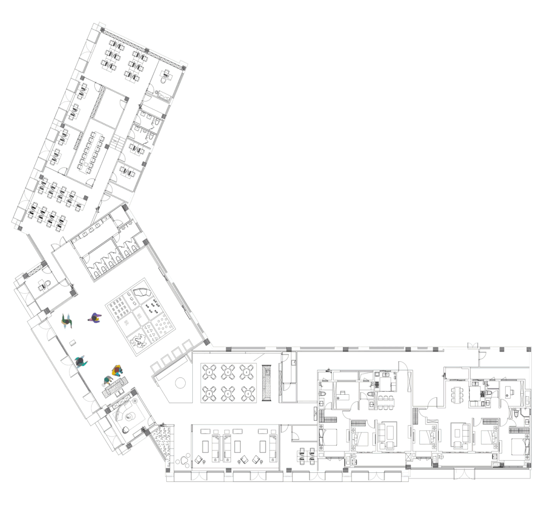
融创岳未来售楼处


- 项目类型:样板间/售楼处
- 项目地点:安庆市
- 建筑面积:613.0000㎡
- 项目造价:61.0000万元
- 参与设计师:李英、朴俊鹤、梁伟、张婧
- 竣工时间:2021-03-01
- 设计机构:阖时建筑设计(上海)有限公司
-
项目定位:设计师根据岳西当地自然、人文与现代发展趋势,为岳西呈现一个简洁清雅、利落自然的人文空间。
本案例在空间设计上没有特意的色彩泼墨,整体空间以岳西特有的群山、云海、梯田、翠兰作为灵感来源,采用温润玉色、江南烟雨色、辅以温暖的铜色行走于每个区域,且利用简洁清爽的设计语汇铺陈出干净利落、宁静舒缓的空间氛围。以鲜活的绿茶色做为点缀,为整个空间注入一丝清新的活力。 -
空间意境:岳西地处大皖西大别山崇山峻岭之中,虽不似嘉陵江山重庆、横断山脉大理,但群山环绕,朝有云遮雾罩,夕有晚霞千里,自有小家碧玉一抹风情。所以山是这座城市不可或缺的一份子,他造就了这座城市,也给了设计师多样的灵感。设计师以山的轮廓作为形式语言,通过抽象演绎山形折线作为设计语汇,贯穿灯箱、地面和墙面拼花。
曲线柔和的流线形吊灯犹如暗夜繁星闪烁的星空,和群山幻化的天然大理石墙面独有的自然纹路进一步提升了入口空间的纵深感,还有墙上结合群山及梯田线条的金属艺术挂画。
艺术过厅以探索之名从弯曲盘绕的梯田造型中提炼简练的线条,结合现代手法,选用纹理丰富的挂画进行装点。自由曲线的茶几和放松弧线的沙发,也是关于梯田肌理的另一种演绎。
岳西翠兰,这个生长在云雾缭绕的群山之中的小产区茶种,以城为名,成茶从质地到尺寸无不精挑细选。软装上设计师以山茶的绿白作为花艺的主色调,以白茶、白色郁金香、白色桔梗作为核心花材结合茶枝、棕榈、龟背以及绿色的玻璃花器一起营造清爽的空间氛围。设计师以茶为色,精心挑选特色绿植烘托淡雅氛围,开放通透的设计让空间各区域形成温馨互动,沙盘区、接待区和VIP室共享一片敞亮与明净。
-
空间布局:空间内所有元素均由自然元素演变而来,点、线、面、体积与空间是构成造型艺术的最基本元素。在“围合线条”中行走会令人产生不同的反应:感到被吸引,被推动,被保护;或感到一种力量,一种庞大,一种庄严,一种神秘。
-
设计选材:登高远眺,云雾在山峦间起伏,群山时隐时现,游人、行人置身其间,宛如在梦幻般的仙境中徜徉,有飘飘欲仙、腾云驾雾之感。通过云雾弥漫之景,结合极富张力的艺术装置,来表达精神世界与自然的联系。立体空间的开阔格局升华内心的体验,对内部主空间进行铺垫,强化参观者的体验感受。
硬装空间以白色为基调,再调和阳光照射洒下来的斑驳光影,为其增添些许趣味和灵动。摆放形式灵活舒适的布艺沙发、内敛高贵的白色大理石茶几,优雅淡然的透明玻璃饰品,使洽谈空间的氛围更加轻松愉快。
软装设计师选用高级灰作为主色调,搭配金属和皮革,表现稳重从容而又不失活泼,使整个空间更加干净、纯粹。 -
用户体验:这里的边边角角,一方一寸都在体现对极致生活的追求。基于未来,基于城市的文脉传承,基于新业主更好的生活方式,我们将承接建筑给予的环境,继续探索内在的美学表达方式。我们共建的不只是住宅,更是这座城市走向卓越的美好向往。我们洞悉城市的人文肌底,以产业更新及人居焕新,深度迭变美好未来。
设计师根据岳西当地自然、人文与现代发展趋势,为岳西呈现一个简洁清雅、利落自然的人文空间。
本案例在空间设计上没有特意的色彩泼墨,整体空间以岳西特有的群山、云海、梯田、翠兰作为灵感来源,采用温润玉色、江南烟雨色、辅以温暖的铜色行走于每个区域,且利用简洁清爽的设计语汇铺陈出干净利落、宁静舒缓的空间氛围。以鲜活的绿茶色做为点缀,为整个空间注入一丝清新的活力。
山是这座城市不可或缺的一份子,他造就了这座城市,也给了设计师多样的灵感。
设计师以山的轮廓作为形式语言,通过抽象演绎山形折线作为设计语汇,贯穿灯箱、地面和墙面拼花。
曲线柔和的流线形吊灯犹如暗夜繁星闪烁的星空,和群山幻化的天然大理石墙面独有的自然纹路进一步提升了入口空间的纵深感,还有墙上结合群山及梯田线条的金属艺术挂画。
空间内所有元素均由自然元素演变而来,点、线、面、体积与空间是构成造型艺术的最基本元素。在“围合线条”中行走会令人产生不同的反应:感到被吸引,被推动,被保护;或感到一种力量,一种庞大,一种庄严,一种神秘。
登高远眺,云雾在山峦间起伏,群山时隐时现,游人、行人置身其间,宛如在梦幻般的仙境中徜徉,有飘飘欲仙、腾云驾雾之感。
通过云雾弥漫之景,结合极富张力的艺术装置,来表达精神世界与自然的联系。
立体空间的开阔格局升华内心的体验,对内部主空间进行铺垫,强化参观者的体验感受。
不管是小说,电影,游戏都不乏对未来的憧憬和向往,现代化的科技力量已经无形中产生了一种魔法的感觉。 软装设计师选用高级灰作为主色调,搭配金属和皮革,表现稳重从容而又不失活泼,使整个空间更加干净、纯粹。
这里的边边角角,一方一寸都在体现对极致生活的追求。
艺术过厅以探索之名从弯曲盘绕的梯田造型中提炼简练的线条,结合现代手法,选用纹理丰富的挂画进行装点。
自由曲线的茶几和放松弧线的沙发。也是关于梯田肌理的另一种演绎。
软装上设计师以山茶的绿白作为花艺的主色调,以白茶、白色郁金香、白色桔梗作为核心花材结合茶枝、棕榈、龟背以及绿色的玻璃花器一起营造清爽的空间氛围。
设计师以茶为色,精心挑选特色绿植烘托淡雅氛围,开放通透的设计让空间各区域形成温馨互动,沙盘区、接待区和VIP室共享一片敞亮与明净。
硬装空间以白色为基调,再调和阳光照射洒下来的斑驳光影,为其增添些许趣味和灵动。
摆放形式灵活舒适的布艺沙发、内敛高贵的白色大理石茶几,优雅淡然的透明玻璃饰品,使洽谈空间的氛围更加轻松愉快。

