劲浪体育



作品说明
- 项目类型:零售
- 项目地点:重庆市
- 建筑面积:2000.0000㎡
- 项目造价:200.0000万元
- 主案设计师: 苗青
- 参与设计师:陈彦君
- 竣工时间:2021-09-20
- 设计机构:重庆觅前室内设计有限公司
-
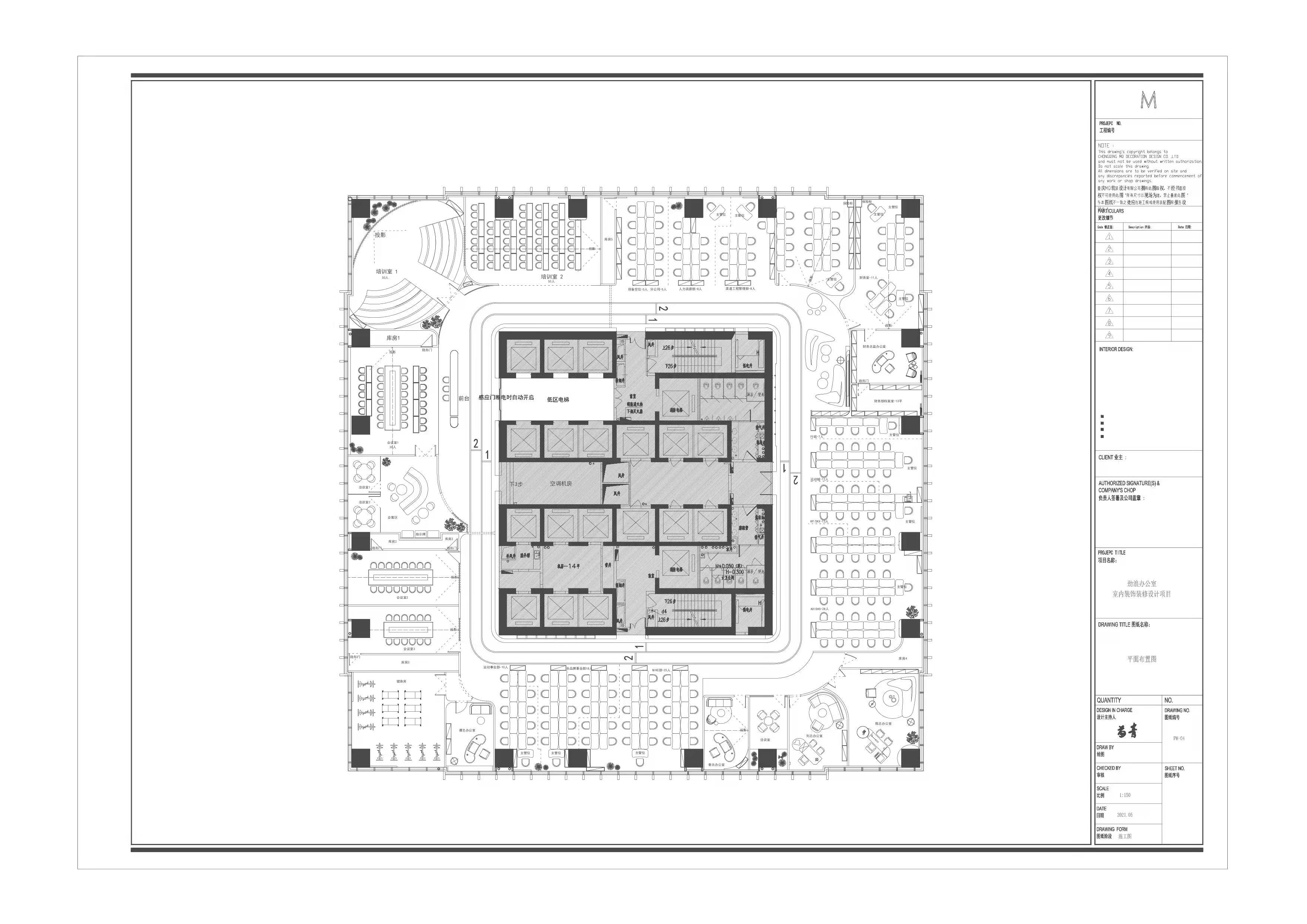
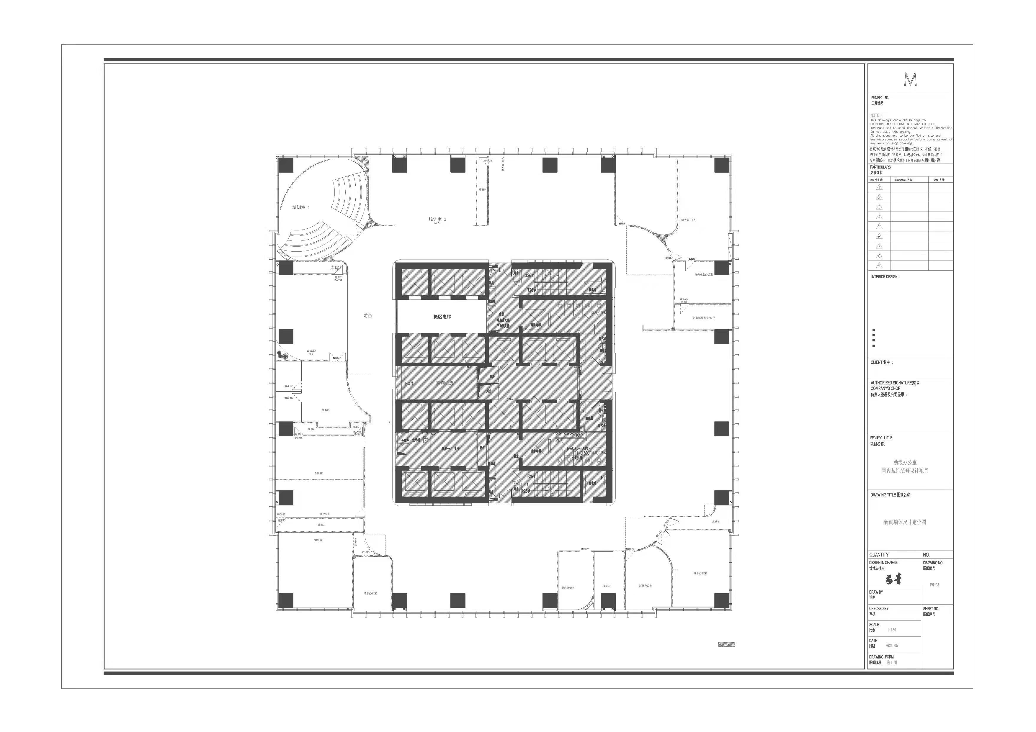
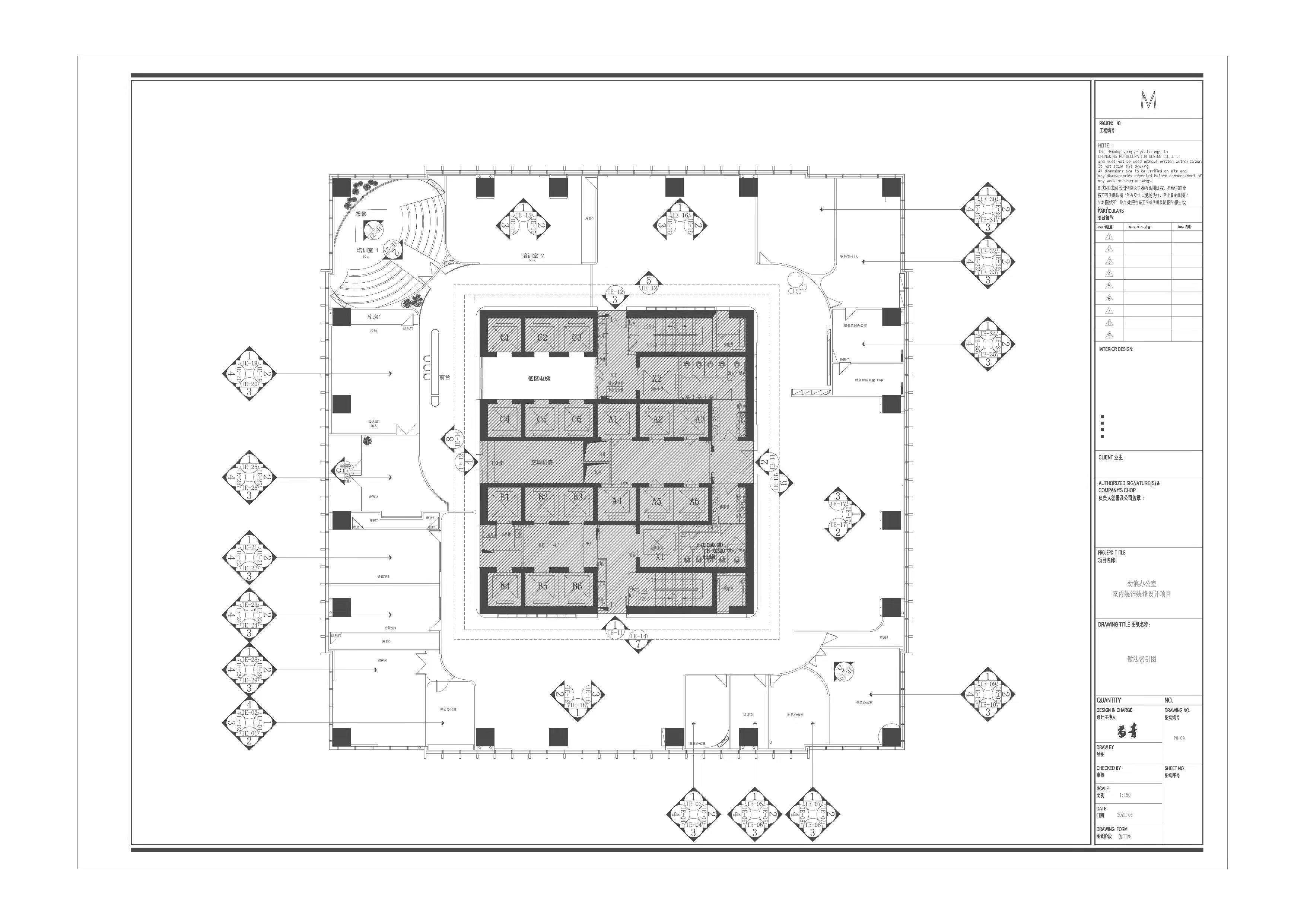
项目定位:项目位于重庆市渝中区解放碑,位于大型商圈中心位置。设计面积为2000㎡,超大面积的设计以及整体把控及衔接都显得尤为重要。劲浪体育是专门代理阿迪达斯、耐克...等运动品牌,在重庆多个商圈的都有他们的产品。
劲浪体育跟一般的办公室不一样,是一个以运动为主的公司,更需要动感。我在员工的办公区域设计了跑道,寓意是让员工在工作上,互相拼搏,互相进取;该公司每个月会有跑步比赛,随时方便团建。同时,设立了员工健身房,方便员工可以健身。
在这种氛围下,我的设计都是尽量以动感和韵律感来设计整个空间。 -
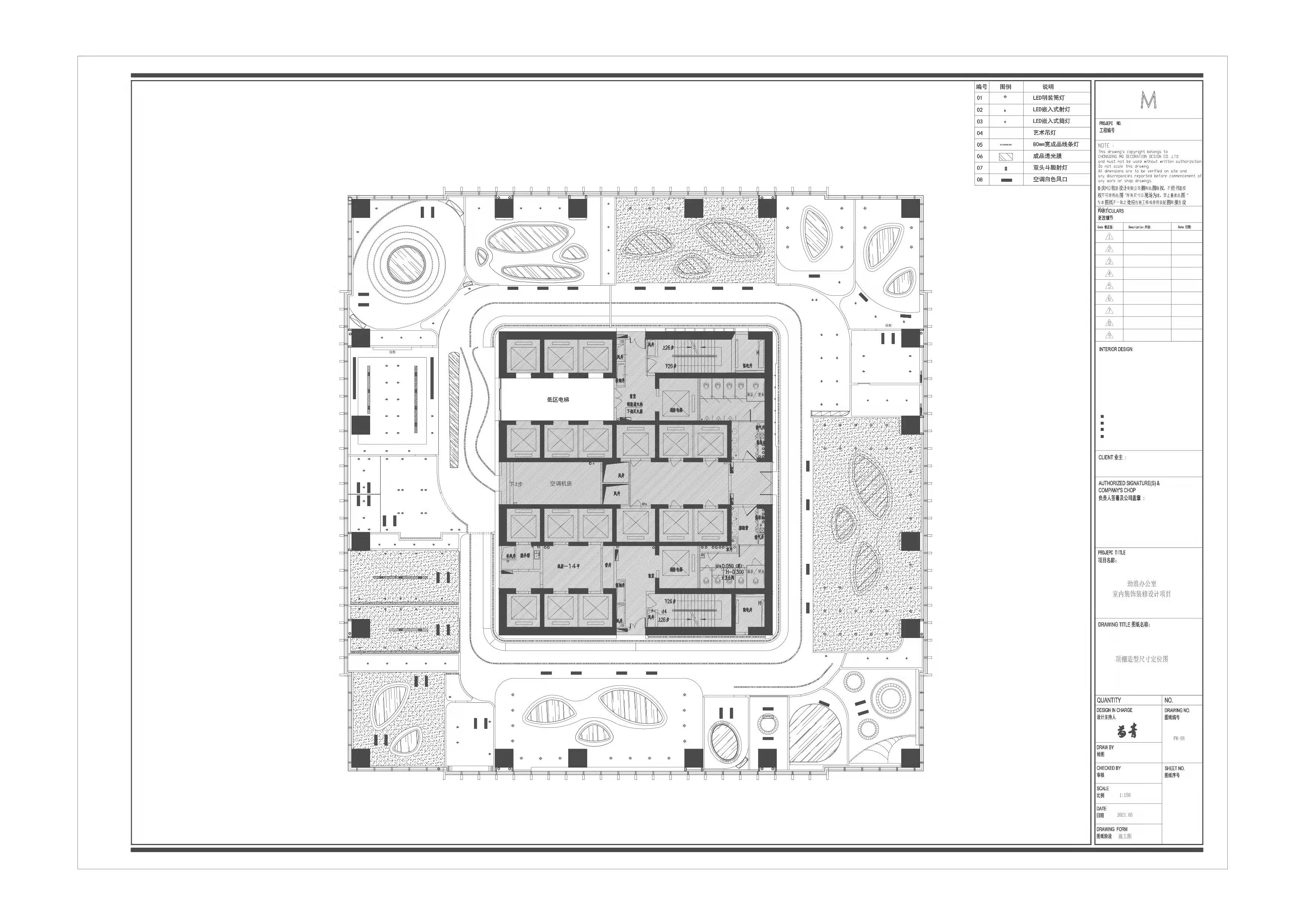
空间意境:以现代风格为主,大面积白色,采用多种圆弧衔接各个区域,让空间相互交映。
-
空间布局:项目设计主题为“乘风破浪,未来已来”,取劲‘浪’的浪之一字,寓意公司在发展的过程中犹如一股股的浪花,厚积勃发,勇往直前。在公共区域划出运动步道,随时可以短道竞技PK,让整个办公空间生动有趣。设计师特意以线槽灯光的方式打造出仿佛置身与时空隧道一般,让空间更具有科幻感。
-
设计选材:选用环保材料,让空间清爽自然。
-
用户体验:客户及来宾,非常满意,现场体验感十足。

