石见



作品说明
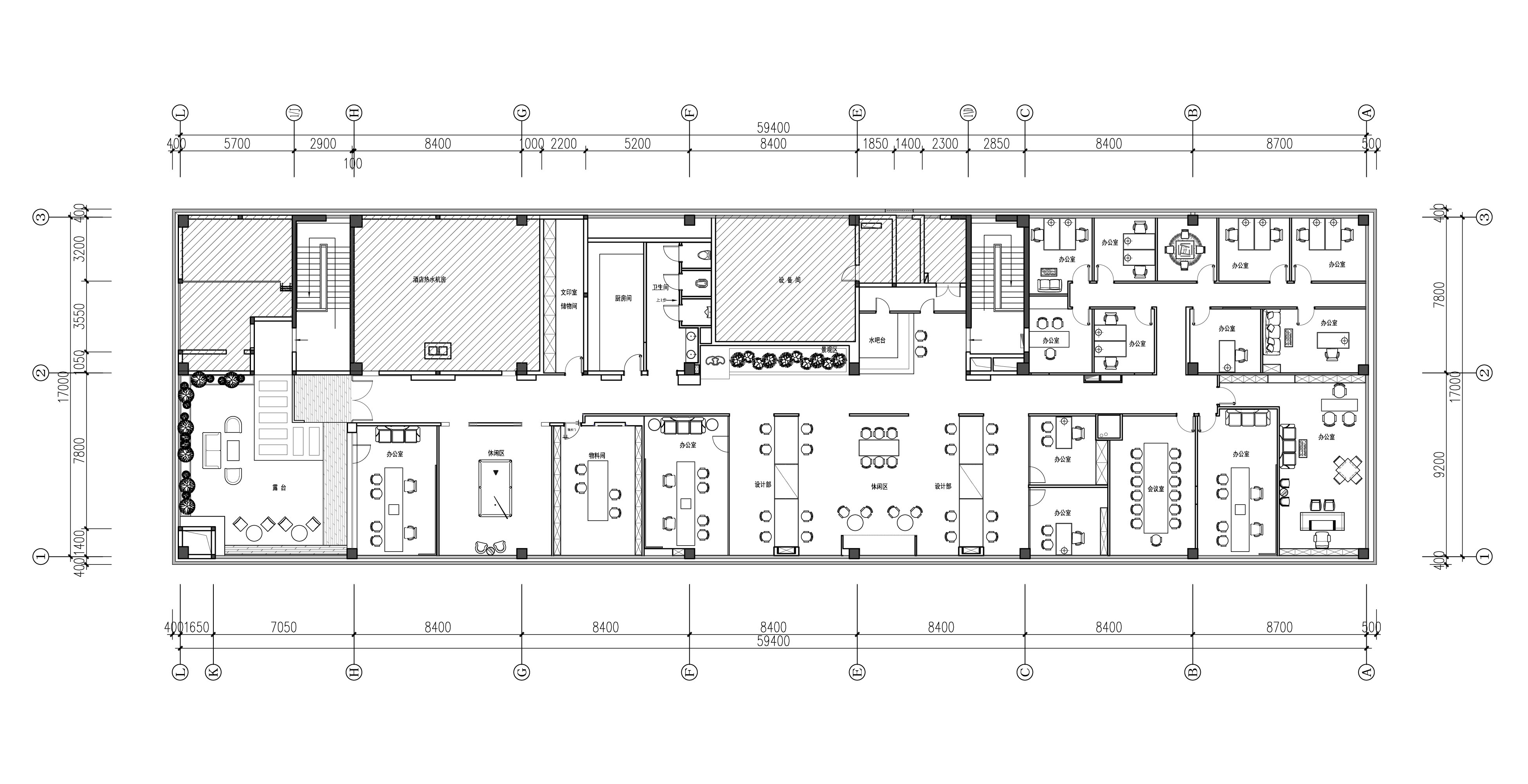
- 项目类型:办公
- 项目地点:常州市
- 建筑面积:1000.0000㎡
- 项目造价:100.0000万元
- 参与设计师:邵明防、李开启
- 竣工时间:2021-01-01
- 设计机构:上海砚集设计
-
项目定位:拥有一个露天花园入口的酒店沉浸式体验感的办公空间
-
空间意境:有沉浸式的办公室内环境,有如沐春风的花园露台,有潇洒绽放的娱乐区,亦有茗茶品酒的水吧台,还有灵动个性的休闲区。
-
空间布局:出电梯,先进入一个仪式感十足的楼梯间,然后进入露天阳台的花园,再进入公司的大门,通过长长的仪式感的廊道进入每个空间。
-
设计选材:地面用了防火防水的PVC地板,墙面与顶面都是用的涂料,材料简单,主要通过灯光与形体来做出感觉。
-
用户体验:用户体验特别好,气派,有氛围

