自然呈新



作品说明
- 项目类型:办公
- 项目地点:深圳市
- 建筑面积:260.0000㎡
- 项目造价:300000.0000万元
- 主案设计师: 胡游柳
- 参与设计师:潘丽蓉 黄雅慧 洪伟鸿
- 竣工时间:2021-06-01
- 设计机构:未耒设计(深圳)有限公司
-
项目定位:自然呈新生物科技有限公司,是以延缓衰老,促进健康为目的,提供与人类健康紧密相关的产品及全方位的大健康产业资讯服务。他们拥有自己专业的研发团队,从人体根本的防衰入手,提供健康生活解决方案。重点经营的抗衰老产品均是由研究院的博士、科学家们通过对植物提取物的研制而成的产物。通过对信息的梳理,我们从中总结出两个关键词,「 自然+技术 」。
-
空间意境:企业的分子裂变的Logo设计很好地体现了企业特点。我们取其「 绿 」 色去展现自然的一面,再结合常常能与技术挂钩的 「 灰 」和「 白 」来作为空间主色 。Logo由浅至深的渐变方式也成为了空间中的亮点。“分子裂变”也引发了实验化学器皿的联想,并以此为灵感,把展示产品的承载物做成了试管的模样。
-
空间布局:这是一个精装办公的局部改造项目。在大部分材料、设备以及门窗保留利用的情况下,如何简单直接地将企业特性融入到办公空间里,是此项目的重心。因此我们希望在入门处就能直击重点,让进入的人感受到扑面而来的自然健康和专业方向。除了入口的设计之外,如何将企业特性融入其他空间呢 ?原有建筑窗边意外出现的横梁,恰好给了我们想法。延续前台的做法,把渐变的绿色覆于横梁上,使得它成为「自然」的延续。
-
设计选材:半开放接待区的弧形软膜材质光滑、白净,带来抗衰老产品的特征提示。绿意横向贯穿整个空间,感受另种自然环绕。
-
用户体验:绿意「 横 」生,心生愉悦,一切自然呈新。
自然呈新生物科技有限公司,是以延缓衰老,促进健康为目的,提供与人类健康紧密相关的产品及全方位的大健康产业资讯服务。他们拥有自己专业的研发团队,从人体根本的防衰入手,提供健康生活解决方案。重点经营的抗衰老产品均是由研究院的博士、科学家们通过对植物提取物的研制而成的产物。 通过对信息的梳理,我们从中总结出两个关键词,「 自然+技术 」。
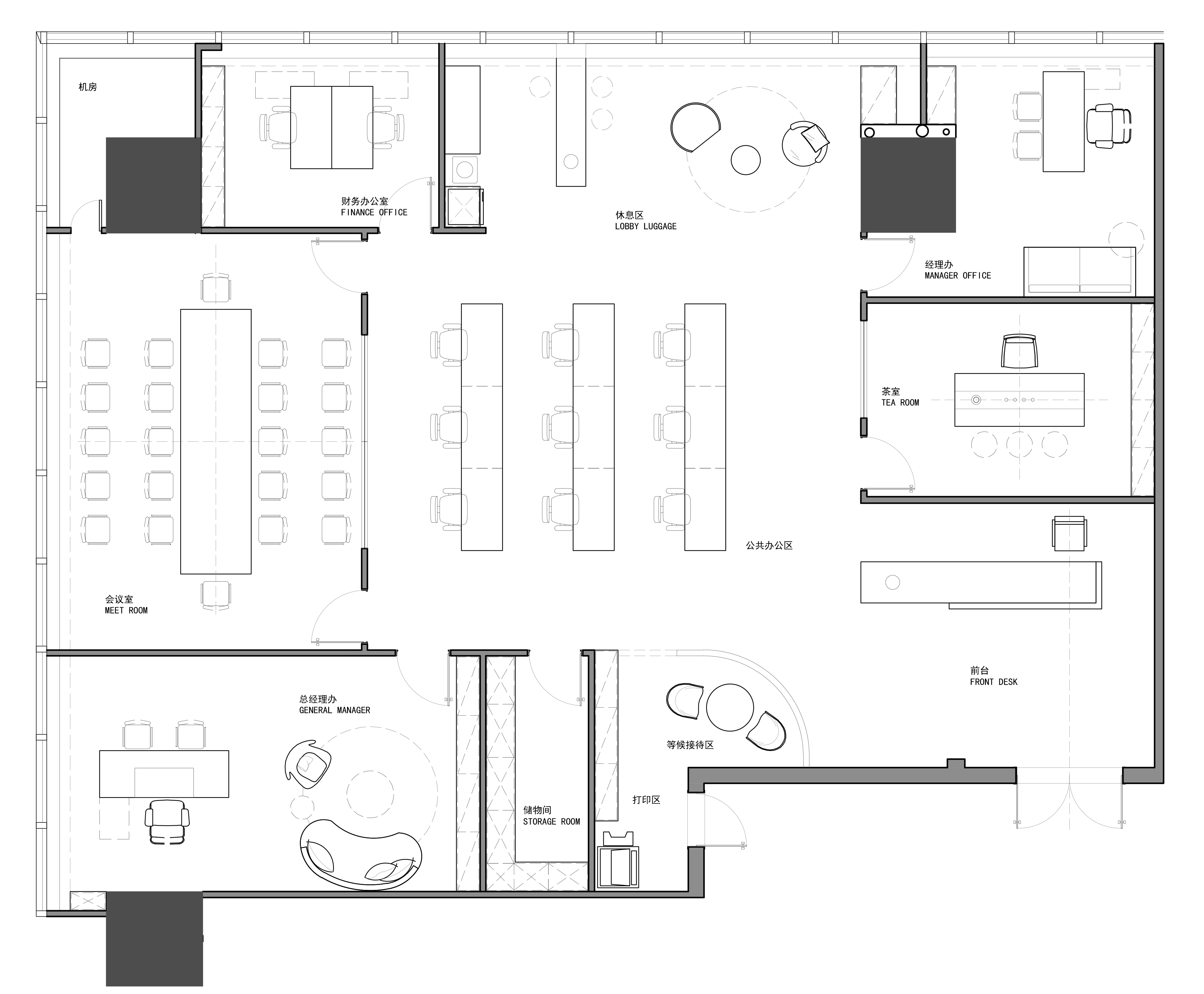
这是一个精装办公的局部改造项目。 在大部分材料、设备以及门窗保留利用的情况下,如何简单直接地将企业特性融入到办公空间里,是此项目的重心。因此我们希望在入门处就能直击重点,让进入的人感受到扑面而来的自然健康和专业方向。
分子裂变的Logo设计很好地体现了企业特点。 我们取其「 绿 」 色去展现自然的一面,再结合常常能与技术挂钩的 「 灰 」和「 白 」来作为空间主色 。Logo由浅至深的渐变方式也成为了空间中的亮点。“分子裂变”也引发了实验化学器皿的联想,并以此为灵感,把展示产品的承载物做成了试管的模样。
半开放接待区的弧形软膜材质光滑、白净,带来抗衰老产品的特征提示。
接待区外部
接待区内部
除了入口的设计之外,如何将企业特性融入其他空间呢 ? 原有建筑窗边意外出现的横梁,恰好给了我们想法。延续前台的做法,把渐变的绿色覆于横梁上,使得它成为「自然」的延续。
水吧休闲区近景
开放办公区
将绿意横向贯穿整个空间,感受另种自然环绕。
董事长办公室全景
董事长办公室近景
绿意「 横 」生,心生愉悦,一切自然呈新。
会议室全景
会议室全景
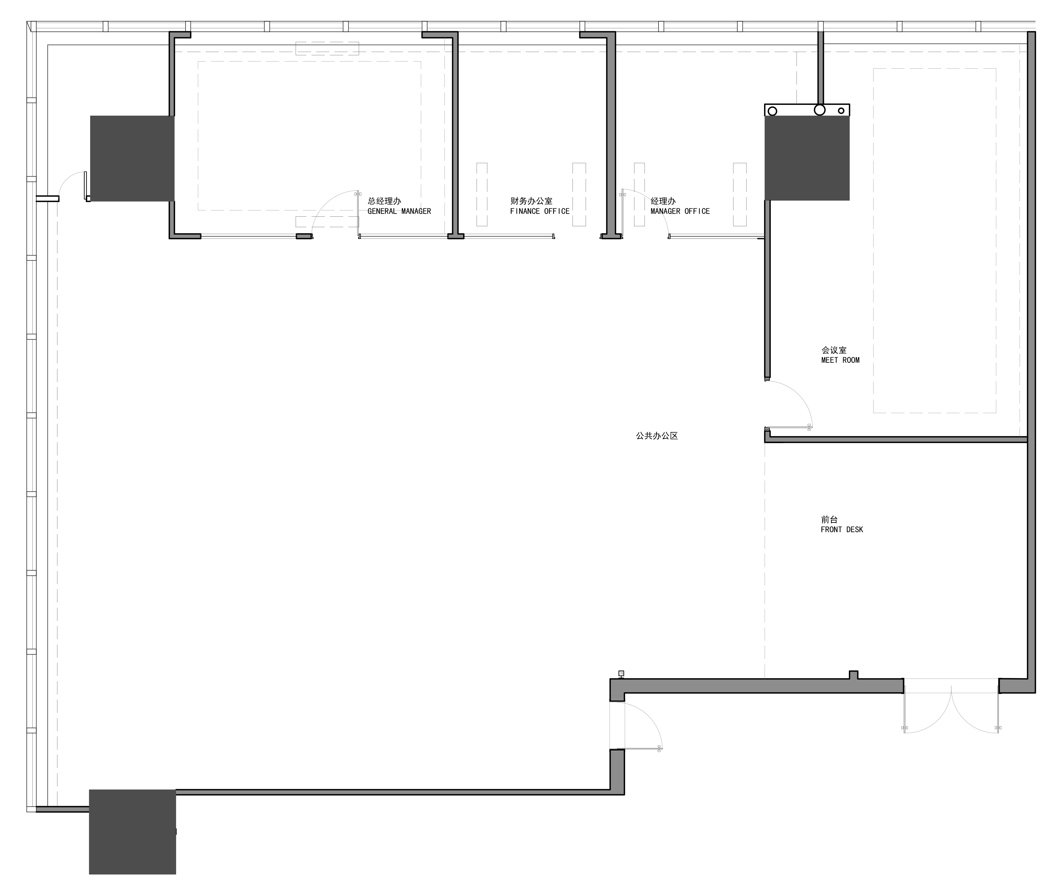
原始平面图
设计后平面布置图

