简易养心
790
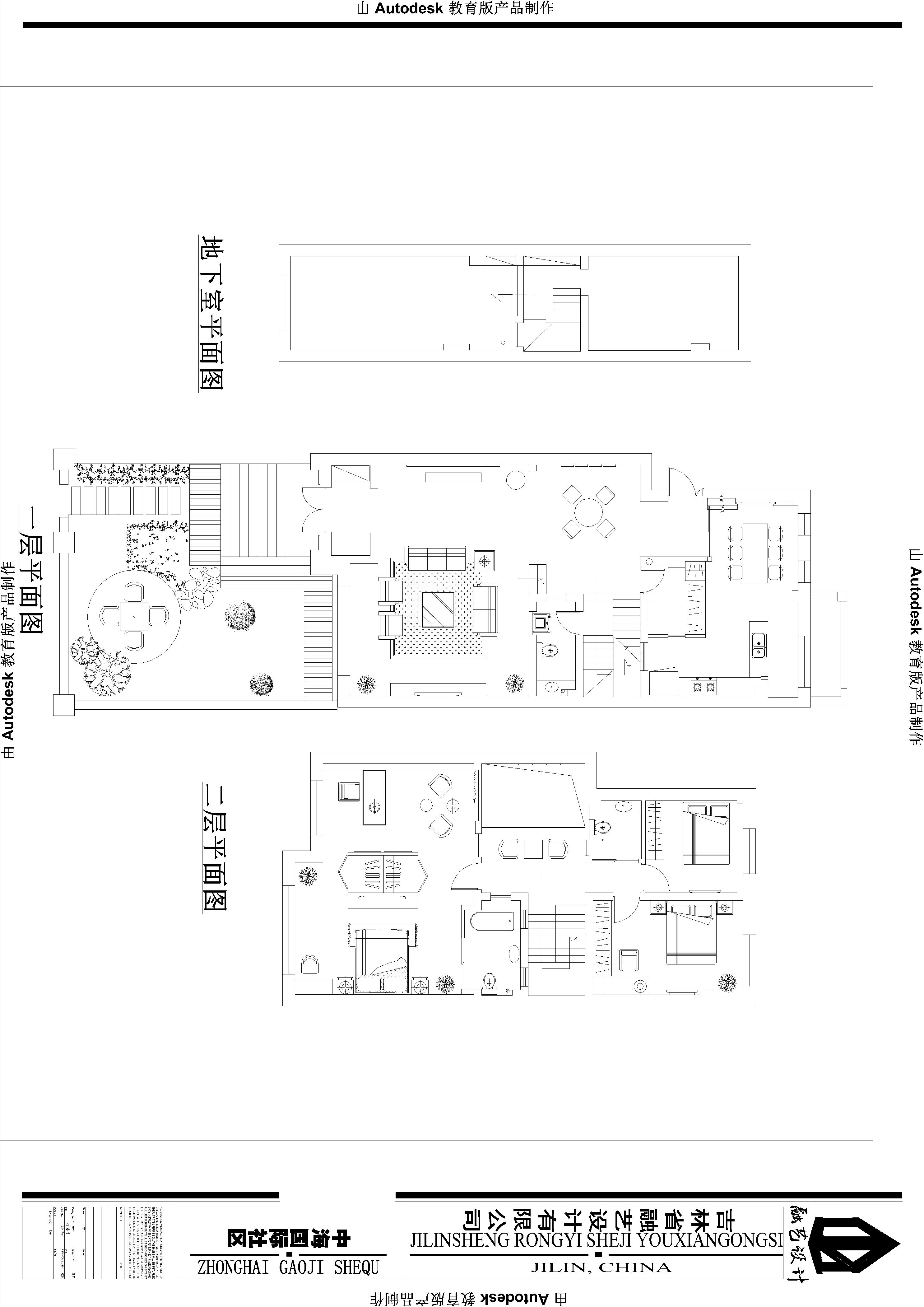
作品说明
- 项目类型:住宅公寓
- 项目地点:长春市
- 建筑面积:280㎡
- 项目造价:200万元
- 主案设计师: 李为卓
- 竣工时间:2020-09-16
-
项目定位:老人的居住空间,年纪已到心态尚轻,符合老人的居住需求,满足老人年轻化的心情营造。
-
空间意境:空间设计以白色为主,减少过多的装饰,环境中颜色的色调把控,减少老人的心情焦虑,增加老人生活环境的色彩饱和度。
-
空间布局:两层居中空间,一层功能区域,居住空间使用挑空部分的线条贯通,一二层有机的融合再一次,没有传统意义上的空间划分,主卧室与书房套用叠加,将衣帽间隐形在其中,但满足较大的存储功能。
-
设计选材:材料商其实很简单,满墙均采用贝壳粉饰面,全屋减少过度的硬装装饰,软装方面仅采用一些简单的国画及基本的装裱工艺,满足节能减排,满足老人对物资浪费的重视。
-
用户体验:业主很是满意,居住以来多次邀请设计团队拜访就餐
0
0

认证 · 让您身份增值