北京朝阳培森家园
1281
作品说明
- 项目类型:零售
- 项目地点:北京市
- 建筑面积:240.0000㎡
- 项目造价:100.0000万元
- 主案设计师: 孙丽芳
- 竣工时间:2021-01-20
- 设计机构:香港环亚联合设计
-
项目定位:都市养宠家庭时常的旅行或出差,让小动物的照顾成了问题,于是一些提供宠物短暂寄养服务的平台应运而生。本案培森家园宠咖正是这么一个所在。在设计的考量上,培森家园定位为宠物提供集养护、美容、高端SPA以及尊享级欧式寄宿酒店为一体的七星级豪华度假公馆,给宠物极致的度假体验。
-
空间意境:作为短暂寄养的度假公馆,最重要的是要消弭宠物暴露在陌生环境时的紧张感。因此在整体空间基调的奠定上我们选择了以原木色为基底,柔和的木调舒适,放松。软装上以平和沉静的蓝绿色调为主,营造亲近自然的原生态空间,这两者的搭配对于抚平小动物们面对离开主人时焦躁不安的情绪起到重要的作用。
-
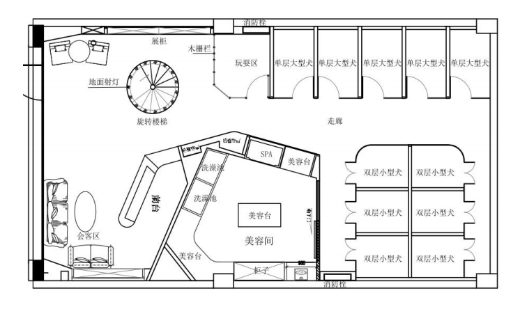
空间布局:如同人类挑选酒店具有多重标准一样,萌宠的酒店同样也讲究空间布局的合理、陈设装饰的美观和配套设施的完善。本案分为上下两层,一层为犬宝,二层为猫宝。空间规划合理,内设三种房型、更有美容区、商品区、玩耍区,给宠物极致的度假体验。
-
设计选材:实木,石材,玻璃,绒布等材质让空间通透, 自然,开阔。绿植的点缀为空间注入生命力。仿佛置身于山林水语之中, 生态与氧气无论是对人或动物都有着治愈的作用。这是我们在设计整个空间希望带给人的感受。
-
用户体验:这里成为猫咪宝宝钟爱的秘密花园,猫咪们可以尽情于此跳跃、玩耍、打滚、酣睡,度过一段悠闲惬意的度假时光。
0
0

认证 · 让您身份增值